Vuokrataan toimistotilat - Helsinki
Eteläesplanadi 18, Keskusta, 00130 Helsinki #10860310
Siisti ylimmän kerroksen 128 m² toimisto omalla terassilla Esplanadinpuiston varrella
Osoite
Eteläesplanadi 18, 00130 Helsinki
Tilatyyppi
Toimistotilaa
128 m2
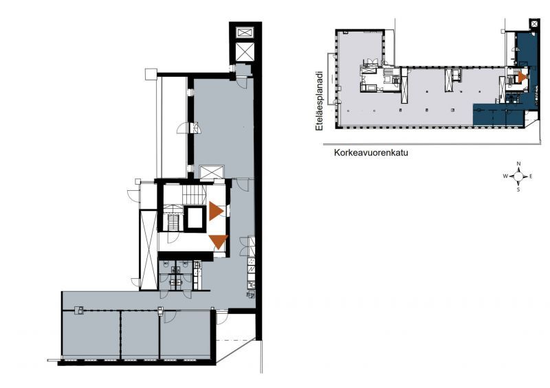
Pohjapiirros
Kiinteistö
Siisti, näppärä toimisto - kaksi omaa terassia joista upeat näkymät kaupungin kattojen ylle.
Hissi kulkee kerrokseen 7, tila sijaitsee kerroksessa 8.
Sisäänkäynti Korkeavuorenkadulta.
Eteläesplanadin halutuimpia toimistokohteita
Arkkitehti J. S. Sirénin suunnittelema arvokiinteistö Esplanadin puiston reunalla on valmistunut vuonna 1935 ja saneerattu huippumoderniksi pääkonttoriksi vuonna 2017.
Kiinteistössä on vuokralaisena useita yrityksiä kuten SEB, jonka tyylikkäät tilat edustavat viimeisimpiä toimitilatrendejä, kohteen alkuperäistä tunnelmaa unohtamatta. Suuret ikkunapinnat tuovat luonnonvaloa kerroksiin, jonne noustaan sisääntuloaulan atriumin kautta. Henkilökunnan yhteiset tilat ovat avarat ja toteutettu monitilaratkaisuin. Neuvottelutilat edustavat viimeisintä tekniikkaa.
Kiinteistö sijaitsee Helsingin ydinkeskustan palveluiden äärellä, lähellä runsaita lounas- ja kahvilavaihtoehtoja sekä julkisen liikenteen yhteyksiä. Sijainti perinteikkään Esplanadinpuiston varrella tekee tästä toimitilakohteesta erityisen halutun.
Hissi kulkee kerrokseen 7, tila sijaitsee kerroksessa 8.
Sisäänkäynti Korkeavuorenkadulta.
Eteläesplanadin halutuimpia toimistokohteita
Arkkitehti J. S. Sirénin suunnittelema arvokiinteistö Esplanadin puiston reunalla on valmistunut vuonna 1935 ja saneerattu huippumoderniksi pääkonttoriksi vuonna 2017.
Kiinteistössä on vuokralaisena useita yrityksiä kuten SEB, jonka tyylikkäät tilat edustavat viimeisimpiä toimitilatrendejä, kohteen alkuperäistä tunnelmaa unohtamatta. Suuret ikkunapinnat tuovat luonnonvaloa kerroksiin, jonne noustaan sisääntuloaulan atriumin kautta. Henkilökunnan yhteiset tilat ovat avarat ja toteutettu monitilaratkaisuin. Neuvottelutilat edustavat viimeisintä tekniikkaa.
Kiinteistö sijaitsee Helsingin ydinkeskustan palveluiden äärellä, lähellä runsaita lounas- ja kahvilavaihtoehtoja sekä julkisen liikenteen yhteyksiä. Sijainti perinteikkään Esplanadinpuiston varrella tekee tästä toimitilakohteesta erityisen halutun.
Vapautuu
Heti
Rakennusvuosi
1935
Saneerausvuosi
2017
Kerros
8 / 8
Energiatehokkuusluokka
G2007
Näkyvällä paikalla
Hissi
Ota yhteyttä
ScanReal Oy LKV
Opus Business Park
Hitsaajankatu 24
00810 Helsinki
info@scanreal.fi
Puh:
Näytä puhelinnumero
020 730 8830
Sopivat toimitilat yhdellä otolla!
Kartoitamme toimitilatarpeesi ja etsimme yrityksellesi parhaiten sopivat vapaat toimitilat. Koska vuokranantajat maksavat palvelumme, on tämä yrityksellesi veloituksetonta.
Palvelumme on tilanhakijalle ilmainen
Pyydä lisätietoa
