Vuokrataan toimistotilat - Espoo
Vaisalantie 6, C-Talo, Otaniemi, 02130 Espoo #10860307
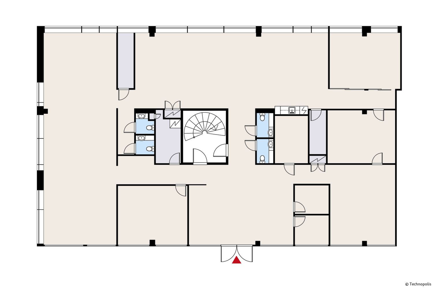
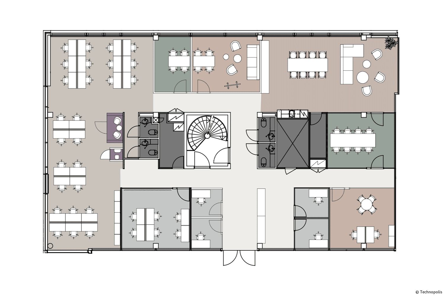
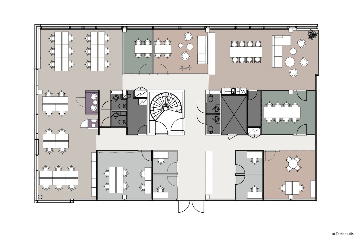
Vuokrataan ylimmän kerroksen edustava ja viihtyisä 385 m² toimitila Innopoli 3 C-talon kuudennessa kerroksessa Technopolis Otaniemessä Espoossa. Tilaan kuuluu useita huoneita, avotilaa sekä oma keittiö ja wc-tilat. Tilassa on siisti palamatto ja ikkunoista avautuu hienot näkymät Otaniemen suuntaan. Toimitilan ilmastointi tarjoaa miellyttävän lämpötilan kaikkina vuodenaikoina.
Tämä tila on yhdistettävissä viereisten tilojen kanssa koko 6. kerroksen kattavaksi kokonaisuudeksi ja se on mahdollista vuokrata myös kalustettuna. Saatavilla ovat lisäksi työtilan suunnittelu- ja muuttopalvelut. Ota yhteyttä ja tule tutustumaan paikan päälle.
Technopolis Otaniemi sijaitsee lähellä Aalto-yliopiston metroasemaa, pikaraitiotien ja bussireittien varrella. Lisäksi Suomen vilkkain liikenneväylä Kehä I kulkee aivan kampuksen vierestä. Parkkipaikkoja on erittäin hyvin saatavilla autoilijoiden tarpeisiin.
Technopolis Otaniemen kampuksen monipuolisten palveluiden ansiosta sinä voit keskittyä liiketoimintaasi. Palveluihin kuuluvat ystävällinen aulapalvelu, monipuolinen valikoima kokoustiloja, useita erinomaisia ravintoloita ja useampi hyvin varusteltu kuntosali. Lisäksi kampukselta löytyy kampaamoita, hammasklinikka, eläinlääkäriasema ja kaksi autopesulaa.
Jaettavissa
Technopolis
Elektroniikkatie 8 FIN-90590 Oulu
Näytä puhelinnumero
046 712 0000
Heta Lindman
Näytä puhelinnumero
050 336 5815
Nina Torkkeli
Näytä puhelinnumero
040 532 9787
Hanna Peltola
Näytä puhelinnumero
050 514 3746
Technopolis on työympäristöjen asiantuntija. Tarjoamme joustavia ja tehokkaita toimitiloja sekä niihin liittyviä palveluita. Hoidamme kaiken työtilojen suunnittelusta sekä aula- ja kokouspalveluista ravintoloihin ja siivoukseen. Asiakaskokemus ja sen kehittäminen ovat toimintamme ytimessä. Meillä on 14 kampusta, joissa toimii 1200 asiakasyritystä ja niiden 35 000 työntekijää neljässä maassa Euroopassa.
https://technopolisglobal.com/fi