Vuokrataan toimistotilat - Helsinki
Bulevardi 44, Punavuori, 00120 Helsinki #10860267
Toimistotilaa erinomaisella sijainnilla Helsingin Bulevardilla.
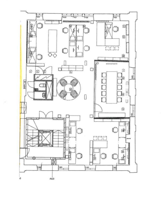
Tämä 180 m² toimistotila sijaitsee kiinteistön 4. kerroksessa. Tilassa on avotilaa, neuvotteluhuone sekä omat keittiö- ja wc-tilat. Toimisto on mahdollista vuokrata yhdessä viereisen 270 m² toimiston kanssa, jolloin kokonaispinta-ala on 450 m².
Bulevardi 44 eli Bulevardin kiltakellari on vanha panimorakennus, joka on rakennettu vuonna 1885. Sen on suunnnitellut Theodor Höjer. Kiinteistö on saneerattu vuonna 1999. Kiinteistössä on lounasravintola, jonka yhteydessä on kabinettitiloja. Korttelissa on lämmin parkkihalli, josta voi vuokrata autopaikkoja.
Kysy lisää numerosta 044 723 4700 tai info@bref.fi. Palvelumme on tilanhakijoille ilmainen.
Hissi
Bureau Real Estate Finland Oy
Lars Sonckin kaari 16, 02600 Espoo
Näytä puhelinnumero
0447234700
Bureau Real Estate Finland Oy
https://www.bref.fi