Vuokrataan liiketilat - Helsinki
Elimäenkatu 9, Vallila, 00510 Helsinki #10860223
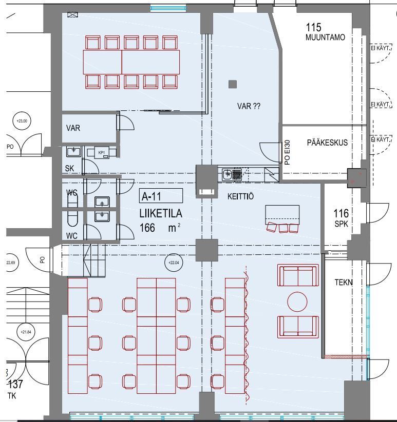
Vuokrataan tyylikkäästi remontoitu moderni liiketila uudistetusta Vallilan Kravattitehtaasta. Tila soveltuu hyvin myös toimisto- tai showroomkäyttöön. Avotilan lisäksi yksi lasiseinäinen huone, kaksi sisäänkäyntiä, oma keittiö ja 2 x wc. Tila ei sovellu ravintolaksi eikä kahvilaksi.
Kiinteistö on saneerattu kokonaisuudessaan vastaamaan tämän päivän toimistokäyttäjien tarpeita. Talossa on hyvät palvelut vuokralaisille, kuten aulapalvelu, erikseen vuokrattavia neuvottelutiloja ja tasokas lounasravintola. Kiinteistöstä löytyy myös suihkutilat työmatkapyöräilijöille ja kuivaushuone vaatteille, lainapyöriä vuokralaisille sekä pysäköintipaikkoja ja sähköautojen latauspisteitä. Vallilaan pääsee kulkemaan kätevästi myös bussilla tai raitiovaunulla.
Lisätietoja soita 020 730 4530 tai info@repoint.fi. Palvelumme on tilanhakijalle ilmainen.
Repoint Toimitilat Oy
Itälahdenkatu 22 B, 00210 Helsinki
Näytä puhelinnumero
020 730 4530
Lisätietoja soita Näytä puhelinnumero 020 730 4530 tai info@repoint.fi
https://repoint.fi/