Vuokrataan toimistotilat - Helsinki
Ruoholahdenkatu 14, Kamppi, 00180 Helsinki #10860220
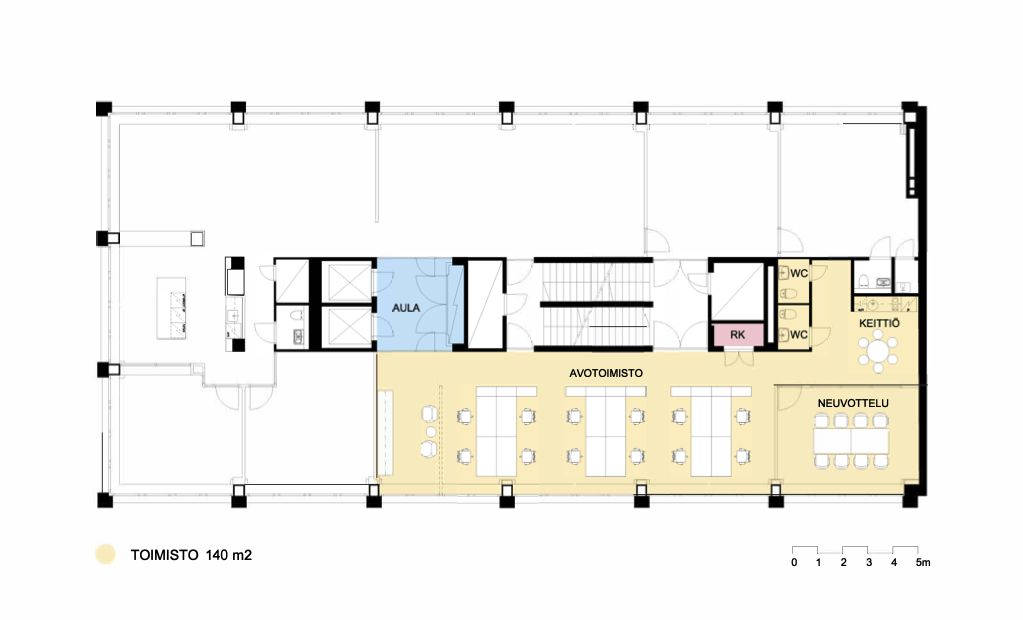
Vuokrataan 6. kerroksen valoisa ja hyväkuntoinen toimistotila Kampista. Toimistossa on avotilaa, neuvottelutila, sekä keittiö ja kaksi wc:tä. Valoisasta toimistosta on hienot näkymät Ruoholahden villojen yli.
Kiinteistöstä vuokrattavissa autopaikkoja. Erittäin hyvät julkiset kulkuyhteydet, Kampin asema muutaman minuutin kävelymatkan päässä.
Lisätietoja soita 020 730 4530 tai info@repoint.fi. Palvelumme on tilanhakijalle ilmainen.
Osoite
Ruoholahdenkatu 14, 00180 Helsinki
Tilatyyppi
Toimistotilaa
140 m2
Vapautuu
Kysy
Kerros
6
Hissi
Ota yhteyttä
Repoint Toimitilat Oy
Itälahdenkatu 22 B, 00210 Helsinki
Näytä puhelinnumero
020 730 4530
Lisätietoja soita Näytä puhelinnumero 020 730 4530 tai info@repoint.fi
https://repoint.fi/Pyydä lisätietoa
