Vuokrataan liiketilat - Helsinki
Hämeentie 22, Kallio, 00530 Helsinki #10860210
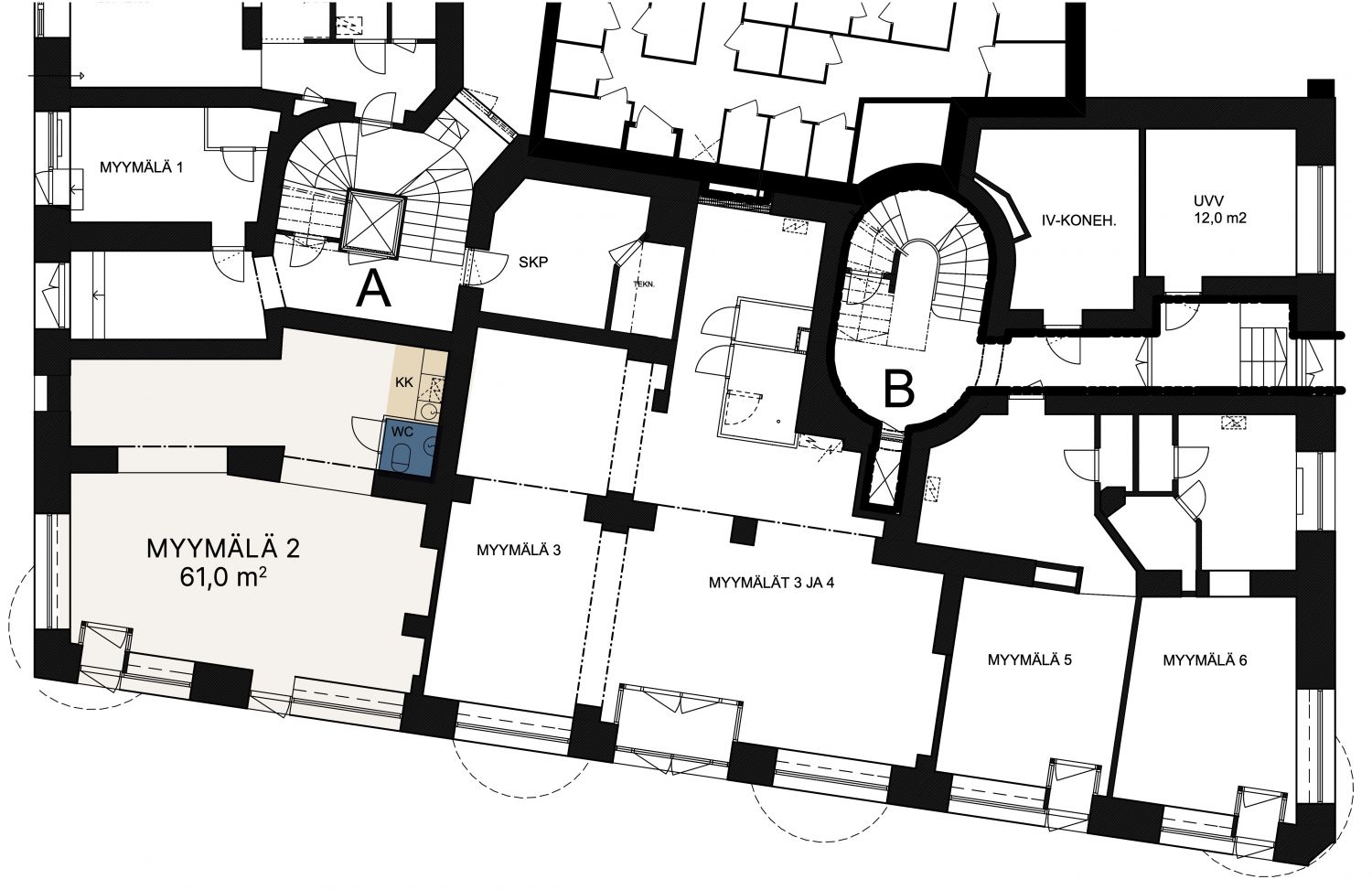
Siisti katutason 61 m² liiketila näkyvällä paikalla Hämeentien ja 5. linjan kulmassa.
Osoite
Hämeentie 22, 00530 Helsinki
Tilatyyppi
Liiketilaa
61 m2
Pohjapiirros
Kiinteistö
Kivijalassa sijaitseva mainio remontoitu katutason myymälä-/liiketila näkyvällä paikalla Hämeentien ja 5. linjan kulmassa.
Tila ei sovellu parturi-kampaamo, ravintola-, baari- tai kahvilakäyttöön.
This premises is not suitable for use as a barbershop, restaurant, bar or café.
Tila ei sovellu parturi-kampaamo, ravintola-, baari- tai kahvilakäyttöön.
This premises is not suitable for use as a barbershop, restaurant, bar or café.
Vapautuu
Heti
Rakennusvuosi
1912
Saneerausvuosi
2017
Kerros
1 / 7
Energiatehokkuusluokka
Ei lain edellyttämää energiatodistusta
Katutasossa
Näkyvällä paikalla
Ota yhteyttä
ScanReal Oy LKV
Opus Business Park
Hitsaajankatu 24
00810 Helsinki
info@scanreal.fi
Puh:
Näytä puhelinnumero
020 730 8830
Sopivat toimitilat yhdellä otolla!
Kartoitamme toimitilatarpeesi ja etsimme yrityksellesi parhaiten sopivat vapaat toimitilat. Koska vuokranantajat maksavat palvelumme, on tämä yrityksellesi veloituksetonta.
OTA YHTEYTTÄ - SOVI NÄYTTÖ!
Kaikki kohteemme eivät ole netissä, kerro tilatarpeesi niin kartoitamme vaihtoehdot.
Palvelumme on tilanhakijalle ilmainen
Pyydä lisätietoa
