Vuokrataan varastotilat - Jyväskylä
KOY Anopin Talliosake tila 12, Anopintie 10, 40530 Jyväskylä #10860207
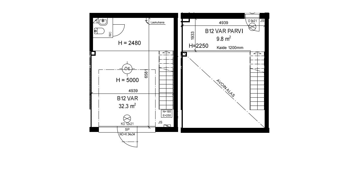
KOY Anopin Talliosakkeelta monikäyttöinen varasto, autotalli, harraste-, toimitila 12. Tilassa jo valmiina parvi sekä wc.
Osoite
Anopintie 10, 40530 Jyväskylä
Tilatyyppi
Varastotilaa
42 m2
Vuokra
480,00 €/kk
Kiinteistö
KOY Anopin Talliosake
Sijainti
Tila sijaitsee hallin rauhallisemmalla takasivulla.
Loistava sijainti yrityksen tukikohdaksi tai harrastepajaksi Etelä-Keljossa. Keljon moottoritielle minuutin ajomatka, Muuramen Shellille 5 min. ja Keljon alueen marketeille 5 min.
Loistava sijainti yrityksen tukikohdaksi tai harrastepajaksi Etelä-Keljossa. Keljon moottoritielle minuutin ajomatka, Muuramen Shellille 5 min. ja Keljon alueen marketeille 5 min.
Muuta
Moottoroitu nosto-ovi erillisellä käyntiovella. Tilamitat: 6,55 (Pituus) 4,90 (Leveys) 5,00 (Korkeus). Ovimitat: 3,40 (Leveys) 3,40 (Korkeus).
Käyttötarkoitusesimerkkejä: - toimitila - varastotila - yrityksen työtarvikevarasto / kalustovarasto - kimppatalli - harrastetila - bändikämppä - autotalli - moottoripyörätalli - mönkijätalli. Tila ei sovellu autokorjaamoksi eikä autopesulaksi.
Tila on sähkölämmitteinen. Vuokralainen tekee tilaan oman sähkösopimuksen. Vesi- ja sähkömaksu kulutuksen mukaan. Vakuus kahden kuukauden vuokraa vastaava määrä. Haetaan pitkäaikaista vuokralaista. Luottotiedot tarkistetaan.
Talliosake tuottaa joustavasti muunneltavia hallitiloja ympäri Suomen, joita yritykset ja yksityishenkilöt käyttävät tukikohtinaan erilaisille toiminnoille: yritys- ja liiketoimintaan, varastointiin sekä harrastuksiin.
Käyttötarkoitusesimerkkejä: - toimitila - varastotila - yrityksen työtarvikevarasto / kalustovarasto - kimppatalli - harrastetila - bändikämppä - autotalli - moottoripyörätalli - mönkijätalli. Tila ei sovellu autokorjaamoksi eikä autopesulaksi.
Tila on sähkölämmitteinen. Vuokralainen tekee tilaan oman sähkösopimuksen. Vesi- ja sähkömaksu kulutuksen mukaan. Vakuus kahden kuukauden vuokraa vastaava määrä. Haetaan pitkäaikaista vuokralaista. Luottotiedot tarkistetaan.
Talliosake tuottaa joustavasti muunneltavia hallitiloja ympäri Suomen, joita yritykset ja yksityishenkilöt käyttävät tukikohtinaan erilaisille toiminnoille: yritys- ja liiketoimintaan, varastointiin sekä harrastuksiin.
Vapautuu
01.04.2026
Katutasossa
Ota yhteyttä
Talliosake Oy
Jaakko Laitinen
Aluemyyntipäällikkö, Keski-Suomi
Näytä puhelinnumero
0409030706
Pyydä lisätietoa
