Vuokrataan liiketilat - Jyväskylä
Liiketila, Kauppakatu 25, Keskusta, 40100 Jyväskylä #10860136
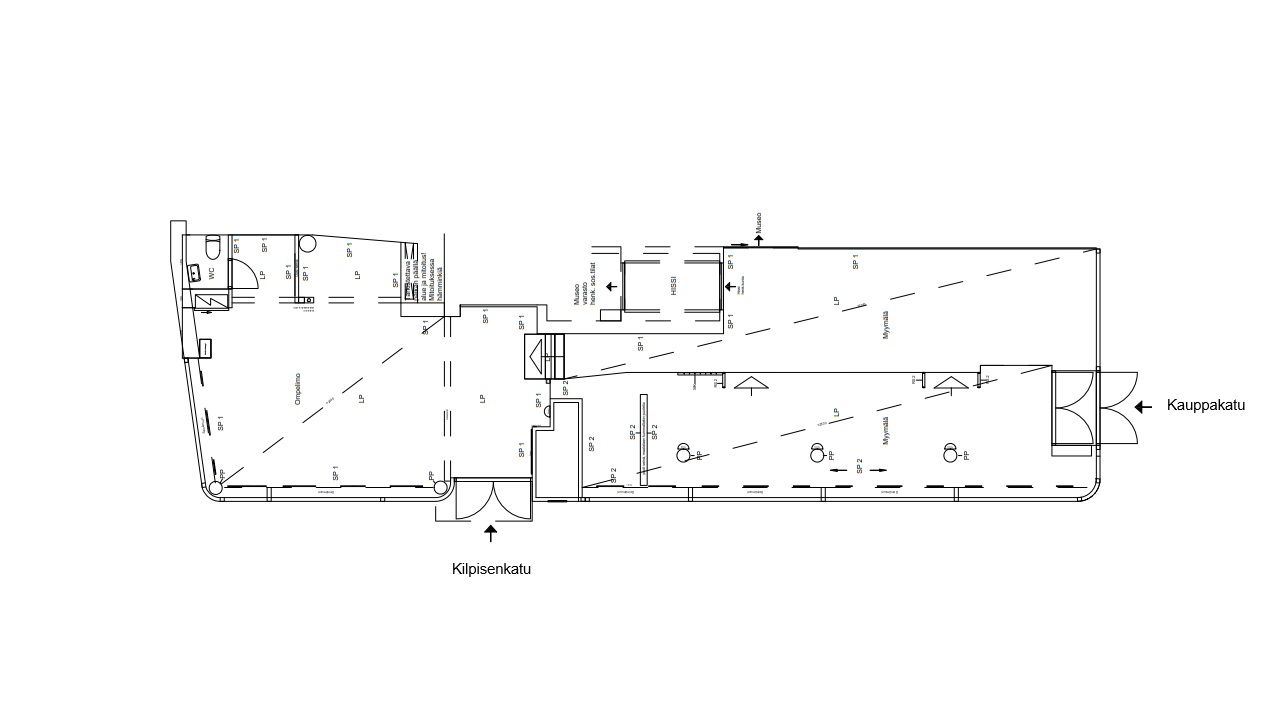
Vuokrataan keskustasta katutason liiketilaa
Osoite
Kauppakatu 25, 40100 Jyväskylä
Tilatyyppi
Liiketilaa
160 m2
Muuta
Vuokrataan keskustasta siistikuntoinen, huippusijainnilla oleva katutason liiketila Kauppakadun ja Kilpisenkadun kulmauksesta. Paljon näyteikkunapinta-alaa Kävelykadun suuntaan sekä Kirkkopuiston suuntaan. Soita ja kysy lisää!
Vapautuu
Kysy
Kerros
1
Ota yhteyttä
Infonia Oy
Kauppakatu 18 A, 40100 Jyväskylä
Näytä puhelinnumero
+358 407579731
Mikko Hirvi
Näytä puhelinnumero
+358 407579731
Pyydä lisätietoa
