Vuokrataan liiketilat - Jyväskylä
Halosen tilat, Asemakatu 11, Keskusta, 40100 Jyväskylä #10860134
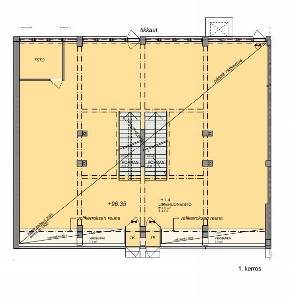
Näkyvällä sijainnilla monipuolinen ja valoisa liiketila
Osoite
Asemakatu 11, 40100 Jyväskylä
Tilatyyppi
Liiketilaa
654 m2
Muuta
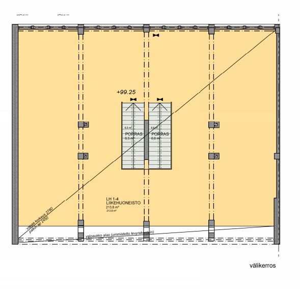
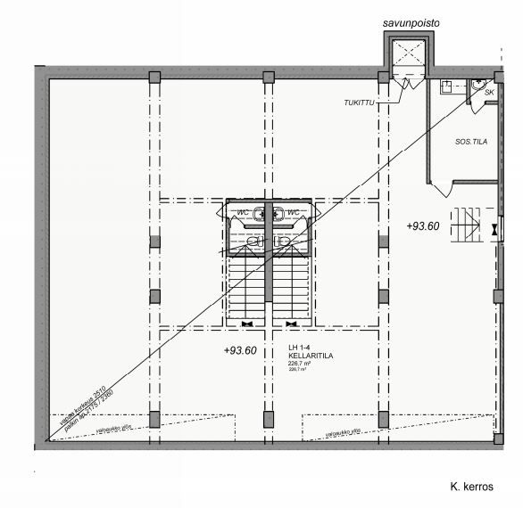
Vuokrataan noin 654 m2 liike- tai toimistotila vilkkaalta paikalta Jyväskylän keskustasta. Tila on kolmessa kerroksessa ja katotasossa sekä toisessa kerroksessa on isot näyteikkunat Asemakadulle. Tila voidaan jakaa kahteen erilliseksi tilaksi. Heti vapaa.
Ota yhteyttä ja kysy lisätietoja!
Ota yhteyttä ja kysy lisätietoja!
Vapautuu
01.02.2026
Ota yhteyttä
Infonia Oy
Kauppakatu 18 A, 40100 Jyväskylä
Näytä puhelinnumero
+358503523143
Katja Shemeikka
Pyydä lisätietoa
