Vuokrataan liiketilat, tuotantotilat, varastotilat - Pirkkala
Jasperintie 310 B, 33960 Pirkkala #10860117
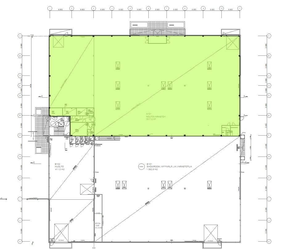
Syksyllä 2026 vuokrattavaksi vapautumassa 2078 m² monikäyttöistä myymälätilaa, joka soveltuu myös varastointiin ja tuotantoon. Toimitilassa on kaksi nosto-ovea. Tila soveltuu hyvin esim. teknisen erikoiskaupan käyttöön. Uudehkoa ja siistiä toimitilaa, jonka korkeus on 7 m.
Kohde sijaitsee näkyvällä paikalla ohitustien varressa. Naapurikiinteistössä om ja monipuolinen lounasravintola.
Kysy rohkeasti lisätietoja ja sovitaan esittelyaika!
Katutasossa
Näkyvällä paikalla
Hausala Oy
Erkkilänkatu 11, 33100 Tampere
Näytä puhelinnumero
050 472 7077
Mikko Ranta
Näytä puhelinnumero
050 360 6500
Mika Savikko
Näytä puhelinnumero
050 472 7077
