Vuokrataan liiketilat - Espoo
Martinsillantie 2A, Suomenoja, 02270 Espoo #10860105
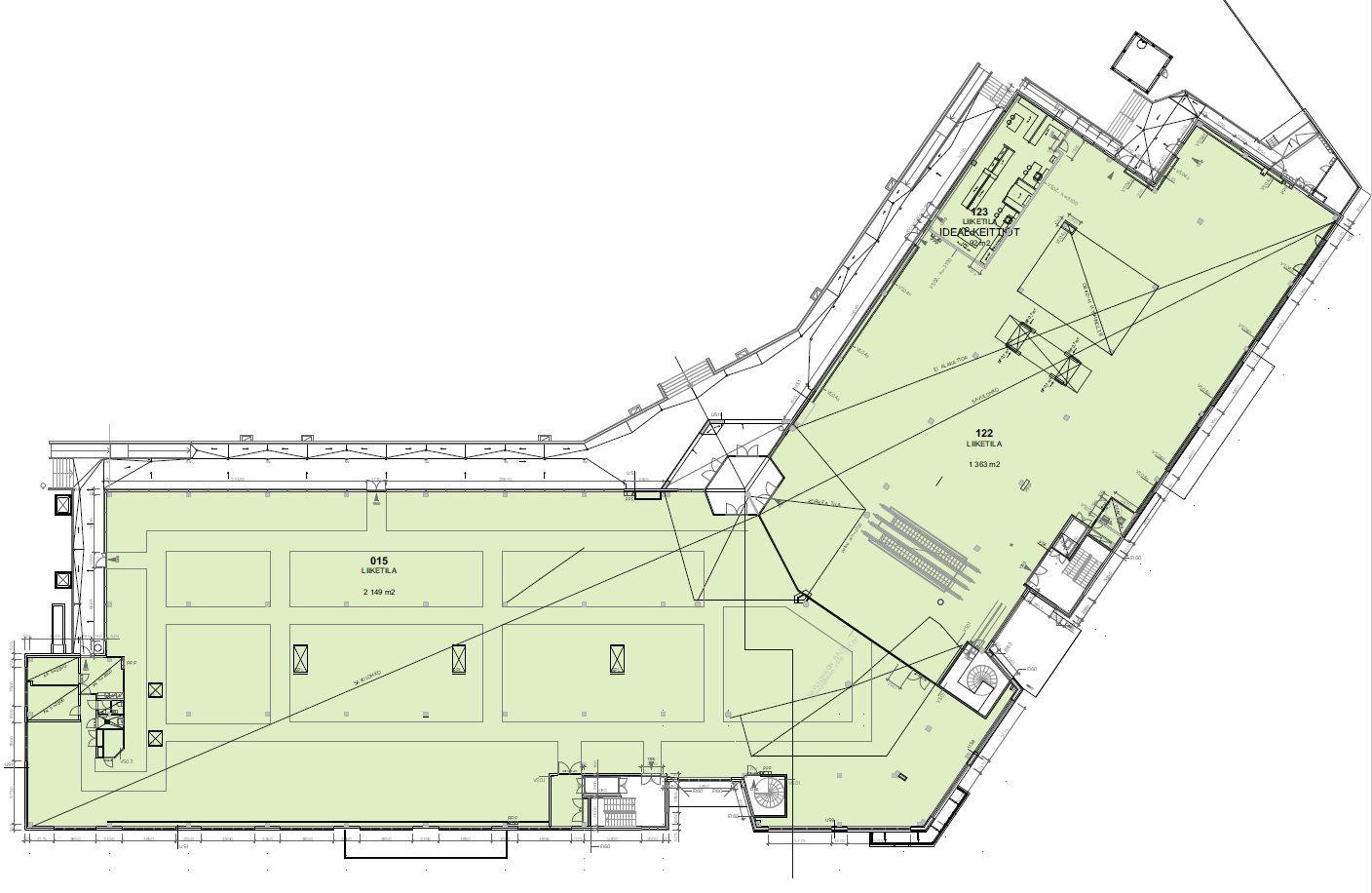
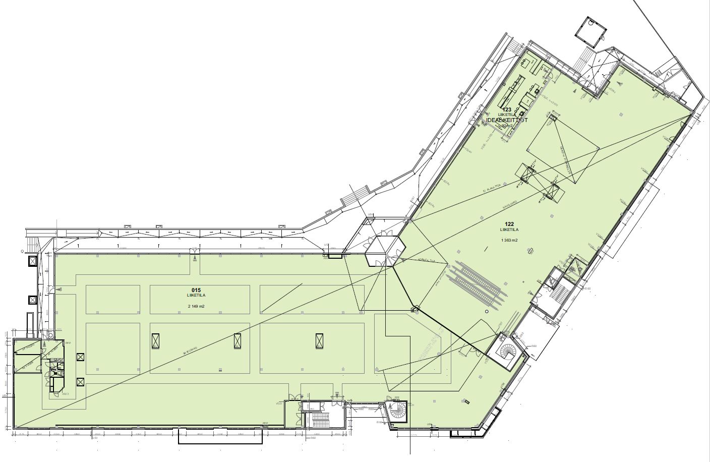
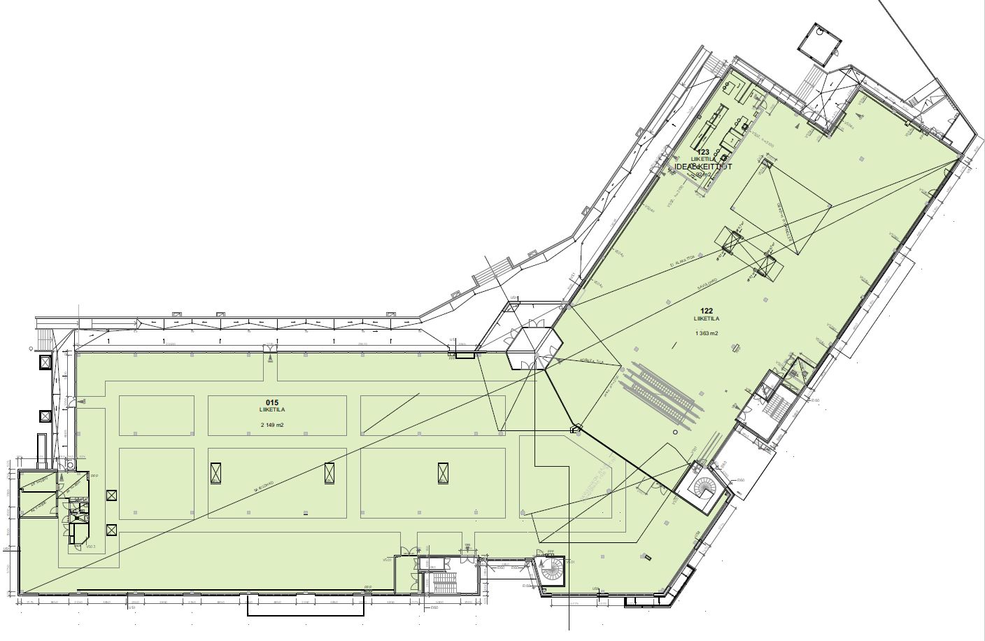
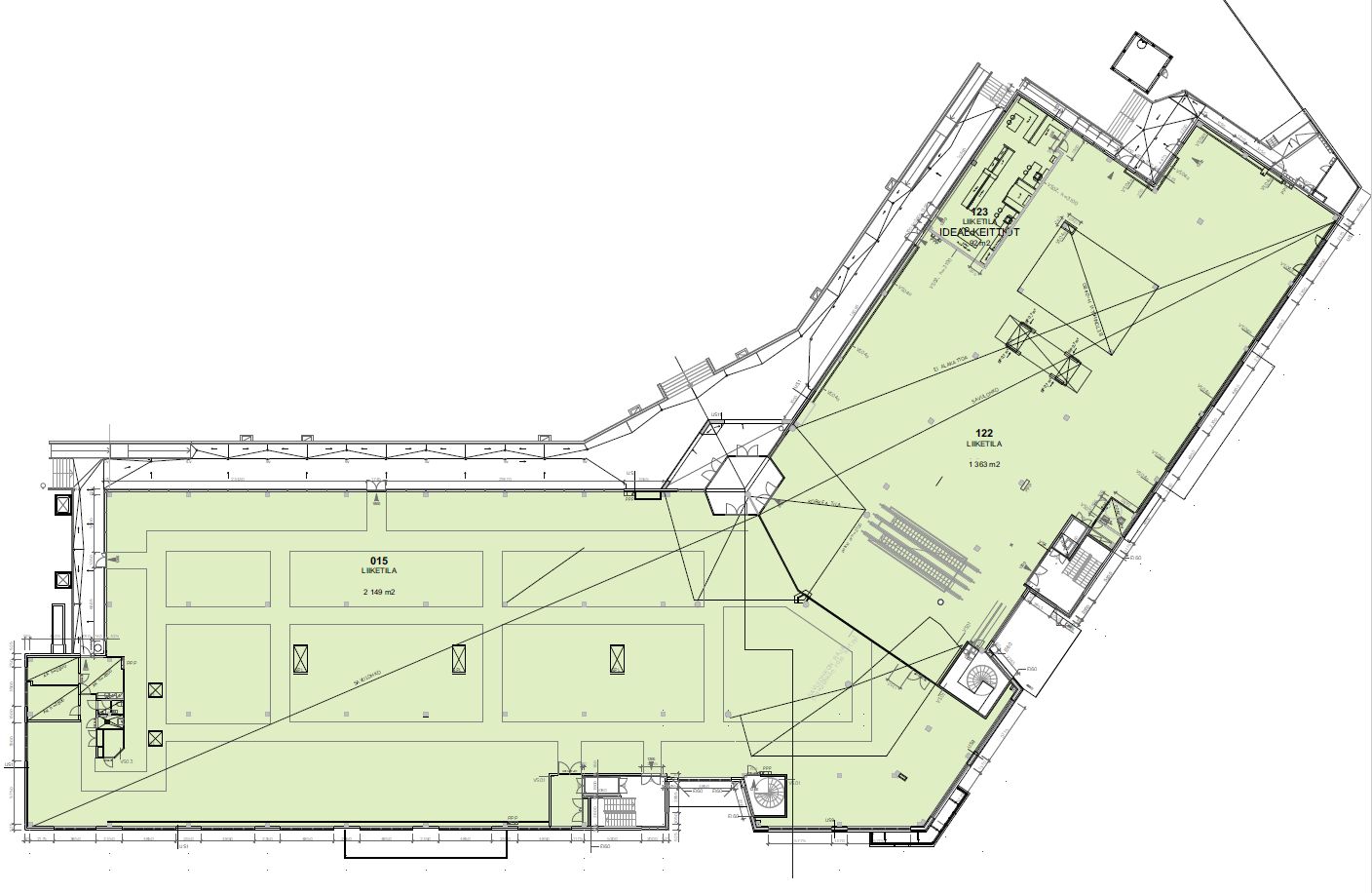
Finnoon Sisustustalo - Liiketila 3604 m² (jaettavissa 1455 m²/2149 m²)
Osoite
Martinsillantie 2A, 02270 Espoo
Tilatyyppi
Liiketilaa
1455 - 3604 m2
Pohjapiirros
Kiinteistö
Monipuolinen ja hyvin muuntojoustava katutason liiketilakokonaisuus
Tilat soveltuvat erinomaisesti usean eri toimialan tarpeisiin, ja ne voidaan joustavasti jakaa vähintään kahdelle käyttäjälle, tarvittaessa useammallekin. Kahden käyttäjän jaossa tilakoot ovat noin 1455 m² ja 2149 m², mikä tarjoaa erinomaiset mahdollisuudet erilaisiin liiketoimintakonsepteihin.
Lisäksi on mahdollista vuokrata erillinen, noin 789 m² varastotila sekä 173 m² toimisto- ja sosiaalitilat, jotka täydentävät kokonaisuuden toimivaksi ja hyvin palvelevaksi ympäristöksi.
Kysy lisätietoja!
Finnoon Sisustustalo
Alun perin sisustustalona tunnettu kiinteistö on kaksikerroksinen ja valmistunut vuonna 1988. Se on peruskorjattu vuonna 2012, ja tarjoaa nyt avarat, valoisat ja hyväkuntoiset toimitilat useammalle käyttäjälle. Tilat soveltuvat monipuolisesti erilaisiin liiketoimintoihin.
Sijainti
Finnoon Sisustustalo tarjoaa yrityksellesi erinomaisen sijainnin Suomenojalla vilkkaalla kauppapaikalla. Kiinteistö sijaitsee näkyvällä paikalla Länsiväylän varrella, aivan Finnoon liikenneympyrän tuntumassa. Alueelle on helppo saapua niin Espoosta, Kirkkonummelta kuin koko pääkaupunkiseudulta. Kiinteistön pihalla on runsaasti parkkitilaa, ja aivan vieressä sijaitsee bussipysäkki.
Palvelut
Finnoo on tänä päivänä kauppapaikka, jossa toimii vahvoja liiketilakäyttäjiä. Läheltä löytyy kauppakeskuksia ja päivittäistavarakauppoja, erikoisliikkeitä ja pienteollisuutta sekä vapaa-ajan palveluita, kuten urheilumahdollisuuksia ja perheille suunnattuja huvikeskuksia. Alueen ostovoimainen ja kasvava asiakaskunta tekee Finnoosta houkuttelevan sijainnin monenlaiselle liiketoiminnalle.
Ota yhteyttä
Kiinnostuitko? Ota yhteyttä ja tule tutustumaan tiloihin!
Toimitilavälityspalvelumme on tilanhakijalle maksuton.
Tilat soveltuvat erinomaisesti usean eri toimialan tarpeisiin, ja ne voidaan joustavasti jakaa vähintään kahdelle käyttäjälle, tarvittaessa useammallekin. Kahden käyttäjän jaossa tilakoot ovat noin 1455 m² ja 2149 m², mikä tarjoaa erinomaiset mahdollisuudet erilaisiin liiketoimintakonsepteihin.
Lisäksi on mahdollista vuokrata erillinen, noin 789 m² varastotila sekä 173 m² toimisto- ja sosiaalitilat, jotka täydentävät kokonaisuuden toimivaksi ja hyvin palvelevaksi ympäristöksi.
Kysy lisätietoja!
Finnoon Sisustustalo
Alun perin sisustustalona tunnettu kiinteistö on kaksikerroksinen ja valmistunut vuonna 1988. Se on peruskorjattu vuonna 2012, ja tarjoaa nyt avarat, valoisat ja hyväkuntoiset toimitilat useammalle käyttäjälle. Tilat soveltuvat monipuolisesti erilaisiin liiketoimintoihin.
Sijainti
Finnoon Sisustustalo tarjoaa yrityksellesi erinomaisen sijainnin Suomenojalla vilkkaalla kauppapaikalla. Kiinteistö sijaitsee näkyvällä paikalla Länsiväylän varrella, aivan Finnoon liikenneympyrän tuntumassa. Alueelle on helppo saapua niin Espoosta, Kirkkonummelta kuin koko pääkaupunkiseudulta. Kiinteistön pihalla on runsaasti parkkitilaa, ja aivan vieressä sijaitsee bussipysäkki.
Palvelut
Finnoo on tänä päivänä kauppapaikka, jossa toimii vahvoja liiketilakäyttäjiä. Läheltä löytyy kauppakeskuksia ja päivittäistavarakauppoja, erikoisliikkeitä ja pienteollisuutta sekä vapaa-ajan palveluita, kuten urheilumahdollisuuksia ja perheille suunnattuja huvikeskuksia. Alueen ostovoimainen ja kasvava asiakaskunta tekee Finnoosta houkuttelevan sijainnin monenlaiselle liiketoiminnalle.
Ota yhteyttä
Kiinnostuitko? Ota yhteyttä ja tule tutustumaan tiloihin!
Toimitilavälityspalvelumme on tilanhakijalle maksuton.
Vapautuu
Kysy
Kerros
1
Ota yhteyttä
Logistila Oy
Kylätie 11-13, 00320 HELSINKI
Karoliina Turppo
Näytä puhelinnumero
050 345 3258
Pyydä lisätietoa
