Vuokrataan liiketilat - Pirkkala
Autokeskuksentie 12, Linnakallio, 33960 Pirkkala #10860051
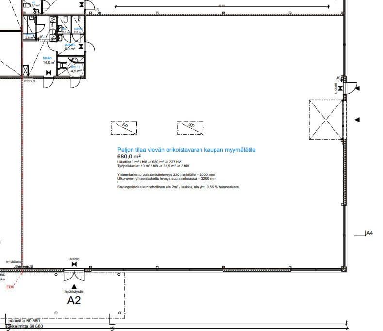
Tarjolla tyylikäs ja monikäyttöinen toimitila erinomaisella näkyvyydellä. Tämä katutasossa sijaitseva tila tarjoaa sujuvan saavutettavuuden niin asiakkaille kuin henkilöstölle.
Tilassa on oma erillinen sisäänkäynti sekä nosto-ovi, mikä mahdollistaa helpon tavaraliikenteen ja joustavan käytön. Pienet, käytännölliset sosiaalitilat tukevat päivittäistä toimintaa.
Runsas pihatila tuo lisäarvoa esimerkiksi pysäköintiin, lastaukseen tai ulkovarastointiin.
Kohde soveltuu erinomaisesti showroom- ja liiketilakäyttöön, varastoksi tai pientuotantoon – tila mukautuu monenlaisen yritystoiminnan tarpeisiin.
Vapautuminen 1.5.2026
Vuokraan lisätään alv + kulut.
Ota yhteyttä ja kysy lisää!
www.blanctoimitilat.fi
Masa Hakala
masa.hakala@blanckiinteisto.com
+358 40 964 2482
