Vuokrataan tuotantotilat - Pirkkala
Jasperintie 334, Linnakorpi, 33960 Pirkkala #10860050
Etsitkö yrityksellesi tilaa, joka mahdollistaa kasvun ja tekee vaikutuksen?
Kesällä 2026 vapautuu vuokrattavaksi moderni ja selkeä kokonaisuus näkyvällä paikalla suoraan ohitustien varrella.
Kiinteistölle on erinomainen saavutettavuus joka puolelta kaupunkia – sijainti tukee sujuvaa arkea niin henkilöstölle kuin asiakkaille ja logistiikalle.
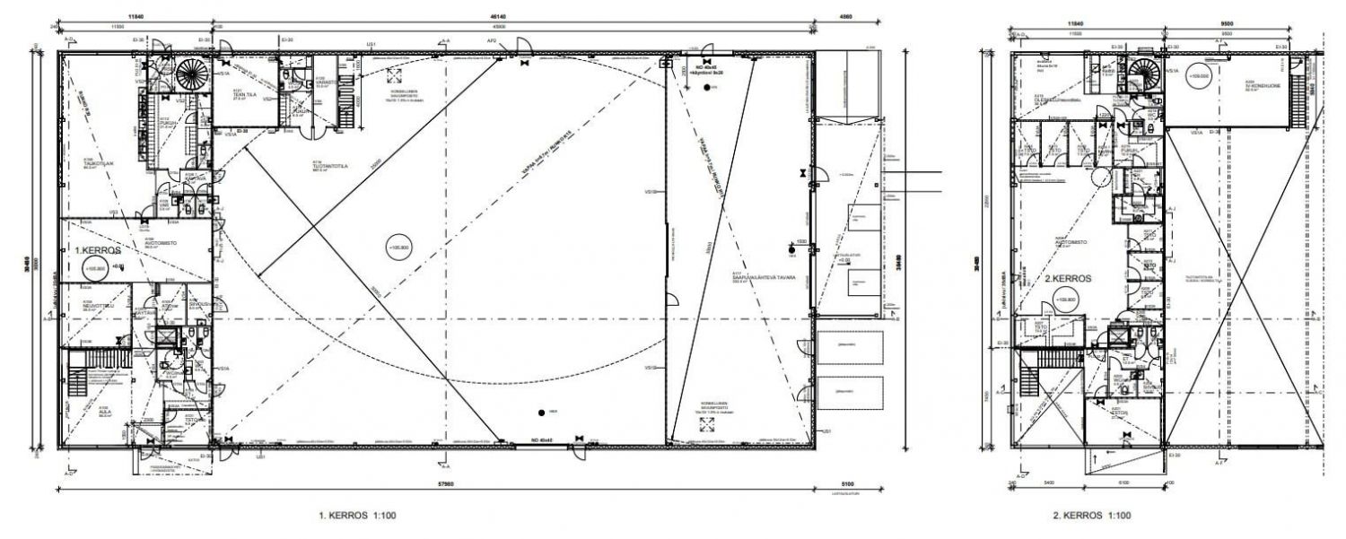
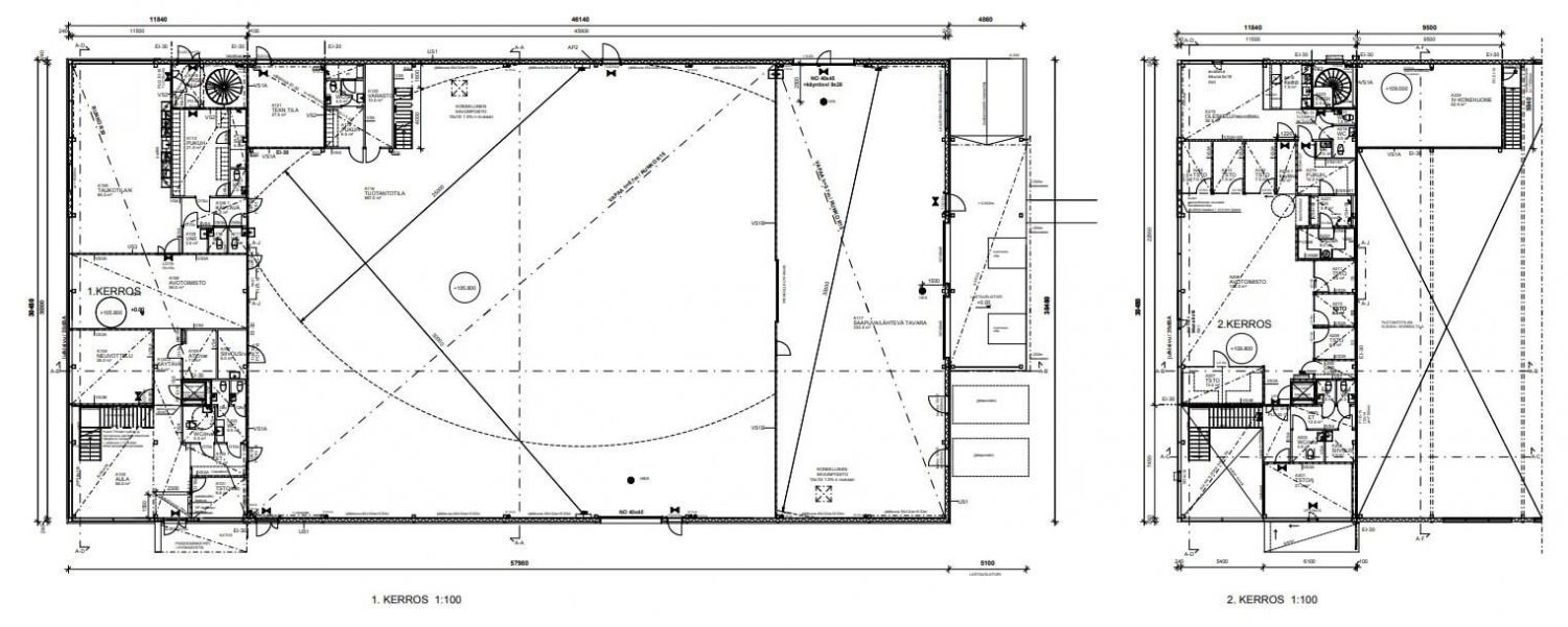
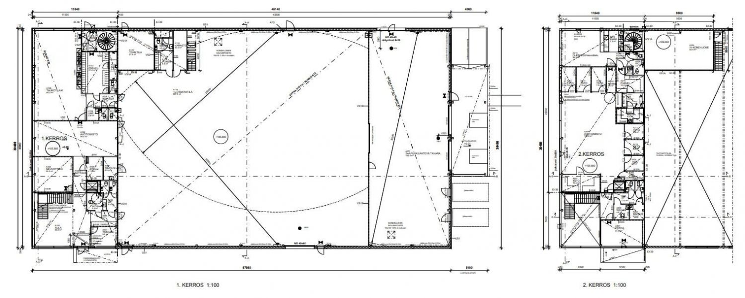
Vuokrattavan kokonaisuuden pinta-ala on 2 143 m², josta noin 1 450 m² on korkeaa ja avaraa hallitilaa. Selkeä pohjaratkaisu mahdollistaa tehokkaan varastoinnin, tuotannon tai muun liiketoiminnan tarpeet.
Toimistotilat (n. 682 m²) sijaitsevat kahdessa kerroksessa. Valoisat ja tilavat huoneet suurilla ikkunoilla tarjoavat viihtyisän ja edustavan työympäristön.
Tilat soveltuvat erinomaisesti niin hallinnolle, myynnille kuin neuvottelukäyttöön.
Hallissa on kaksi nosto-ovea sekä lastauslaituri, jossa kaksi kuormaussiltaa – tavaraliikenne toimii tehokkaasti ja sujuvasti. Tilat on varustettu pukuhuoneilla sekä hallin että toimiston puolella. Lisäksi käytössä on oma korkealaatuinen sauna ja edustustila, jotka tuovat arkeen lisämukavuutta ja mahdollisuuden asiakastilaisuuksiin.
Kiinteistöllä on runsaasti pysäköintipaikkoja henkilöstölle ja vieraille.
Tämä kokonaisuus tarjoaa toimivan yhdistelmän näkyvyyttä, tehokkuutta ja viihtyisyyttä – erinomainen valinta yritykselle, joka haluaa kasvaa ja toimia logistisesti keskeisellä paikalla.
Vuokraan lisätään alv + kulut.
Ota yhteyttä ja kysy lisää!
www.blanctoimitilat.fi
Masa Hakala
masa.hakala@blanckiinteisto.com
+358 40 964 2482
