Myydään liiketilat - Eurajoki
Hakatie 5, Sittlahti, 29100 Eurajoki #10860045
Luvialla sijaitseva liike- ja toimitila tarjoaa erinomaiset mahdollisuudet uusille ja vanhoille yrittäjille. Tämä vuonna 1990 valmistunut ja vuonna 1998 laajennettu kohde on monipuolinen.
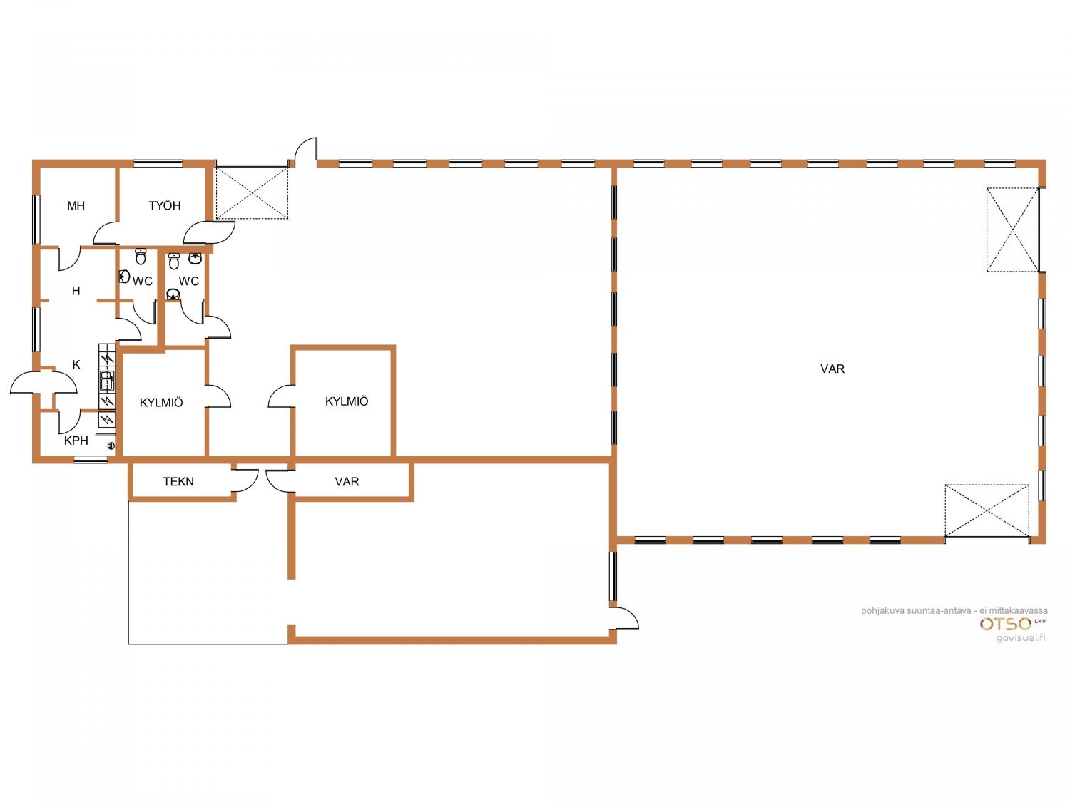
Kokonaispinta-ala on 355 m2, josta noin 45 m2 on toimisto- ja sosiaalitiloja, myös keittiö, pesuhuone ja sauna.
Rakennuksen korkeus ei sovellu kaikille, valmis korkean osan + 200 m2 laajennus suunnitelma valmiina.
Sijainti on erinomainen Luvian keskustan tuntumassa, ja välittömässä 8-tien läheisyydessä.
8-tieltä erittäin hyvä näkyvyys tontille ja rakennukseen, ilmaista mainosta 365 päivää vuodessa ja 24h vuorokaudessa :)
Tämä liike- ja toimitila on jälleen monien mahdollisuuksien paikka.
Lisäksi laajennussuunnitelmat tarjoavat mahdollisuuden tilojen kasvattamiseen entisestään. Tartu tilaisuuteen ja hyödynnä tämän kiinteistön ja sijainnin potentiaali !!!
Ota yhteyttä ja sovitaan sinulle sopiva esittelyaika,
juha.blom@otsolkv.fi
0400 611 688
Kiinteistönvälitys Otso LKV Oy
Juha Blom
Kiinteistönvälittäjä, LKV, LVV, Yrittäjä
Näytä puhelinnumero
+358400611688
