Vuokrataan toimistotilat - Helsinki
Pasilankatu 2, Pasila, 00240 Helsinki #10860032
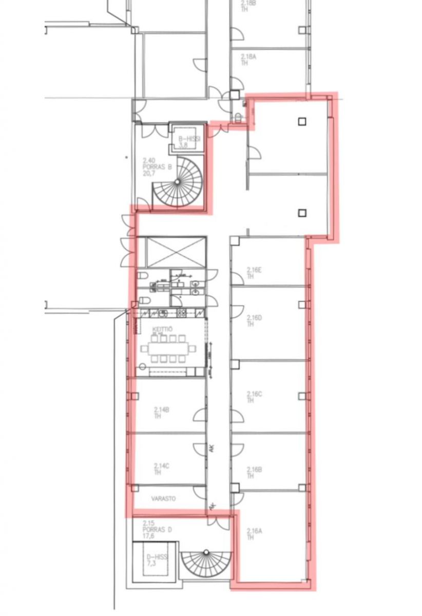
Vuokrataan siisti ja hyväkuntoinen 2. kerroksen toimistotila Huolintatalosta. Tilassa on 9 erikokoista huonetta, sekä 2 wc:tä ja iso keittiö. Tila on heti vapaa.
Merihenkisessä Huolintalossa on tasokas lounasravintola, erikseen vuokrattavia neuvottelutiloja, sekä noin 50 hengen koulutustila. Kiinteistössä aulapalvelu, uima-allas, pieni kuntosali, sauna ja suihkutilat työmatka pyöräilijöille. Autopaikkoja löytyy viereisestä pysäköintihallista. Loistava sijainti Pasilan juna-asema ja Triplan palvelut ovat muutaman minuutin kävelymatkan päässä.
Lisätietoja soita 020 730 4530 tai info@repoint.fi. Palvelumme on tilanhakijalle ilmainen.
Repoint Toimitilat Oy
Itälahdenkatu 22 B, 00210 Helsinki
Näytä puhelinnumero
020 730 4530
Lisätietoja soita Näytä puhelinnumero 020 730 4530 tai info@repoint.fi
https://repoint.fi/