Vuokrataan toimistotilat - Helsinki
Valimotie 10, Pitäjänmäki, 00380 Helsinki #10860024
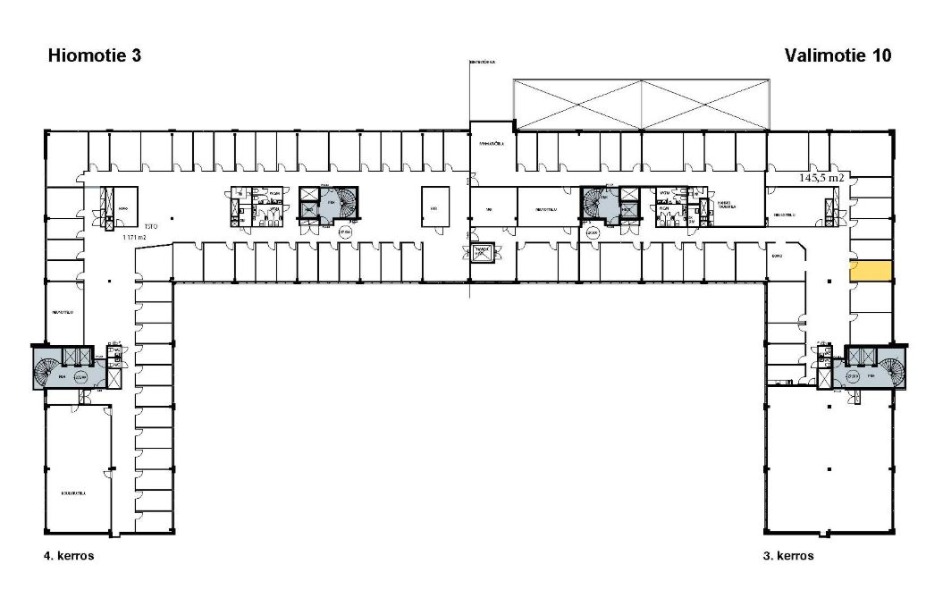
Vuokrattavana viihtyisä yksityinen toimistohuone rakennuksen kolmannesta kerroksesta.
Osoite
Valimotie 10, 00380 Helsinki
Tilatyyppi
Toimistotilaa
10 m2
Kiinteistö
Vuokrattavana viihtyisä yksityinen toimistohuone rakennuksen kolmannesta kerroksesta. Samasta kerroksesta löytyvät yhteiskäyttöiset keittiö- ja wc-tilat.
Sijainti
Pitäjänmäki, Helsinki
Pysäköinti
Autopaikat yhteensä 156 kpl, autohallissa ja pihapaikoilla.
Palvelut
-Aulapalvelu
-Lounasravintola
-Vuokrattavat neuvottelutilat
-Sauna
-Kuntosali
-Lounasravintola
-Vuokrattavat neuvottelutilat
-Sauna
-Kuntosali
Kulkuyhteydet
-Juna
-Bussi
-Oma auto
-Bussi
-Oma auto
Vapautuu
Heti
Kerros
3
Energiatehokkuusluokka
Ei lain edellyttämää energiatodistusta
Näkyvällä paikalla
Hissi
Lastauslaituri
Ota yhteyttä
REALIUM OY LKV
Tammasaarenkatu 1, 00180 Helsinki
Vaihde:
Näytä puhelinnumero
010 326 346
Tuomo Mäkelä
tuomo.makela@realium.fi
p.
Näytä puhelinnumero
044 050 1158
Joel Keto
joel.keto@realium.fi
p.
Näytä puhelinnumero
045 317 0330
KAIKKI TILAVAIHTOEHDOT KERRALLA!
SOITA - MEILAA JA TILAA NÄYTTÖ!
Ilmainen palvelu tilanhakijoille.
Kartoitamme parhaat tilavaihtoehdot.
Kaikki kohteet eivät ole netissä.
Pyydä lisätietoa
