Vuokrataan liiketilat, näyttelytilat - Lahti

Alavankatu 2 A, 15610 Lahti #10860016

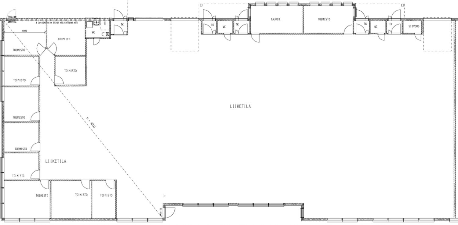
Monikäyttöistä sisään ajettavaa liiketilaa teknisen kaupan alueella. Loistava näkyvyys Lahden eteläisen sisääntulotien Uudenmaankadun ja Aukeankadun kulmassa. Avoin tila soveltuu hyvin myymäläksi, liiketilaksi, tuotanto- tai varastotilaksi. Tilassa on kaksi sisäänkäyntiä ja kaksi nosto-ovea.

Osoite
Alavankatu 2 A, 15610 Lahti
Tilatyyppi
Liiketilaa
300 - 850 m2
Näyttelytilaa
300 - 850 m2
Yhteensä
300 - 850 m2
Tilajako
Jaettavissa
Kiinteistö
Avointa tilaa, josta löytyy erillinen taukotila keittiöllä, neuvottelutila, 3 WC-tilaa sekä siivouskomero. Kaksi sisäänkäyntiä ja kaksi nosto-ovea. Tilassa on toimistohuoneita, jotka tullaan purkamaan, mutta voidaan jättää tarvittaessa.
Sijainti
Alueella toimivat mm. Carglass, KL- Varosat, Lukkokeskus ja Plus Katsastus. Naapurustossa mm. Ahlsell, Fixus, Headin Automotive, Länsiauto, SAKA ja Vianor.
Pysäköinti
Runsaasti parkkitilaa
Vapautuu
Kysy

Jaettavissa

Ota yhteyttä

Town Kiinteistöt Oy

Launeen Kauppakulma p. Näytä puhelinnumero 0400 297 823

Pyydä lisätietoa

Kohteesta Alavankatu 2 A, Lahti

 

B2B palvelut

LASTAUSRATKAISUT

Mainos
Lastauksien ratkaisut tehokkaammin ja turvallisemmin

HALLIT