Vuokrataan toimistotilat - Helsinki
Valimotie 13 B, Pitäjänmäki, 00380 Helsinki #10860015
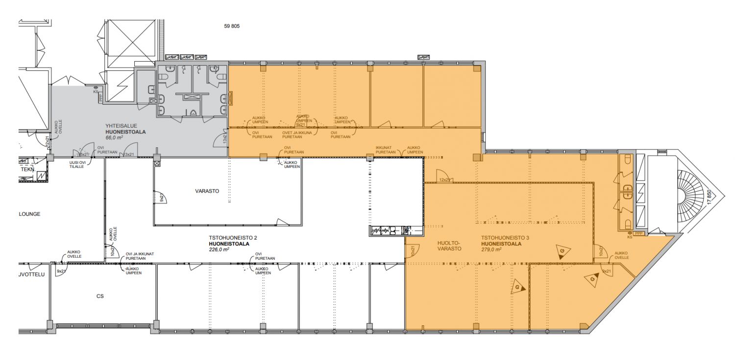
Vuokrattavana 2. kerroksen tyylikästä ja valoisaa toimistotilaa.
Osoite
Valimotie 13 B, 00380 Helsinki
Tilatyyppi
Toimistotilaa
279 m2
Kiinteistö
Vuokrattavana 2. kerroksen tyylikästä ja valoisaa toimistotilaa. Tila sisältää sekä yksittäisiä toimistohuoneita että avointa tilaa.
Sijainti
Pitäjänmäki, Helsinki
Pysäköinti
Autohalli ja alueen pysäköintilaitokset.
Palvelut
-Aulapalvelut
-Lounasravintola
-Neuvottelutilat
-Kuntosali
-Lounasravintola
-Neuvottelutilat
-Kuntosali
Kulkuyhteydet
-Juna-asema kävelyetäisyydellä
-Bussi
-Oma auto
-Bussi
-Oma auto
Vapautuu
Heti
Kerros
2
Energiatehokkuusluokka
Ei lain edellyttämää energiatodistusta
Näkyvällä paikalla
Hissi
Ota yhteyttä
REALIUM OY LKV
Tammasaarenkatu 1, 00180 Helsinki
Vaihde:
Näytä puhelinnumero
010 326 346
Tuomo Mäkelä
tuomo.makela@realium.fi
p.
Näytä puhelinnumero
044 050 1158
Joel Keto
joel.keto@realium.fi
p.
Näytä puhelinnumero
045 317 0330
KAIKKI TILAVAIHTOEHDOT KERRALLA!
SOITA - MEILAA JA TILAA NÄYTTÖ!
Ilmainen palvelu tilanhakijoille.
Kartoitamme parhaat tilavaihtoehdot.
Kaikki kohteet eivät ole netissä.
Pyydä lisätietoa
