Vuokrataan toimistotilat - Helsinki
Rälssintie 6, Pukinmäki, 00720 Helsinki #10860002
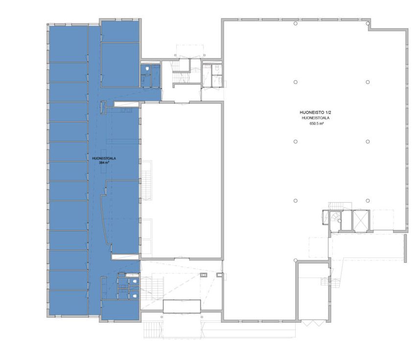
Vuokrattavana 1. kerroksen näyttely-/toimistotilaa loistavalta sijainnilta Pukinmäestä.
Osoite
Rälssintie 6, 00720 Helsinki
Tilatyyppi
Toimistotilaa
384 m2
Tilajako
Jaettavissa
Kiinteistö
Vuokrattavana 1. kerroksen näyttely-/toimistotilaa loistavalta sijainnilta Pukinmäestä. Toimistossa on työhuoneet, pari neuvotteluhuonetta, oma keittiö ja sosiaalitilat.
Sijainti
Pukinmäki, Helsinki
Pysäköinti
Kiinteistön piha-alueella tarjolla useita pysäköintipaikkoja.
Palvelut
Lähialueen palvelut.
Kulkuyhteydet
- Lähijuna
- Bussi
- Oma auto
- Bussi
- Oma auto
Vapautuu
Heti
Kerros
1
Energiatehokkuusluokka
Ei lain edellyttämää energiatodistusta
Näkyvällä paikalla
Jaettavissa
Hissi
Ota yhteyttä
REALIUM OY LKV
Tammasaarenkatu 1, 00180 Helsinki
Vaihde:
Näytä puhelinnumero
010 326 346
Tuomo Mäkelä
tuomo.makela@realium.fi
p.
Näytä puhelinnumero
044 050 1158
Joel Keto
joel.keto@realium.fi
p.
Näytä puhelinnumero
045 317 0330
KAIKKI TILAVAIHTOEHDOT KERRALLA!
SOITA - MEILAA JA TILAA NÄYTTÖ!
Ilmainen palvelu tilanhakijoille.
Kartoitamme parhaat tilavaihtoehdot.
Kaikki kohteet eivät ole netissä.
Pyydä lisätietoa
