Vuokrataan toimistotilat - Helsinki
Rälssintie 6, Pukinmäki, 00720 Helsinki #10860000
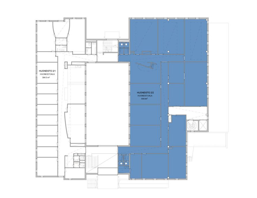
Vuokrattavana 2. kerroksen toimistotilaa loistavalta sijainnilta Pukinmäestä.
Osoite
Rälssintie 6, 00720 Helsinki
Tilatyyppi
Toimistotilaa
550,5 m2
Kiinteistö
Vuokrattavana 2. kerroksen toimistotilaa loistavalta sijainnilta Pukinmäestä.
Sijainti
Pukinmäki, Helsinki
Pysäköinti
Kiinteistön piha-alueella tarjolla useita pysäköintipaikkoja.
Palvelut
Lähialueen palvelut.
Kulkuyhteydet
- Lähijuna
- Bussi
- Oma auto
- Bussi
- Oma auto
Vapautuu
Heti
Kerros
K1
Energiatehokkuusluokka
Ei lain edellyttämää energiatodistusta
Näkyvällä paikalla
Hissi
Ota yhteyttä
REALIUM OY LKV
Tammasaarenkatu 1, 00180 Helsinki
Vaihde:
Näytä puhelinnumero
010 326 346
Tuomo Mäkelä
tuomo.makela@realium.fi
p.
Näytä puhelinnumero
044 050 1158
Joel Keto
joel.keto@realium.fi
p.
Näytä puhelinnumero
045 317 0330
KAIKKI TILAVAIHTOEHDOT KERRALLA!
SOITA - MEILAA JA TILAA NÄYTTÖ!
Ilmainen palvelu tilanhakijoille.
Kartoitamme parhaat tilavaihtoehdot.
Kaikki kohteet eivät ole netissä.
Pyydä lisätietoa
