Vuokrataan toimistotilat, tuotantotilat, varastotilat - Lempäälä
Telinetie 5 A, 5C Ja 5D, Sääksjärvi, 33880 Lempäälä #10859909
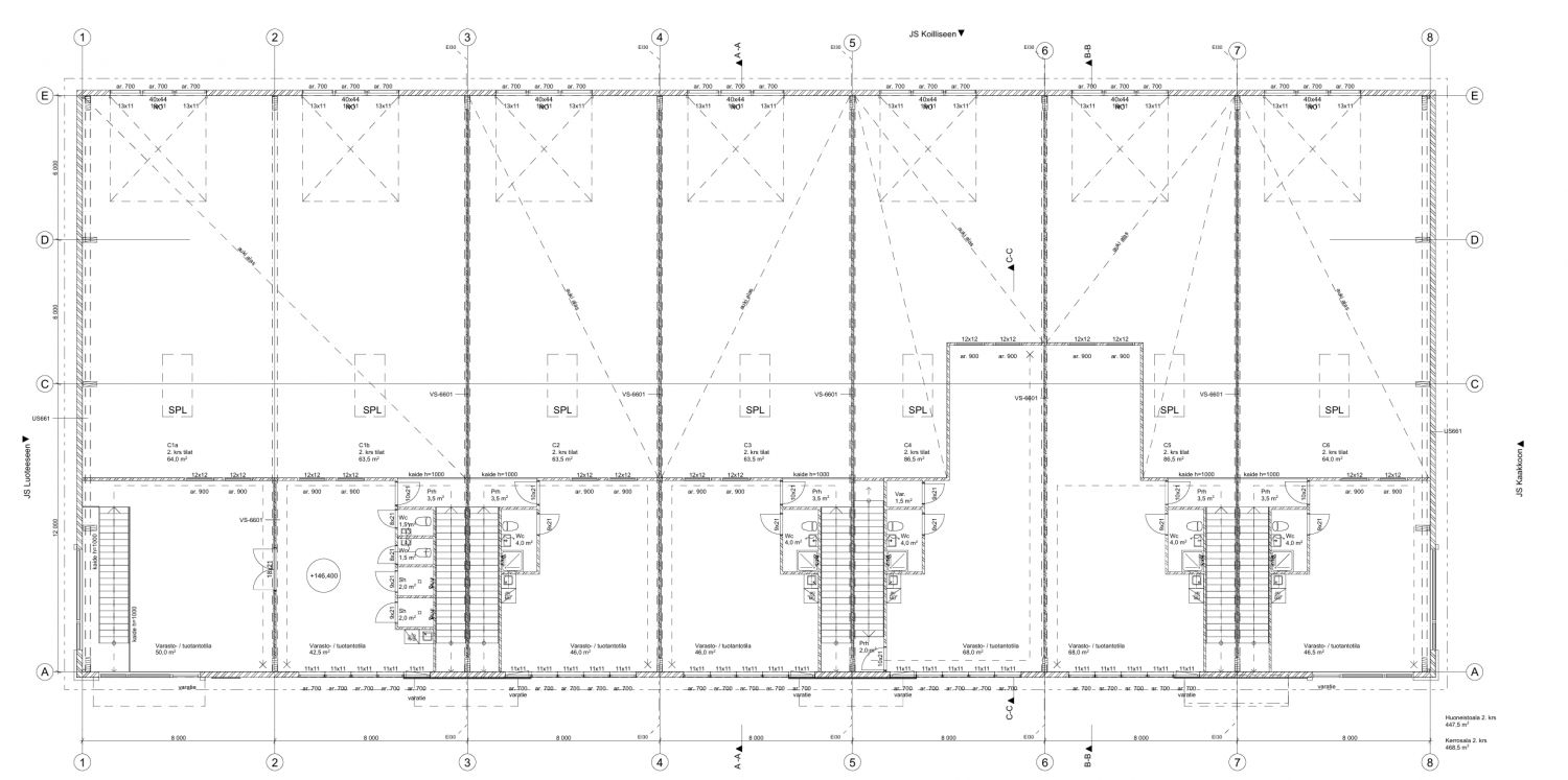
Korkeaa Hallitilaa Sääksjärvellä C5
Osoite
Telinetie 5 A, 5C Ja 5D, 33880 Lempäälä
Tilatyyppi
Toimistotilaa
86 m2
Tuotantotilaa
176 m2
Varastotilaa
176 m2
Yhteensä
262 m2
Kiinteistö
Telinetien hallin C5 tilassa on vapautumassa 6/2026 laadukasta katutason avointa hallitilaa noin 108 m2 ja toimistotilaa parvella noin 86 m2, sekä alakerrassa 68m2 väestösuoja jossa kaksi huonetta, jota voi hyvin käyttää varastona tai sosiaalitiloina. Tilan vapaa korkeus palkkien välissä noin 7,6 m ja palkin alla noin 6,3 m. Toiselta puolelta kulkuovi ja toisella puolen noin 4,3 m korkea nosto-ovi.
Varusteluna on sähköiset nosto-ovet, hiekanerotuskaivot, öljynerotuskaivo pihassa, vesikiertoinen lattialämmitys, 2. kerroksen toimistotiloissa maakylmäjäähdytys. Kohteessa on maalämpö. Rakennukseen tulee valokuitu.
Telinetien hallit ovat parin minuutin päässä Tampere-Helsinki-moottoritieltä. Mainospaikka korkeasta pylonista saatavilla. Piha on päällystetty ja ympäriajettava.
Varusteluna on sähköiset nosto-ovet, hiekanerotuskaivot, öljynerotuskaivo pihassa, vesikiertoinen lattialämmitys, 2. kerroksen toimistotiloissa maakylmäjäähdytys. Kohteessa on maalämpö. Rakennukseen tulee valokuitu.
Telinetien hallit ovat parin minuutin päässä Tampere-Helsinki-moottoritieltä. Mainospaikka korkeasta pylonista saatavilla. Piha on päällystetty ja ympäriajettava.
Vapautuu
Kysy
Kerros
1.
Ota yhteyttä
Logistila Oy
Kauppakatu 14, 33210 TAMPERE
Jukka Nukari
Näytä puhelinnumero
0440759789
Pyydä lisätietoa
