Vuokrataan toimistotilat - Espoo
Keilaranta 1, Keilaniemi, 02150 Espoo #10859903
Toimistotilaa Keilaniemen paraatipaikalta Keilaranta 1 kiinteistöstä.
Osoite
Keilaranta 1, 02150 Espoo
Tilatyyppi
Toimistotilaa
188 - 368,5 m2
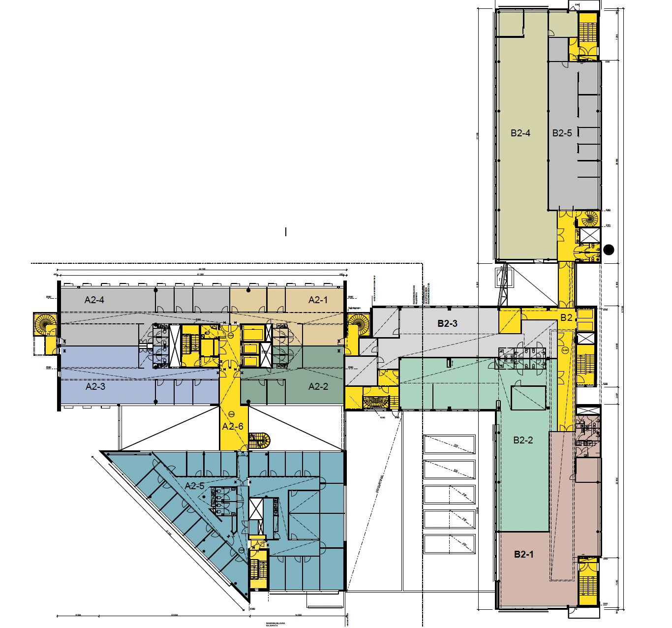
Pohjapiirros
Kiinteistö
Toisen kerroksen toimistotila 368,5 m2 joka on mahdollista jakaa myös kahdelle käyttäjälle. Toimistotilassa on nykyjaolla:
188,5 m2
- avotoimistoa
- keittiö
- 2 kpl wc
188 m2
- 2 kpl toimistohuonetta
- 1kpl neuvotteluhuone
- avotoimisto
- 2 kpl wc
- keittiö
Ensimmäisen kerroksen neuvottelukeskuksen tilat sisältyvät vuokraan, kuten myös aulapalvelu sekä kuntosalin käyttö.
188,5 m2
- avotoimistoa
- keittiö
- 2 kpl wc
188 m2
- 2 kpl toimistohuonetta
- 1kpl neuvotteluhuone
- avotoimisto
- 2 kpl wc
- keittiö
Ensimmäisen kerroksen neuvottelukeskuksen tilat sisältyvät vuokraan, kuten myös aulapalvelu sekä kuntosalin käyttö.
Sijainti
Tämä platinatason kiinteistö sijaitsee aivan yritysmaailman ytimessä, upealla paikalla meren rannalla, Keilaniemen metroaseman välittömässä läheisyydessä. Metrotunnelista on myös suoraan kuivin ajloin kiinteistöön sisälle parkkihallin kautta.
Erinomaiset julkiset kulkuyhteydet.
Erinomaiset julkiset kulkuyhteydet.
Pysäköinti
Kaikki pihapaikat varattu asiakaspysäköintiin. Kiinteistöllä on kolmikerroksinen lämmin parkkihalli jossa on yhteensä 440 parkkipaikkaa. Parkkihallissa on myös pyöräparkki.
Palvelut
Kiinteistössä on kattavat palvelut. Kahvila jossa pääsee myös ulos terassille sekä oma henkilöstöravintola. Paljon eri kokoisia neuvottelutiloja jotka ovat vuokralaisten vapaassa käytössä jopa 400 henkilön auditorioon saakka.
Kiinteistön 11 kerroksessa vuokrattavana upea edustussauna huikein näkymin ja ulko poreammeineen. Kuntosali jossa suihkutilat palvelevat myös työmatka pyöräilijöitä.
Kiinteistön 11 kerroksessa vuokrattavana upea edustussauna huikein näkymin ja ulko poreammeineen. Kuntosali jossa suihkutilat palvelevat myös työmatka pyöräilijöitä.
Kulkuyhteydet
Metro-asema suoraan kiinteistön edessä.
Bussipysäkki 100 m
Bussipysäkki 100 m
Vapautuu
Heti
Ympäristöluokitus
LEED®Platina-ympäristösertifikaatti.
Näkyvällä paikalla
Ota yhteyttä
Comreal Oy LKV
Joonas Nilsson
Näytä puhelinnumero
044 328 3425
Läkkisepänkuja 6, 00620 Helsinki
Comreal on valtakunnallinen, asiantunteva ja aktiivinen kiinteistöalan kumppani, joka palvelee sekä kiinteistönomistajia että toimitilojen käyttäjiä. Toimintamme ydin on yksinkertainen: tarjota erinomaista palvelua kaikille.
Pyydä lisätietoa
