Vuokrataan toimistotilat, liiketilat, varastotilat - Jyväskylä
Seppäläntie 5, Seppälä, 40320 Jyväskylä #10859897
Liike, toimisto ja varastotilaa Seppälästä
Osoite
Seppäläntie 5, 40320 Jyväskylä
Tilatyyppi
Toimistotilaa
177 m2
Liiketilaa
230 m2
Varastotilaa
729 m2
Yhteensä
1136 m2
Kiinteistö
Vuokrataan liike-, toimisto- ja varastotilaa Seppälästä loistavalta paikalta
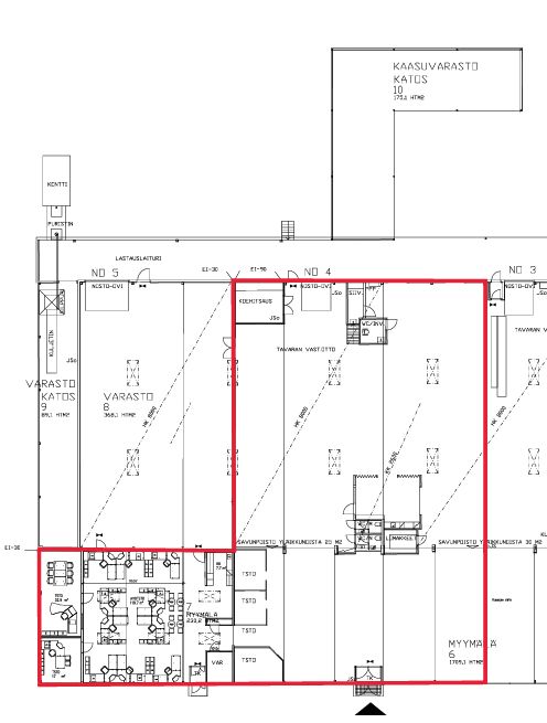
Katutasossa sijaitsevan tilakokonaisuuden kokonaisala on 1 136 m² ja se jakautuu tällä hetkellä:
Toimisto noin 177 m²
Myymälä noin 230 m²
Varasto noin 729 m²
Toimistossa yksi toimistohuone ja neuvotteluhuone sekä avotilaa. Toimistotiloihin on oma sisäänkäynti ja jäähdytys sekä valokuituyhteys.
Myymälä on sisäänkäynti tilan keskellä olevista liukuovista ja isot ikkunat antavat hyvä näkyvyyden vilkkaasti liikennöidylle Vasarakadulle.
Korkeaan varastotilaan on sisäänkäynti rakennuksen sisäpihan puolelta sähkötoimisen nosto-oven kautta . Takapihalla on mahdollisuus käyttää lastauslaituria tai lastata kuormia maantasalta.
Tiloja on mahdollista muokata asiakkaan tarpeen mukaan.
Piha-alue
Suurehkolla piha-alueella on ilmainen asiakaspysäköinti liiketilan edustalla.
Sijainti
Tila sijaitsee loistavalla liikepaikalla voimakkaasti kehittyvällä Seppälän alueella. Alueella on mm. runsaasti erikoisliikkeitä ja Keski-Suomen suurin kauppakeskus Seppä sekä muita palveluita esim. lounaspaikkoja.
Soita tai laita viestiä, niin käydään paikan päällä tutustumassa tiloihin.
Katutasossa sijaitsevan tilakokonaisuuden kokonaisala on 1 136 m² ja se jakautuu tällä hetkellä:
Toimisto noin 177 m²
Myymälä noin 230 m²
Varasto noin 729 m²
Toimistossa yksi toimistohuone ja neuvotteluhuone sekä avotilaa. Toimistotiloihin on oma sisäänkäynti ja jäähdytys sekä valokuituyhteys.
Myymälä on sisäänkäynti tilan keskellä olevista liukuovista ja isot ikkunat antavat hyvä näkyvyyden vilkkaasti liikennöidylle Vasarakadulle.
Korkeaan varastotilaan on sisäänkäynti rakennuksen sisäpihan puolelta sähkötoimisen nosto-oven kautta . Takapihalla on mahdollisuus käyttää lastauslaituria tai lastata kuormia maantasalta.
Tiloja on mahdollista muokata asiakkaan tarpeen mukaan.
Piha-alue
Suurehkolla piha-alueella on ilmainen asiakaspysäköinti liiketilan edustalla.
Sijainti
Tila sijaitsee loistavalla liikepaikalla voimakkaasti kehittyvällä Seppälän alueella. Alueella on mm. runsaasti erikoisliikkeitä ja Keski-Suomen suurin kauppakeskus Seppä sekä muita palveluita esim. lounaspaikkoja.
Soita tai laita viestiä, niin käydään paikan päällä tutustumassa tiloihin.
Vapautuu
Kysy
Kerros
1
Ota yhteyttä
Logistila Oy
Yliopistonkatu 8, 40100 JYVÄSKYLÄ
Kimmo Oravuo
Näytä puhelinnumero
0452644180
Pyydä lisätietoa
