Vuokrataan toimistotilat - Helsinki
Eteläinen Hesperiankatu 18, Etu-Töölö, 00100 Helsinki #10859885
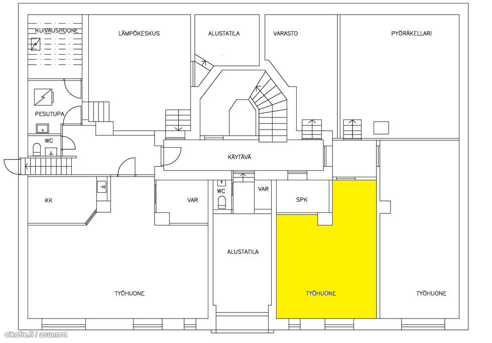
Kellaritiloissa sijaitseva 27,5m2 näppärä toimistotila vapautuu vuokrattavaksi 1.6.2026 alkaen.
Osoite
Eteläinen Hesperiankatu 18, 00100 Helsinki
Tilatyyppi
Toimistotilaa
27,5 m2
Vuokra
Kysy hintaa
Kiinteistö
ila on avointa tilaa ja tuntuu suuremmalta kuin mitä neliöt ovat. Vaikka kyseessä on kellaritila, tuovat kivijalan ikkunat mukavasti valoa tilaan. Tilassa myös minikeittiö vesipisteellä.
Talossa on ollut peruskorjaus 2018, joten remonttipaineita ei ole ja pääset suoraan muuttamaan.
Kellarissa on kolme toimitilaa, joiden yhteiskäytössä on kaksi wc:tä.
Kiinnostuitko? Ota yhteyttä ja sovitaan näytöstä.
Talossa on ollut peruskorjaus 2018, joten remonttipaineita ei ole ja pääset suoraan muuttamaan.
Kellarissa on kolme toimitilaa, joiden yhteiskäytössä on kaksi wc:tä.
Kiinnostuitko? Ota yhteyttä ja sovitaan näytöstä.
Vapautuu
01.06.2026