Vuokrataan toimistotilat - Tampere
Hatanpäänkatu 1, 33100 Tampere #10859855
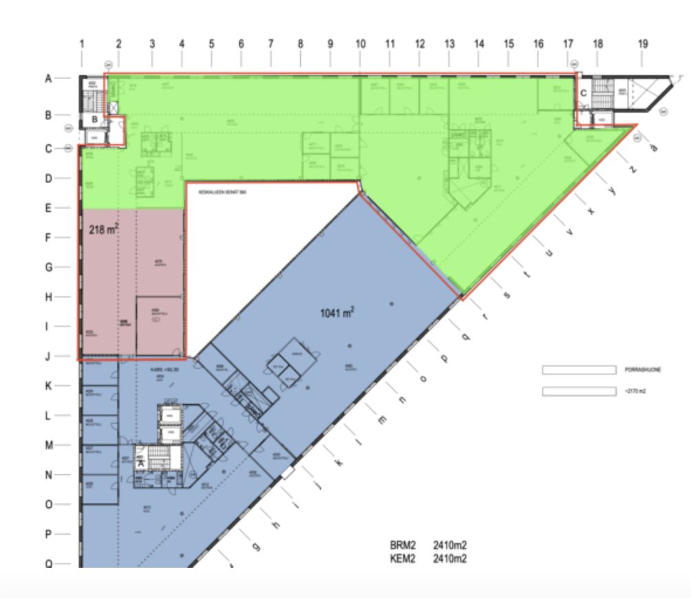
Vuokrattavana 1200m2 toimistotila kiinteistön 4. kerroksesta.
Kulma-Sarviksen toimistokeskus sijaitsee Tampereen ydinkeskustan kupeessa, kätevimpien kulkuyhteyksien varrella aivan rautatie- ja linja-autoasemien ja Hotelli Ilveksen läheisyydessä.
Talossa on hyvät palvelut mm. aulapalvelu ja catering ja runsaasti vuokralaisten käytössä olevia neuvottelu- ja edustustiloja. Lisäksi talon ensimmäisessä kerroksessa toimii lounasravintola, jossa on lähes 200 asiakaspaikkaa.
Kulma-Sarvis on rakennettu vuonna 1996 ja tilat on pidetty ajan tasalla.
Lisätietoja 020 7290 710. Lisää kohteita osoitteesta www.premises.fi
Kohteella ei ole lain edellyttämää energiatodistusta.Kerros: 4
CRE PREMISES
Puh. Näytä puhelinnumero 020 7290 710
Vantaankoskentie 14
01670 VANTAA
