Vuokrataan toimistotilat - Helsinki
Porkkalankatu 7, Ruoholahti, 00180 Helsinki #10859840
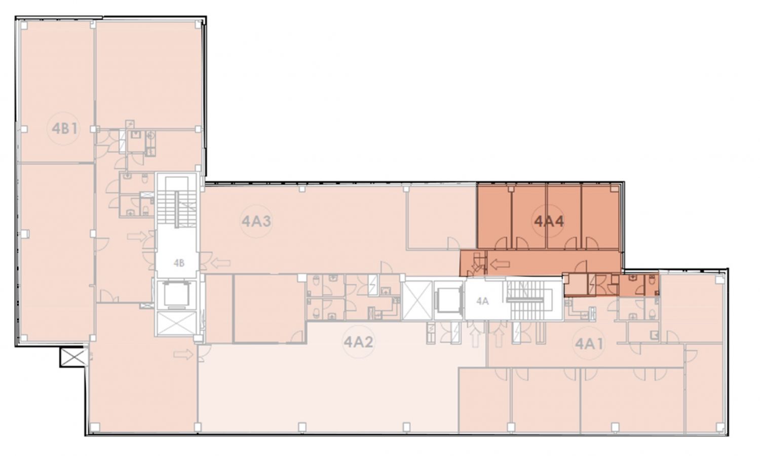
Siisti 72 m² toimisto Ruoholahdessa
Osoite
Porkkalankatu 7, 00180 Helsinki
Tilatyyppi
Toimistotilaa
72 m2
Pohjapiirros
Kiinteistö
Pieni toimistotila, jossa neljä työhuonetta.
Seitsemänkerroksisesta talosta avautuu upea näkymä Lauttasaaren sillan suuntaan ja Seurasaarenselälle. Kiinteistössä on toimistoille 4 300 m² tilaa ja liiketilaa 600 m². Yksi kerros on jaettavissa kolmeen noin 200-300 m²:n osaan.
Kiinteistö sijaitsee kätevästi keskustan palvelujen tuntumassa, mutta lounaalle tai muille asioille on helppo piipahtaa myös kadun toiselle puolelle Ruoholahden kauppakeskukseen.
Ilmoituksen kuvat ovat yleiskuvia kiinteistön eri tiloista.
Seitsemänkerroksisesta talosta avautuu upea näkymä Lauttasaaren sillan suuntaan ja Seurasaarenselälle. Kiinteistössä on toimistoille 4 300 m² tilaa ja liiketilaa 600 m². Yksi kerros on jaettavissa kolmeen noin 200-300 m²:n osaan.
Kiinteistö sijaitsee kätevästi keskustan palvelujen tuntumassa, mutta lounaalle tai muille asioille on helppo piipahtaa myös kadun toiselle puolelle Ruoholahden kauppakeskukseen.
Ilmoituksen kuvat ovat yleiskuvia kiinteistön eri tiloista.
Vapautuu
Heti
Rakennusvuosi
1987
Kerros
4 / 7
Energiatehokkuusluokka
F2007
Näkyvällä paikalla
Hissi
Ota yhteyttä
ScanReal Oy LKV
Opus Business Park
Hitsaajankatu 24
00810 Helsinki
info@scanreal.fi
Puh:
Näytä puhelinnumero
020 730 8830
Sopivat toimitilat yhdellä otolla!
Kartoitamme toimitilatarpeesi ja etsimme yrityksellesi parhaiten sopivat vapaat toimitilat. Koska vuokranantajat maksavat palvelumme, on tämä yrityksellesi veloituksetonta.
OTA YHTEYTTÄ - SOVI NÄYTTÖ!
Kaikki kohteemme eivät ole netissä, kerro tilatarpeesi niin kartoitamme vaihtoehdot.
Palvelumme on tilanhakijalle ilmainen
Pyydä lisätietoa
