Vuokrataan tuotantotilat, varastotilat, työtilat, autotalli/-hallitilat - Nurmijärvi
Ilveskuja 5-10, 01900 Nurmijärvi #10859794
Vuokrataan laadukas hallitila Nurmijärvellä!
Osoite
Ilveskuja 5-10, 01900 Nurmijärvi
Tilatyyppi
Tuotantotilaa
141 - 280 m2
Varastotilaa
141 - 280 m2
Työtilaa
141 - 280 m2
Autotalli/-hallitilaa
141 - 280 m2
Yhteensä
141 - 280 m2
Virtuaaliesittely
Vuokra
Alkaen 1'299 €/kk + alv
Muuta
Vuokrataan laadukas hallitila Nurmijärvellä!
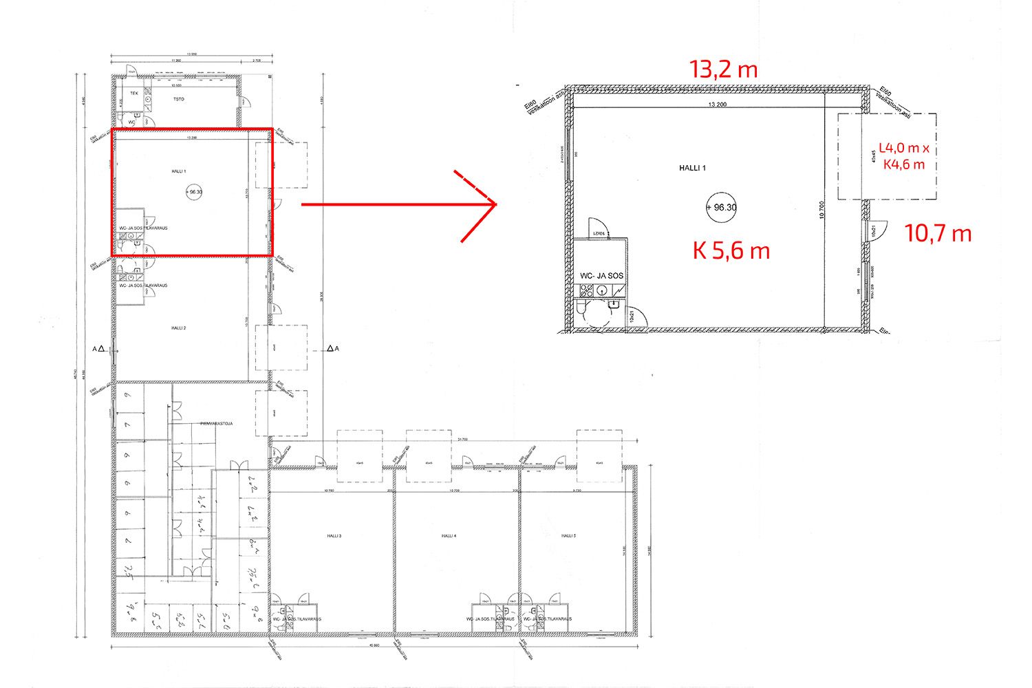
Nurmijärvellä on vuokrattavana laadukas varastohallitila. Rakennus sijaitsee Ilvesvuoren teollisuusalueella.
Halli on rakennuksessa tila A ja tilan pinta-ala on 141 m², syvyys on noin 13,2 metriä ja leveys 10,7 metriä. Tilan varusteluun kuuluu sähkökäyttöinen nosto-ovi (L4,0 m x K4,6 m) erillisellä käyntiovella, hiekan- ja öljyn erottava lattiakaivo sekä keittiö- ja taukotila sekä wc. Vapaa sisäkorkeus on noin 5,6 metriä.
Hallin viereinen tila myös vuokrattavana (saman kokoinen ja tila B) kysy tästä lisää.
Lämmitysmuotona on suora sähkölämmitys vuokralaisen kustannuksella. Vuokralainen vastaa myös omien jätteiden järjestelyistä ja kuluista.
Aidatussa, asfaltoidussa pihassa on hyvin paikoitustilaa. Alueelle on hyvät kulkuyhteydet, Kolmostie kulkee aivan lähellä.
Monenlaisille yrityksille sopivat tilat!
Kohdetiedot
Sijainti
Osoite: Ilveskuja 5-10, 01900 Nurmijärvi
Kaupunginosa: Ilvesvuori
Ympäristö: Teollisuusaluetta
Tontti
Pinta-ala: 2’907 m²
Omistusmuoto: Oma
Rakennus/huoneisto
Pinta-alat: Noin 141-280 m²
Kiinteistötyyppi: Teollisuushallirakennus
Rakennusvuosi: 2012
Energiatodistus: Laki ei edellytä todistusta
Huoneistoselitelmä: Hallitila
Kunto, varusteet ja palvelut: Hyvässä kunnossa. Nosto-ovi, hiekan ja öljyn erotteleva lattiakaivo, wc, minikeittiö/taukotila
Lämmitysmuoto: Sähkölämmitys
Pysäköinti: Pihassa
Vapautuminen: 1.6.2026
Vuokrahinta ja kulut
Kuukausivuokra: 1’299 € + alv (tila A)
Sähkömaksu: Mittauksen mukaan (vuokralainen tekee oman sähkösopimuksen)
Vesimaksu: Mittauksen mukaan
Lämmitys: Vuokralainen vastaa kuluista
Jätehuolto: Vuokralainen vastaa itse järjestelyistä ja kuluista
Auraus: Sisältyy vuokraan
Muut ehdot: Vakuus 3 kk:n vuokraa vastaava summa, minimivuokrasopimusaika 12kk luottotietojen on oltava kunnossa
Nurmijärvellä on vuokrattavana laadukas varastohallitila. Rakennus sijaitsee Ilvesvuoren teollisuusalueella.
Halli on rakennuksessa tila A ja tilan pinta-ala on 141 m², syvyys on noin 13,2 metriä ja leveys 10,7 metriä. Tilan varusteluun kuuluu sähkökäyttöinen nosto-ovi (L4,0 m x K4,6 m) erillisellä käyntiovella, hiekan- ja öljyn erottava lattiakaivo sekä keittiö- ja taukotila sekä wc. Vapaa sisäkorkeus on noin 5,6 metriä.
Hallin viereinen tila myös vuokrattavana (saman kokoinen ja tila B) kysy tästä lisää.
Lämmitysmuotona on suora sähkölämmitys vuokralaisen kustannuksella. Vuokralainen vastaa myös omien jätteiden järjestelyistä ja kuluista.
Aidatussa, asfaltoidussa pihassa on hyvin paikoitustilaa. Alueelle on hyvät kulkuyhteydet, Kolmostie kulkee aivan lähellä.
Monenlaisille yrityksille sopivat tilat!
Kohdetiedot
Sijainti
Osoite: Ilveskuja 5-10, 01900 Nurmijärvi
Kaupunginosa: Ilvesvuori
Ympäristö: Teollisuusaluetta
Tontti
Pinta-ala: 2’907 m²
Omistusmuoto: Oma
Rakennus/huoneisto
Pinta-alat: Noin 141-280 m²
Kiinteistötyyppi: Teollisuushallirakennus
Rakennusvuosi: 2012
Energiatodistus: Laki ei edellytä todistusta
Huoneistoselitelmä: Hallitila
Kunto, varusteet ja palvelut: Hyvässä kunnossa. Nosto-ovi, hiekan ja öljyn erotteleva lattiakaivo, wc, minikeittiö/taukotila
Lämmitysmuoto: Sähkölämmitys
Pysäköinti: Pihassa
Vapautuminen: 1.6.2026
Vuokrahinta ja kulut
Kuukausivuokra: 1’299 € + alv (tila A)
Sähkömaksu: Mittauksen mukaan (vuokralainen tekee oman sähkösopimuksen)
Vesimaksu: Mittauksen mukaan
Lämmitys: Vuokralainen vastaa kuluista
Jätehuolto: Vuokralainen vastaa itse järjestelyistä ja kuluista
Auraus: Sisältyy vuokraan
Muut ehdot: Vakuus 3 kk:n vuokraa vastaava summa, minimivuokrasopimusaika 12kk luottotietojen on oltava kunnossa
Vapautuu
01.06.2026
Rakennusvuosi
2012
Katutasossa
Näkyvällä paikalla
Ota yhteyttä
Tilat.fi
KTM, LKV Antti Soivio
Näytä puhelinnumero
0400 446 553
OTM, LKV Riikka Tuominen
Näytä puhelinnumero
0400 551 790
KTM, LKV Maria-Sofia Puhakka
Näytä puhelinnumero
0400-150330
MBA,LKV Susanne Wallenius
Näytä puhelinnumero
0400-128877
LKV Tilat.fi Oy on toimitilojen välitykseen erikoistunut yritys.
http://www.tilat.fiPyydä lisätietoa
