Vuokrataan liiketilat - Kouvola
Lehtikaari 3 KOUVOLA, 45130 Kouvola #10859789
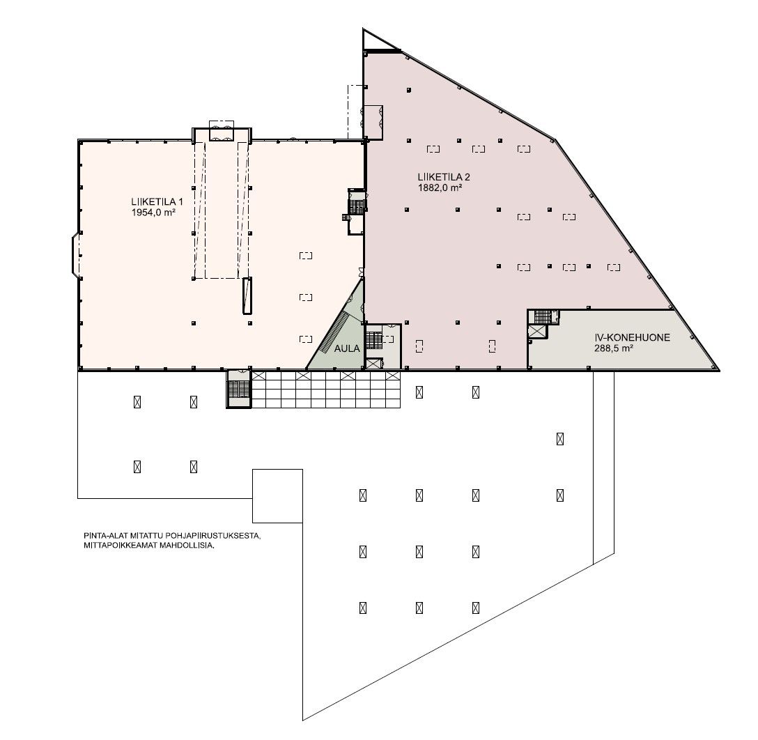
Tarjolla on erinomainen mahdollisuus vuokrata valoisa ja tilava liiketila suositulla sijainnilla Kouvolassa. Tämä 1. kerroksessa sijaitseva 1954 m2 tila sopii loistavasti monenlaiseen liiketoimintaan. Tilassa toiminut aiemmin huonekaluliike Sotka.
Liiketilojen vuokraus ja tiedustelut: C&W Retail Services, puh. 0108368400, retail.fi@cushwake.com.
Moderni liikerakennus tarjoaa edustavaa liiketilaa mm. rakentamiseen tai sisustamiseen liittyvään liiketoimintaan.
Kohde sijaitsee keskeisellä ja näkyvällä paikalla Kouvolan sisääntulotien varressa, vilkkaalla market-alueella. Kohde sijaitsee Prisman välittömässä läheisyydessä ja Kauppakeskus Veturiin on matkaa alle 800 metriä.
Kiinteistön pihalla runsaasti asiakaspysäköintipaikkoja.
