Vuokrataan tuotantotilat, varastotilat - Espoo
Koskelonkuja 1 A, Koskelo, 02920 Espoo #10859779
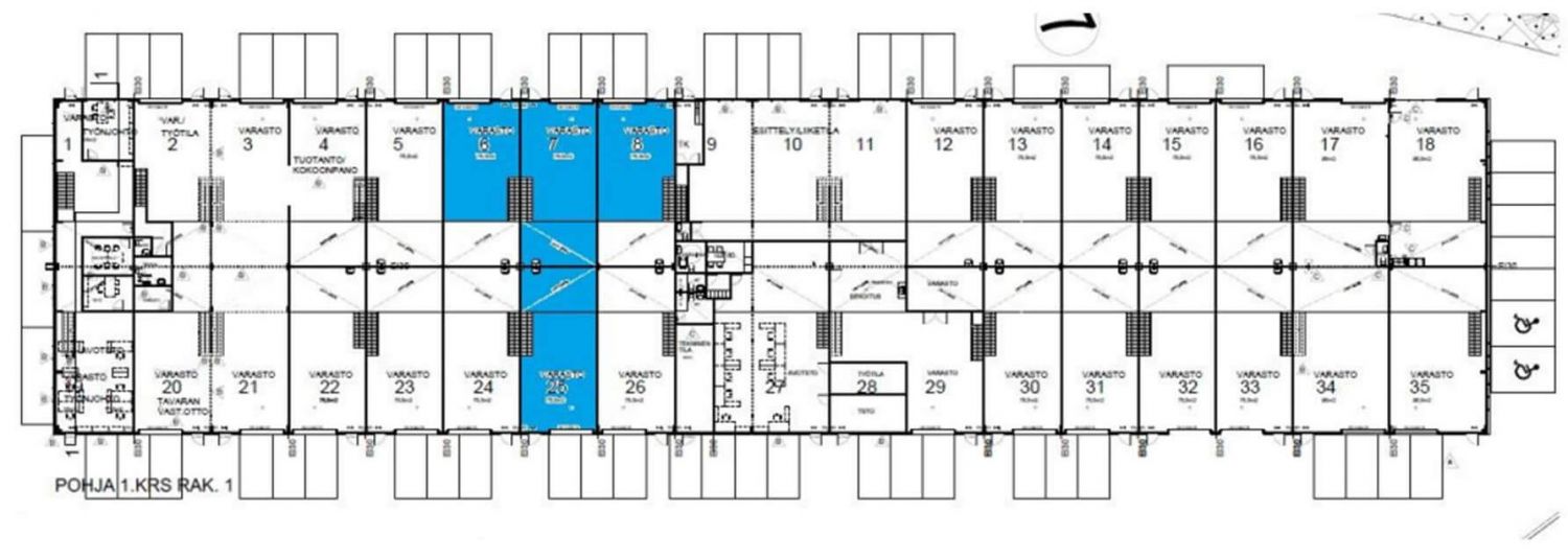
Vapautumassa loistava neljän yksikön kokonaisuus Koskelonkujalta (A6, A7, A8 ja A25), joka soveltuu hyvin varastointiin ja tuotantoon.
Toimitila on sisään ajettava. Tuotantotilan yhteydessä on kätevä toisen kerroksen toimistoparvi, jossa sijaitsevat myös oma keittiö sekä suihku- ja wc-tila. Tilassa on oma nosto-ovi, öljynerotuskaivo, voimavirtapiste sekä vesipiste.
Lisätietoja numerosta 020 7290 710. Lisää kohteita osoitteessa www.premises.fi
Kohteella ei ole lain edellyttämää energiatodistusta.Kerros: 1-2
Osoite
Koskelonkuja 1 A, 02920 Espoo
Tilatyyppi
Tuotantotilaa
390 m2
Varastotilaa
390 m2
Yhteensä
390 m2
Kulkuyhteydet
Koskelo Trade Parkiin on hyvät yhteydet pääväyliltä, sillä se sijaitsee Kehä III:n välittömässä läheisyydessä. Omalla autolla kulkeville tontilla on riittävät pysäköintitilat.
Ota yhteyttä
CRE PREMISES
Puh. Näytä puhelinnumero 020 7290 710
Vantaankoskentie 14
01670 VANTAA
Pyydä lisätietoa
