Vuokrataan toimistotilat - Helsinki
Ruosilantie 14, Konala, 00390 Helsinki #10859734
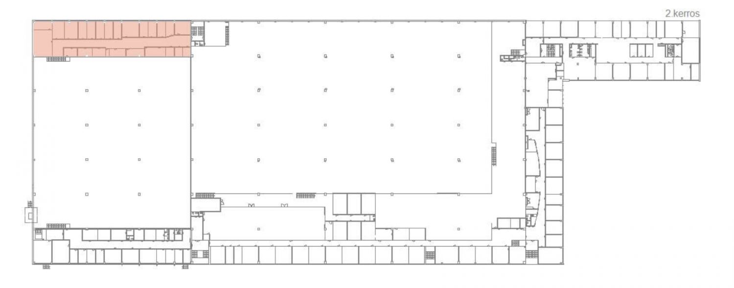
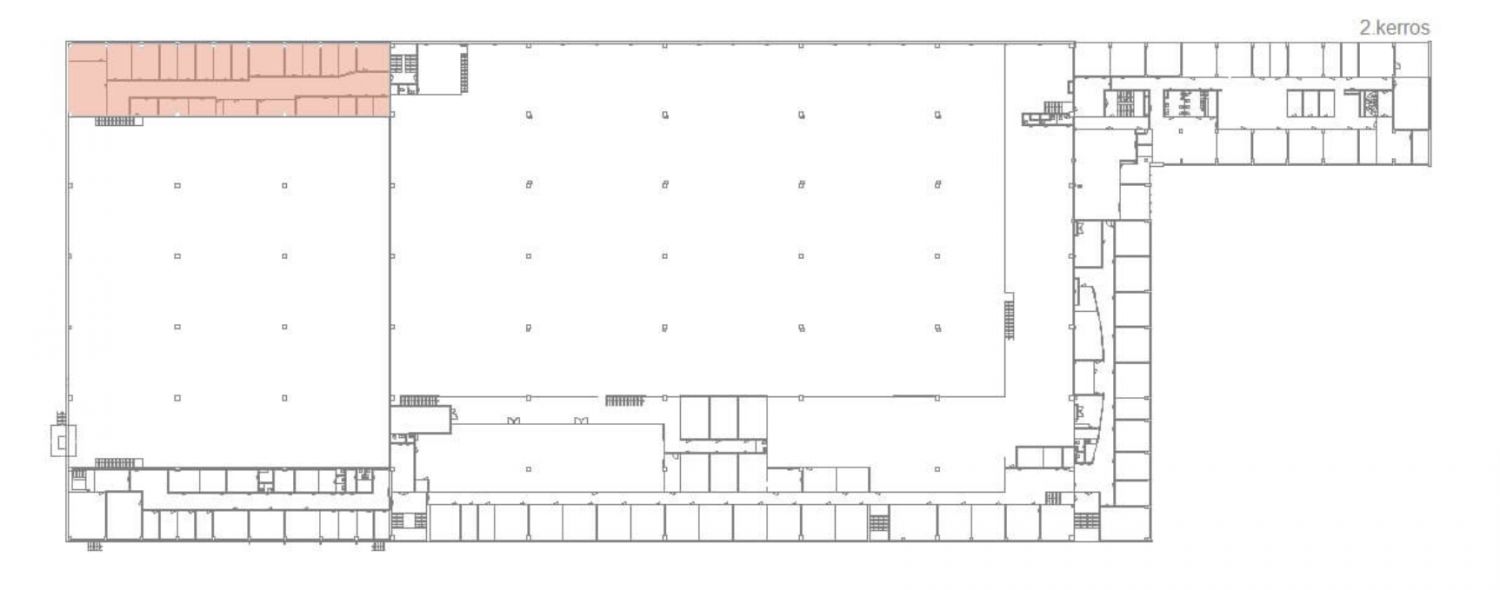
Ruosilantie 14 - Toimisto 430 m²
Osoite
Ruosilantie 14, 00390 Helsinki
Tilatyyppi
Toimistotilaa
430 m2
Pohjapiirros
Kiinteistö
Vuokrattavana on 430 m² rauhallista ja viihtyisää toimistotilaa kiinteistön toisesta kerroksesta, josta avautuvat näkymät Ruosilantien maisemiin. Tila on tällä hetkellä jaettu erillisiin huoneisiin, mutta sen pohjaratkaisu on helposti muokattavissa. Tarvittaessa kokonaisuus voidaan avata moderniksi avotoimistoksi, joka tukee yrityksen nykyisiä ja tulevia työskentelytapoja.
Ruosilantie 14
Tämä vuonna 1971 rakennettu ja vuosina 2000–2001 peruskorjattu kiinteistö tarjoaa modernit puitteet sujuvaan arkeen.
Sijainti
Ruosilantie 14 sijaitsee Konalan parhaalla paikalla, alueen sydämessä ja pääväylien tuntumassa. Sijainti tarjoaa loistavat kulkuyhteydet niin omalla autolla kuin joukkoliikenteellä.
Palvelut
Kiinteistö tarjoaa joustavia ja muunneltavia varasto- ja toimistotiloja, jotka on mahdollista mukauttaa monenlaisiin käyttötarkoituksiin. Oma lounasravintola helpottaa työpäivän rytmiä, ja lisäksi kiinteistöstä löytyvät saunaosasto sekä käytännölliset sosiaalitilat. Kokonaisuus tarjoaa yrityksille toimivat tilat ja mukavan arkiympäristön saman katon alla.
Aidatulla pihalla on runsaasti pysäköintitilaa henkilökunnalle ja asiakkaille, lisäksi alueella on käytössä sähköautojen latauspisteet.
Vastuullisuus
Ruosilantie 14 on uudistunut vastuullisesti. Kiinteistölle on asennettu aurinkopaneelit, joiden ansiosta uusiutuvaa energiaa voidaan hyödyntää tehokkaasti. Kiinteistön lämmityksestä vastaa maalämpö.
Kiinteistö on saanut BREEAM Very Good -tason ympäristösertifikaatin.
Ota yhteyttä
Kiinnostuitko? Ota yhteyttä ja tule tutustumaan!
Toimitilavälityspalvelumme on tilanhakijalle maksuton.
Ruosilantie 14
Tämä vuonna 1971 rakennettu ja vuosina 2000–2001 peruskorjattu kiinteistö tarjoaa modernit puitteet sujuvaan arkeen.
Sijainti
Ruosilantie 14 sijaitsee Konalan parhaalla paikalla, alueen sydämessä ja pääväylien tuntumassa. Sijainti tarjoaa loistavat kulkuyhteydet niin omalla autolla kuin joukkoliikenteellä.
Palvelut
Kiinteistö tarjoaa joustavia ja muunneltavia varasto- ja toimistotiloja, jotka on mahdollista mukauttaa monenlaisiin käyttötarkoituksiin. Oma lounasravintola helpottaa työpäivän rytmiä, ja lisäksi kiinteistöstä löytyvät saunaosasto sekä käytännölliset sosiaalitilat. Kokonaisuus tarjoaa yrityksille toimivat tilat ja mukavan arkiympäristön saman katon alla.
Aidatulla pihalla on runsaasti pysäköintitilaa henkilökunnalle ja asiakkaille, lisäksi alueella on käytössä sähköautojen latauspisteet.
Vastuullisuus
Ruosilantie 14 on uudistunut vastuullisesti. Kiinteistölle on asennettu aurinkopaneelit, joiden ansiosta uusiutuvaa energiaa voidaan hyödyntää tehokkaasti. Kiinteistön lämmityksestä vastaa maalämpö.
Kiinteistö on saanut BREEAM Very Good -tason ympäristösertifikaatin.
Ota yhteyttä
Kiinnostuitko? Ota yhteyttä ja tule tutustumaan!
Toimitilavälityspalvelumme on tilanhakijalle maksuton.
Vapautuu
Kysy
Kerros
2
Ota yhteyttä
Logistila Oy
Kylätie 11-13, 00320 HELSINKI
Karoliina Turppo
Näytä puhelinnumero
050 345 3258
Pyydä lisätietoa
