Vuokrataan toimistotilat - Tampere
Hatanpään Valtatie 18, 33100 Tampere #10859717
Osoite
Hatanpään Valtatie 18, 33100 Tampere
Tilatyyppi
Toimistotilaa
495 m2
Muuta
Hatanpään valtatie 18 kiinteistö sijaitsee erinomaisella paikalla ydinkeskustassa. Linja-autoasema vastapäätä, samoin Ratinan kauppakeskus ja Koskikeskus ihan vieressä. Hämeenkadun risteykseen matkaa n. 600m ja rautatieasemalle
n. 700m. Hyvä saavutettavuus niin kävellen kuin julkisilla. Autoilijoille on mahdollisuus varata pysäköintioikeuspaikkoja kiinteistön parkkihallista. Sisäänkäynnit sekä Hatanpään valtatien että Sorinkadun puolelta.
Kiinteistöä on remontoitu tyylikkäästi ja sen aulatilat ja yhteiset tilat ovat viihtyisät. Vuokralaisten käytössä on ilman eri korvausta kaksi neuvotteluhuonetta katutasossa. Kellarikerroksesta on lisäksi mahdollisuus vuokrata varastotilaa. Rakennuksessa on hissi.
Kaikissa tiloissa on jäähdytys.
Suurin osa tiloista remontoidaan vuokralaisen toiveiden mukaisesti joustavasti. Useiden tilojen kokoa on myös mahdollisuus säätää suuremmaksi tai pienemmäksi.
Tila:
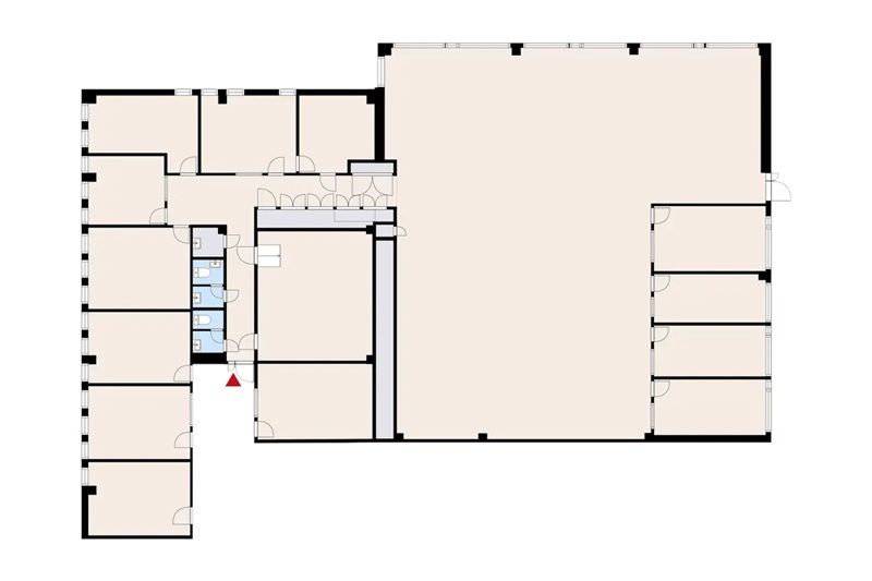
Ylimmän eli 4. kerroksen toimistotila 495m². Valoisaa ja avaraa toimitilaa joka koostuu isosta avotilasta, jossa 4 kpl työhuoneita. Tilassa lisäksi toinen osa joka koostuu useammasta erikokoisesta työ- ja neuvotteluhuoneesta. Remontoidaan täysin vuokralaisen tarpeiden mukaan.
Ole yhteydessä niin mennään paikan päälle tutustumaan vaihtoehtoihin!
Annina Niemi
Myyntipäällikkö, LKV
annina.niemi@catella.com
040 4812 220
Tilanhakijalle palvelumme ovat maksuttomia.
Catella Property Oy on valtakunnallinen toimitilojen vuokraukseen ja myyntiin keskittynyt kiinteistönvälitysyritys.
Kysy paikallisilta ammattitaitoisilta välittäjiltämme myös muita välityksessämme olevia toimitilakohteita.
Välittäjiemme yhteystiedot ja lisää välitettäviä tilakohteita verkkosivuillamme: www.toimitilat.catella.fi.
Ota yhteyttä!
n. 700m. Hyvä saavutettavuus niin kävellen kuin julkisilla. Autoilijoille on mahdollisuus varata pysäköintioikeuspaikkoja kiinteistön parkkihallista. Sisäänkäynnit sekä Hatanpään valtatien että Sorinkadun puolelta.
Kiinteistöä on remontoitu tyylikkäästi ja sen aulatilat ja yhteiset tilat ovat viihtyisät. Vuokralaisten käytössä on ilman eri korvausta kaksi neuvotteluhuonetta katutasossa. Kellarikerroksesta on lisäksi mahdollisuus vuokrata varastotilaa. Rakennuksessa on hissi.
Kaikissa tiloissa on jäähdytys.
Suurin osa tiloista remontoidaan vuokralaisen toiveiden mukaisesti joustavasti. Useiden tilojen kokoa on myös mahdollisuus säätää suuremmaksi tai pienemmäksi.
Tila:
Ylimmän eli 4. kerroksen toimistotila 495m². Valoisaa ja avaraa toimitilaa joka koostuu isosta avotilasta, jossa 4 kpl työhuoneita. Tilassa lisäksi toinen osa joka koostuu useammasta erikokoisesta työ- ja neuvotteluhuoneesta. Remontoidaan täysin vuokralaisen tarpeiden mukaan.
Ole yhteydessä niin mennään paikan päälle tutustumaan vaihtoehtoihin!
Annina Niemi
Myyntipäällikkö, LKV
annina.niemi@catella.com
040 4812 220
Tilanhakijalle palvelumme ovat maksuttomia.
Catella Property Oy on valtakunnallinen toimitilojen vuokraukseen ja myyntiin keskittynyt kiinteistönvälitysyritys.
Kysy paikallisilta ammattitaitoisilta välittäjiltämme myös muita välityksessämme olevia toimitilakohteita.
Välittäjiemme yhteystiedot ja lisää välitettäviä tilakohteita verkkosivuillamme: www.toimitilat.catella.fi.
Ota yhteyttä!
Vapautuu
vapaa
Kerros
4.
Ota yhteyttä
Catella Property Oy
Hämeenkatu 13b A, 33100 Tampere
Näytä puhelinnumero
010 5220 100
Annina Niemi
Näytä puhelinnumero
040 4812 220
Pyydä lisätietoa
