Vuokrataan toimistotilat - Helsinki
Haapaniemenkatu 9, Merihaka, 00530 Helsinki #10859715
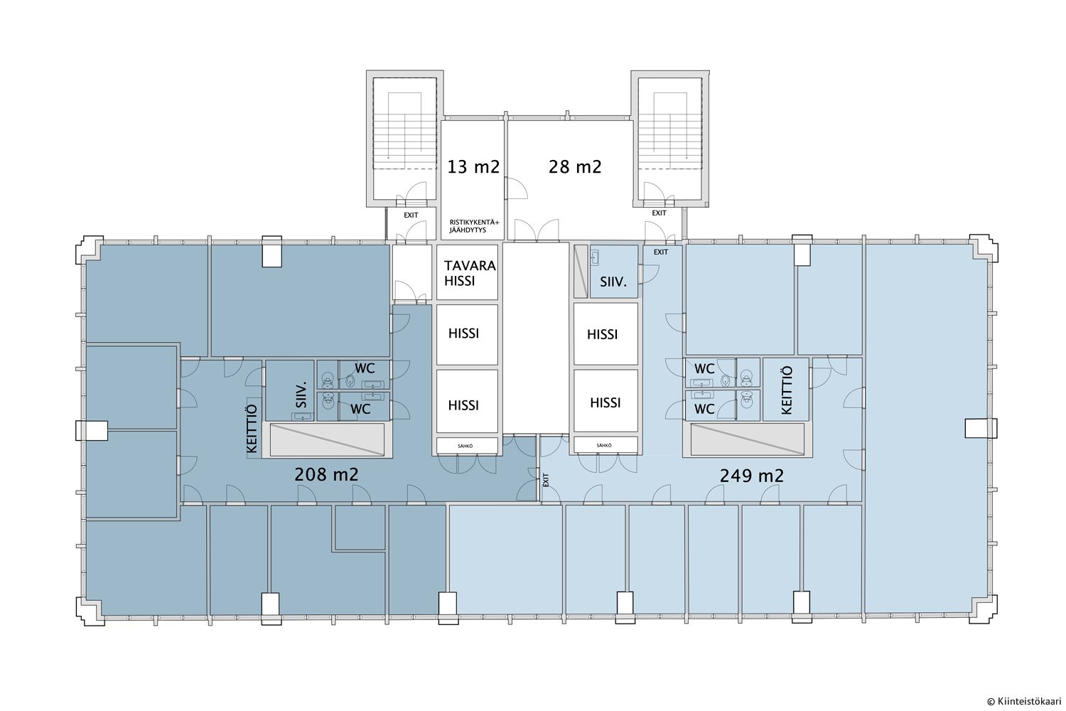
Useita työhuoneista sisältävä toimistotila, johon saa työpisteet noin 10-15 henkilölle. Tästä toimitilasta on upeat näköalat pohjoisen suuntaan yli Helsingin kattojen. Edullinen vuokra!
Ota yhteyttä ja kysy lisätietoja!
Osoite
Haapaniemenkatu 9, 00530 Helsinki
Tilatyyppi
Toimistotilaa
208 m2
Kiinteistö
Helsingin Meritorni
Pysäköinti
Pihakannen alla olevalta tilavalta pysäköintialueelta on vuokrattavissa parkkipaikkoja. Myös vieraspysäköintipaikat katetulla alueella.
Palvelut
Auditorio, henkilöstöravintola, vuokrattavia neuvottelutiloja, saunaosasto
Muuta
Tilan ominaisuudet:
Vapautuu
Heti vapaa
Kerros
17.
Ota yhteyttä
Kiinteistökaari Oy
Haapaniemenkatu 9, 00530 Helsinki
Näytä puhelinnumero
050 5050 535
Tony Tuominen
Näytä puhelinnumero
050 505 0535
Jarkko Kilpinen
Näytä puhelinnumero
0400 490 679
Kiinteistökaari Oy on kiinteistösijoitusyhtiö, joka ostaa, kehittää, myy, vuokraa ja hallinnoi laadukkaita kiinteistökohteita pääkaupunkiseudulla.
https://kiinteistokaari.fiPyydä lisätietoa
