Vuokrataan liiketilat - Ylivieska
Haapavesitie 813, 84100 Ylivieska #10859653
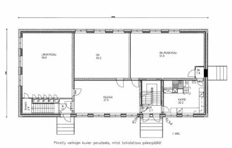
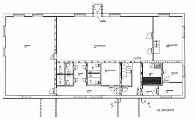
Ylivieskassa on vapautumassa vuokralle monipuolinen kiinteistökokonaisuus, joka tarjoaa erinomaiset puitteet monenlaiseen liiketoimintaan. Kokonaisuus muodostuu kolmesta erillisestä rakennuksesta, joiden sydämenä toimii näyttävä kolmikerroksinen kivitalo. Alun perin kouluna palvellut rakennus on myöhemmin saneerattu vastaamaan palvelutalotoiminnan vaatimuksia, mikä tekee siitä ihanteellisen kohteen esimerkiksi hoiva-, kasvatus- tai majoitusalan toimijoille.
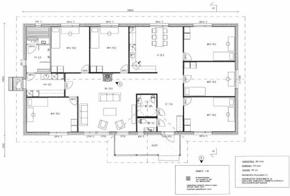
Päärakennuksen lisäksi tontilla sijaitsevat erillinen omakotitalo sekä käytännöllinen autotallirakennus, jotka tuovat joustavuutta tilojen käyttöön esimerkiksi työsuhdeasuntona tai lisävarastona. Kohde vuokrataan ensisijaisesti yhtenäisenä kokonaisuutena, mutta on mahdollista neuvotella myös muista vuokrausvaihtoehdoista ja räätälöimään ratkaisu vuokralaisen tarpeiden mukaan.
Lisätietoja 020 7290 710. Lisää kohteita www.premises.fi
Energialuokka B.Kerros: 1
CRE PREMISES
Puh. Näytä puhelinnumero 020 7290 710
Vantaankoskentie 14
01670 VANTAA
