Vuokrataan liiketilat, varastotilat - Helsinki
Hyttitie 8, Tattariharju, 00700 Helsinki #10859608
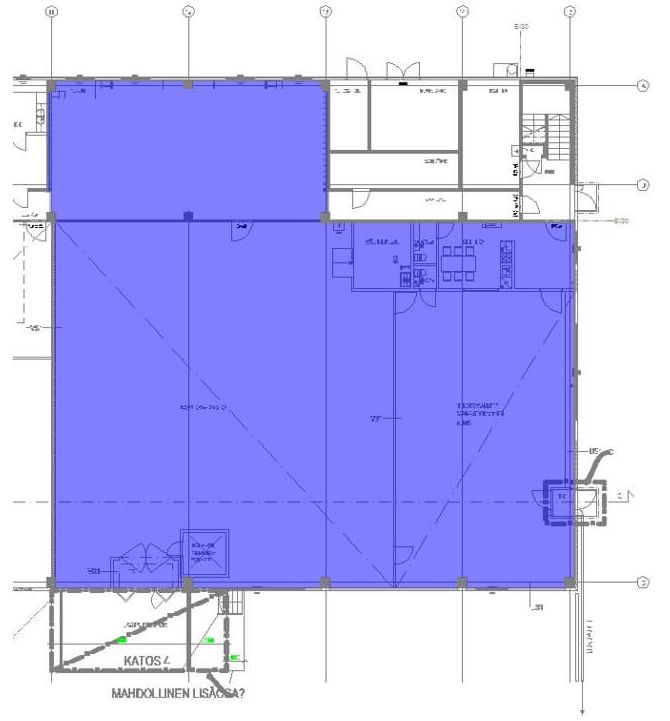
Hyttitie 8 - Myymälä/varasto 632 m²
Osoite
Hyttitie 8, 00700 Helsinki
Tilatyyppi
Liiketilaa
632 m2
Varastotilaa
632 m2
Yhteensä
632 m2
Pohjapiirros
Kiinteistö
Kesällä 2026 vapautuu monipuolinen katutason myymälä- tai varastotila 632 m², joka tarjoaa yrityksellesi toimivat ja helposti saavutettavat puitteet. Tila on tällä hetkellä siivousvälineliikkeen noutovarastona, mutta se soveltuu erinomaisesti myös myymäläkäyttöön tai muuhun asiakaspalvelupainotteiseen toimintaan.
Tilan ominaisuudet
Katutason tila – näkyvyyttä ja helppo saavutettavuus
Soveltuu myymäläksi, varastoksi tai noutopisteeksi
Nykyisellään toimiva ja siisti kokonaisuus
Oma keittiö
Pienet sosiaalitilat
Kaksi erillistä toimistohuonetta
Hallin puolella wc / siivouskomero
Lastauslaituri varaston puolella – sujuvat toimitukset ja logistiikka
Hyttitie 8 – erinomainen sijainti Tattariharjun yritysalueella
Hyttitie 8 sijaitsee Tattariharjun vilkkaalla ja tunnetulla yritysalueella, jossa logistinen saavutettavuus on yksi alueen suurista vahvuuksista. Kiinteistöltä on nopeat ja sujuvat yhteydet kaikille tärkeimmille pääväylille: Kehä I:lle, Kehä III:lle sekä Lahdenväylälle.
Palvelut lähellä
Lähialue tarjoaa runsaasti arkea helpottavia palveluja:
Useita lounasravintoloita ja muita päivittäisiä palveluja aivan lähietäisyydellä
Malmin kattavat palvelut vain noin 5 minuutin ajomatkan päässä
Itäkeskuksen monipuoliset palvelut saavutettavissa noin 10 minuutissa
Ota yhteyttä
Kiinnostuitko? Ota yhteyttä ja tule tutustumaan!
Toimitilavälityspalvelumme on tilanhakijalle maksuton.
Tilan ominaisuudet
Katutason tila – näkyvyyttä ja helppo saavutettavuus
Soveltuu myymäläksi, varastoksi tai noutopisteeksi
Nykyisellään toimiva ja siisti kokonaisuus
Oma keittiö
Pienet sosiaalitilat
Kaksi erillistä toimistohuonetta
Hallin puolella wc / siivouskomero
Lastauslaituri varaston puolella – sujuvat toimitukset ja logistiikka
Hyttitie 8 – erinomainen sijainti Tattariharjun yritysalueella
Hyttitie 8 sijaitsee Tattariharjun vilkkaalla ja tunnetulla yritysalueella, jossa logistinen saavutettavuus on yksi alueen suurista vahvuuksista. Kiinteistöltä on nopeat ja sujuvat yhteydet kaikille tärkeimmille pääväylille: Kehä I:lle, Kehä III:lle sekä Lahdenväylälle.
Palvelut lähellä
Lähialue tarjoaa runsaasti arkea helpottavia palveluja:
Useita lounasravintoloita ja muita päivittäisiä palveluja aivan lähietäisyydellä
Malmin kattavat palvelut vain noin 5 minuutin ajomatkan päässä
Itäkeskuksen monipuoliset palvelut saavutettavissa noin 10 minuutissa
Ota yhteyttä
Kiinnostuitko? Ota yhteyttä ja tule tutustumaan!
Toimitilavälityspalvelumme on tilanhakijalle maksuton.
Vapautuu
Kysy
Kerros
1
Ota yhteyttä
Logistila Oy
Kylätie 11-13, 00320 HELSINKI
Karoliina Turppo
Näytä puhelinnumero
050 345 3258
Pyydä lisätietoa
