Vuokrataan toimistotilat - Espoo
Mänkimiehentie 4, Kauklahti, 02780 Espoo #10859590
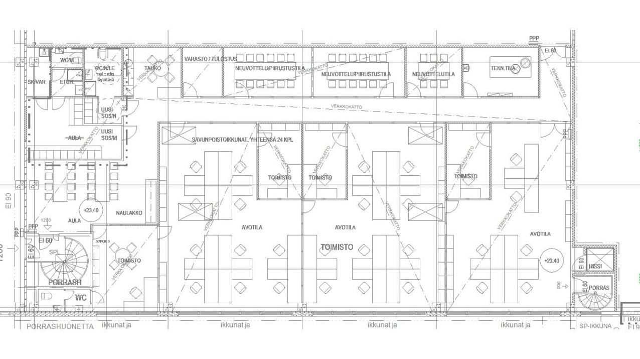
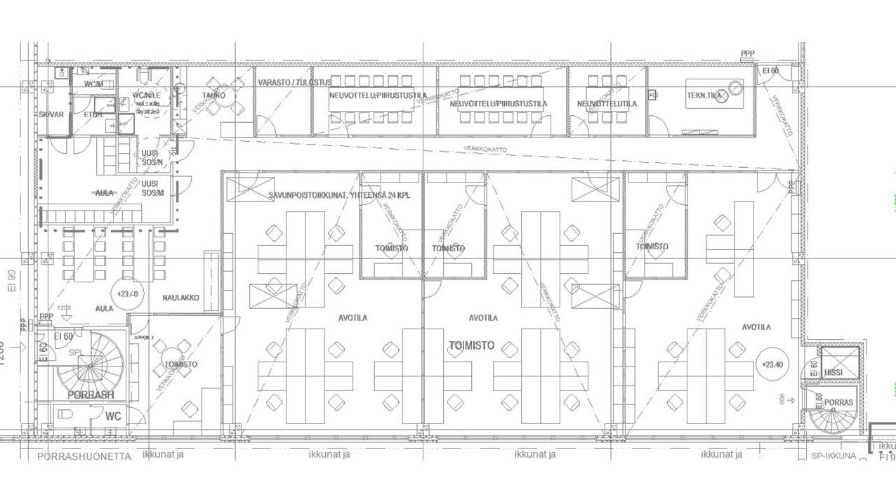
Mänkimiehentie 4 - Toimisto 432 m²
Osoite
Mänkimiehentie 4, 02780 Espoo
Tilatyyppi
Toimistotilaa
432 m2
Pohjapiirros
Kiinteistö
Kauklahdessa sijaitsevan logistiikka- ja varastokeskittymän toisessa kerroksessa sijaitsee siistissä kunnossa oleva, nykyaikainen toimistokokonaisuus. Tila tarjoaa yrityksellesi modernit ja muunneltavat puitteet laadukkaaseen toimistotyöskentelyyn.
Tilan ominaisuudet
Siistit ja nykyaikaiset toimistotilat, valmiina käyttöösi
Joustava pohjaratkaisu: tila voidaan jakaa esimerkiksi kolmelle noin 100 m² käyttäjälle, jolloin keittiö ja sosiaalitilat olisivat yhteiskäytössä
Kaksi sisäänkäyntiporrasta ulkoa sekä hissi tuovat käytännöllisyyttä ja helppoa kulkua
Lastauslaituri käytettävissä tarvittaessa tavaratoimituksille
Laadukkaat sosiaalitilat: erillinen pesu- ja pukuhuone, jossa tilaa jopa noin 50 henkilölle
Tämä toimisto sopii loistavasti yritykselle, joka arvostaa modernia työympäristöä, helppoa saavutettavuutta ja joustavia tilaratkaisuja kasvun tueksi.
Mänkimiehentie 4 – Toimivat toimitilat Espoon Kauklahdessa
Mänkimiehentie 4 sijaitsee arvostetulla Kauklahden teollisuusalueella, jossa yritykset hyötyvät sekä toimivista tiloista että sujuvista yhteyksistä. Vuokrattavana oleva varasto-osa on rakennettu vuonna 1997, ja toimistotilat vuodelta 1990 on hiljattain peruskorjattu nykyaikaisiksi ja viihtyisiksi – valmiina vastaamaan nykyajan tarpeisiin.
Samassa kiinteistössä toimii konevuokraamo sekä talotekniikka-alan yritys, mikä tekee ympäristöstä aktiivisen ja yritysystävällisen.
Erinomainen sijainti ja kulkuyhteydet
Nopeat yhteydet Kehä III:n kautta kaikille pääväylille
Erityisen hyvät yhteydet Turuntielle ja Länsiväylälle
Lentoasemalle matkaa alle puoli tuntia
Kauklahden juna-asema kävelyetäisyydellä – noin 900 m
Lähin bussipysäkki vain noin 500 metrin päässä
Kokonaisuudessaan Mänkimiehentie 4 tarjoaa yritykselle modernit tilat, toimivan ympäristön ja erinomaiset logistiset yhteydet.
Ota yhteyttä
Kiinnostuitko? Ota yhteyttä ja tule tutustumaan!
Toimitilavälityspalvelumme on tilanhakijalle maksuton.
Tilan ominaisuudet
Siistit ja nykyaikaiset toimistotilat, valmiina käyttöösi
Joustava pohjaratkaisu: tila voidaan jakaa esimerkiksi kolmelle noin 100 m² käyttäjälle, jolloin keittiö ja sosiaalitilat olisivat yhteiskäytössä
Kaksi sisäänkäyntiporrasta ulkoa sekä hissi tuovat käytännöllisyyttä ja helppoa kulkua
Lastauslaituri käytettävissä tarvittaessa tavaratoimituksille
Laadukkaat sosiaalitilat: erillinen pesu- ja pukuhuone, jossa tilaa jopa noin 50 henkilölle
Tämä toimisto sopii loistavasti yritykselle, joka arvostaa modernia työympäristöä, helppoa saavutettavuutta ja joustavia tilaratkaisuja kasvun tueksi.
Mänkimiehentie 4 – Toimivat toimitilat Espoon Kauklahdessa
Mänkimiehentie 4 sijaitsee arvostetulla Kauklahden teollisuusalueella, jossa yritykset hyötyvät sekä toimivista tiloista että sujuvista yhteyksistä. Vuokrattavana oleva varasto-osa on rakennettu vuonna 1997, ja toimistotilat vuodelta 1990 on hiljattain peruskorjattu nykyaikaisiksi ja viihtyisiksi – valmiina vastaamaan nykyajan tarpeisiin.
Samassa kiinteistössä toimii konevuokraamo sekä talotekniikka-alan yritys, mikä tekee ympäristöstä aktiivisen ja yritysystävällisen.
Erinomainen sijainti ja kulkuyhteydet
Nopeat yhteydet Kehä III:n kautta kaikille pääväylille
Erityisen hyvät yhteydet Turuntielle ja Länsiväylälle
Lentoasemalle matkaa alle puoli tuntia
Kauklahden juna-asema kävelyetäisyydellä – noin 900 m
Lähin bussipysäkki vain noin 500 metrin päässä
Kokonaisuudessaan Mänkimiehentie 4 tarjoaa yritykselle modernit tilat, toimivan ympäristön ja erinomaiset logistiset yhteydet.
Ota yhteyttä
Kiinnostuitko? Ota yhteyttä ja tule tutustumaan!
Toimitilavälityspalvelumme on tilanhakijalle maksuton.
Vapautuu
Kysy
Kerros
2
Ota yhteyttä
Logistila Oy
Kylätie 11-13, 00320 HELSINKI
Karoliina Turppo
Näytä puhelinnumero
050 345 3258
Pyydä lisätietoa
