Vuokrataan toimistotilat, liiketilat - Helsinki
Mannerheimintie 105, Ruskeasuo, 00280 Helsinki #10859585
Näppärä 102 m2liike-/toimistotila loistavalla sijainnilla hyvien kulkuyhteyksien varrella Ruskeasuolla.
Osoite
Mannerheimintie 105, 00280 Helsinki
Tilatyyppi
Toimistotilaa
102 m2
Liiketilaa
102 m2
Yhteensä
102 m2
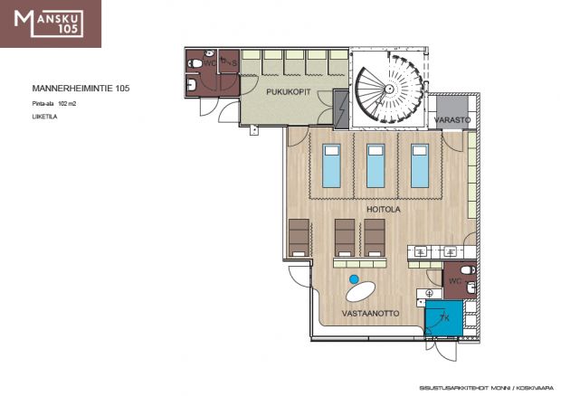
Pohjapiirros
Kiinteistö
Vapaana kiinteistön katutasossa kompakti 102 m² liike-/toimistotila, joka taipuu monenlaiseen liiketoimintaan - tila soveltuu mainiosti esimerkiksi hyvinvointi- tai kauneudenhoitopalvelujen tarjoajalle, mutta miksei vaikka tatuointistudioksi! Palvelee hyvin myös toimistona. Tilaan on oma sisäänkäynti Mannerheimintieltä.
Helsingin Mannerheimintie 105 on moderni toimistokiinteistö näkyvällä ja helposti saavutettavalla paikalla Mannerheimintien loppupäässä Ruskeasuolla. Työmatkaliikenne tähän kohteeseen on varsin vaivatonta pääkaupunkiseudun asuinalueilta, sillä lukuisat bussit kulkevat talon edestä Mannerheimintieltä. Myös raitiovaunulinja 10:n pysäkki on talon kulmalla. Autolla Mansku 105:een on kätevää tulla, sillä se sijaitsee pääväylien risteyskohdassa. Autonkin saa helposti parkkiin talon alla sijaitsevaan pysäköintihalliin.
Kiinteistössä on hyvät palvelut käyttäjille, mm. aulapalvelu, lounasravintola, vuokrattavia neuvottelutiloja sekä hyvin varusteltu kuntosali ja sosiaalitilat. Lähistöllä päivittäistavarakauppa sekä muita lounasravintoloita.
Helsingin Mannerheimintie 105 on moderni toimistokiinteistö näkyvällä ja helposti saavutettavalla paikalla Mannerheimintien loppupäässä Ruskeasuolla. Työmatkaliikenne tähän kohteeseen on varsin vaivatonta pääkaupunkiseudun asuinalueilta, sillä lukuisat bussit kulkevat talon edestä Mannerheimintieltä. Myös raitiovaunulinja 10:n pysäkki on talon kulmalla. Autolla Mansku 105:een on kätevää tulla, sillä se sijaitsee pääväylien risteyskohdassa. Autonkin saa helposti parkkiin talon alla sijaitsevaan pysäköintihalliin.
Kiinteistössä on hyvät palvelut käyttäjille, mm. aulapalvelu, lounasravintola, vuokrattavia neuvottelutiloja sekä hyvin varusteltu kuntosali ja sosiaalitilat. Lähistöllä päivittäistavarakauppa sekä muita lounasravintoloita.
Pysäköinti
Kiinteistön autohallissa on muutamia vuokrattavia parkkipaikkoja. Kohde on erinomaisesti saavutettavissa myös julkisilla.
Kulkuyhteydet
Raitiovaunupysäkki alle 100 m, Bussipysäkki alle 100 m, Juna-asema 1,9 km, Lentoasema 16,1 km
Muuta
Ei lain edellyttämää eneregiatodistusta
Vapautuu
Heti
Kerros
1 / 7
Energiatehokkuusluokka
Ei lain edellyttämää energiatodistusta
Katutasossa
Näkyvällä paikalla
Hissi
Ota yhteyttä
ScanReal Oy LKV
Opus Business Park
Hitsaajankatu 24
00810 Helsinki
info@scanreal.fi
Puh:
Näytä puhelinnumero
020 730 8830
Sopivat toimitilat yhdellä otolla!
Kartoitamme toimitilatarpeesi ja etsimme yrityksellesi parhaiten sopivat vapaat toimitilat. Koska vuokranantajat maksavat palvelumme, on tämä yrityksellesi veloituksetonta.
OTA YHTEYTTÄ - SOVI NÄYTTÖ!
Kaikki kohteemme eivät ole netissä, kerro tilatarpeesi niin kartoitamme vaihtoehdot.
Palvelumme on tilanhakijalle ilmainen
Pyydä lisätietoa
