Vuokrataan tuotantotilat, varastotilat - Espoo
Koskelonkuja 1, Koskelo, 02920 Espoo #10859566
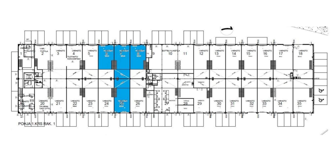
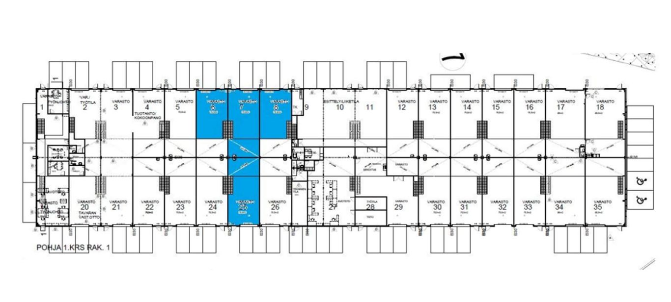
Koskelonkuja 1 A - Tuotanto- / varastotila 390 m²
Osoite
Koskelonkuja 1, 02920 Espoo
Tilatyyppi
Tuotantotilaa
390 m2
Varastotilaa
390 m2
Yhteensä
390 m2
Pohjapiirros
Kiinteistö
Erinomainen tuotanto- ja varastotila, joka tarjoaa toimivat puitteet monenlaiseen toimintaan. Tilaan pääsee ajamaan suoraan sisään, mikä tekee lastauksesta ja logistiikasta erittäin sujuvaa.
Tilan ominaisuudet
Sisäänajettava tila – helppo ja tehokas tavarankäsittely
Toisen kerroksen toimistoparvi, joka tuo joustavaa lisätilaa
Parvella oma keittiö, suihku ja wc, mikä lisää käyttömukavuutta
Nosto-ovi
Öljynerotuskaivo
Voimavirtapiste
Vesipiste tilassa
Kokonaisuus sopii loistavasti yritykselle, joka arvostaa toiminnallisia ratkaisuja, hyvää pohjaratkaisua ja helppoa logistiikkaa.
Koskelonkuja 1 – Modernit ja muunneltavat tilat Espoossa
Vuonna 2017 valmistunut kiinteistö tarjoaa nykyaikaisia ja edustavia tiloja, jotka on suunniteltu joustavasti käyttäjän tarpeisiin. Tilat soveltuvat erinomaisesti tuotanto-, varasto-, myynti- tai näyttelykäyttöön. Yksittäisen lohkon koko: noin 97,5 m² (tuotantotila: n. 77 m² + toimistoparvi: n. 20 m²). Tiloja voi yhdistää suuremmiksi kokonaisuuksiksi, mikä mahdollistaa joustavat ratkaisut kasvavan liiketoiminnan tarpeisiin.
Jokaisessa tilassa on
nosto-ovi
erillinen käyntiovi
öljynerotuskaivo
voimavirta (16 A)
vesipiste
toimistoparvi/taukotila
keittiö
WC ja suihkunurkka
Kiinteistössä toimii useita eri alojen yrityksiä, mikä luo monipuolisen ja aktiivisen yritysyhteisön.
Sijainti
Kiinteistö sijaitsee Kehä III:n välittömässä läheisyydessä ja vilkkaan Koskelontien varrella, mikä takaa erinomaisen näkyvyyden ja helpon saavutettavuuden.
Julkinen liikenne toimii sujuvasti: Koskelontien bussipysäkit ovat aivan kiinteistön lähellä, vain lyhyen kävelymatkan päässä.
Etäisyydet keskeisiin kohteisiin:
Turunväylä: n. 7 km
Hämeenlinnanväylä: n. 9 km
Helsinki-Vantaan lentoasema: n. 18 km
Vastuullisuus
Kiinteistön lämmitysratkaisuna toimii energiatehokas maalämpö, joka vähentää hiilijalanjälkeä ja tuo säästöjä energiankulutuksessa. Lisäksi kiinteistössä on sähköautojen latauspisteet, mikä tukee ympäristöystävällisiä liikkumisratkaisuja.
Kiinteistöllä on BREEAM Very Good -sertifiointi.
Ota yhteyttä
Kiinnostuitko? Ota yhteyttä ja tule tutustumaan!
Toimitilavälityspalvelumme on tilanhakijalle maksuton.
Tilan ominaisuudet
Sisäänajettava tila – helppo ja tehokas tavarankäsittely
Toisen kerroksen toimistoparvi, joka tuo joustavaa lisätilaa
Parvella oma keittiö, suihku ja wc, mikä lisää käyttömukavuutta
Nosto-ovi
Öljynerotuskaivo
Voimavirtapiste
Vesipiste tilassa
Kokonaisuus sopii loistavasti yritykselle, joka arvostaa toiminnallisia ratkaisuja, hyvää pohjaratkaisua ja helppoa logistiikkaa.
Koskelonkuja 1 – Modernit ja muunneltavat tilat Espoossa
Vuonna 2017 valmistunut kiinteistö tarjoaa nykyaikaisia ja edustavia tiloja, jotka on suunniteltu joustavasti käyttäjän tarpeisiin. Tilat soveltuvat erinomaisesti tuotanto-, varasto-, myynti- tai näyttelykäyttöön. Yksittäisen lohkon koko: noin 97,5 m² (tuotantotila: n. 77 m² + toimistoparvi: n. 20 m²). Tiloja voi yhdistää suuremmiksi kokonaisuuksiksi, mikä mahdollistaa joustavat ratkaisut kasvavan liiketoiminnan tarpeisiin.
Jokaisessa tilassa on
nosto-ovi
erillinen käyntiovi
öljynerotuskaivo
voimavirta (16 A)
vesipiste
toimistoparvi/taukotila
keittiö
WC ja suihkunurkka
Kiinteistössä toimii useita eri alojen yrityksiä, mikä luo monipuolisen ja aktiivisen yritysyhteisön.
Sijainti
Kiinteistö sijaitsee Kehä III:n välittömässä läheisyydessä ja vilkkaan Koskelontien varrella, mikä takaa erinomaisen näkyvyyden ja helpon saavutettavuuden.
Julkinen liikenne toimii sujuvasti: Koskelontien bussipysäkit ovat aivan kiinteistön lähellä, vain lyhyen kävelymatkan päässä.
Etäisyydet keskeisiin kohteisiin:
Turunväylä: n. 7 km
Hämeenlinnanväylä: n. 9 km
Helsinki-Vantaan lentoasema: n. 18 km
Vastuullisuus
Kiinteistön lämmitysratkaisuna toimii energiatehokas maalämpö, joka vähentää hiilijalanjälkeä ja tuo säästöjä energiankulutuksessa. Lisäksi kiinteistössä on sähköautojen latauspisteet, mikä tukee ympäristöystävällisiä liikkumisratkaisuja.
Kiinteistöllä on BREEAM Very Good -sertifiointi.
Ota yhteyttä
Kiinnostuitko? Ota yhteyttä ja tule tutustumaan!
Toimitilavälityspalvelumme on tilanhakijalle maksuton.
Vapautuu
Kysy
Kerros
1
Ota yhteyttä
Logistila Oy
Kylätie 11-13, 00320 HELSINKI
Karoliina Turppo
Näytä puhelinnumero
050 345 3258
Pyydä lisätietoa
