Vuokrataan toimistotilat, liiketilat, tuotantotilat, varastotilat - Espoo
Kiilaniityntie 1, Koskelo, 02920 Espoo #10859565
Kiilaniityntie 1 - Varasto/toimisto/myymälä 3230 m²
Osoite
Kiilaniityntie 1, 02920 Espoo
Tilatyyppi
Toimistotilaa
638 m2
Liiketilaa
3230 m2
Tuotantotilaa
3230 m2
Varastotilaa
3230 m2
Yhteensä
3230 m2
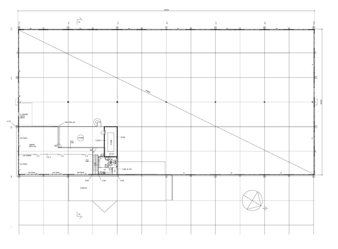
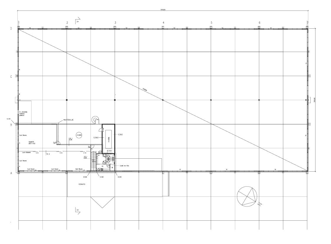
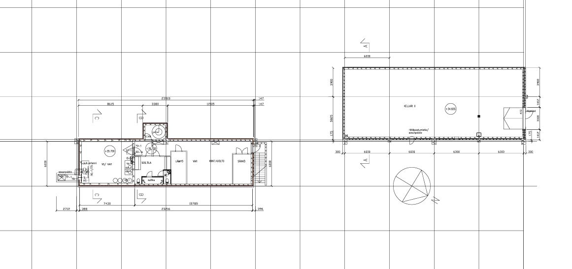
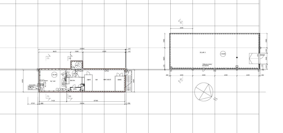
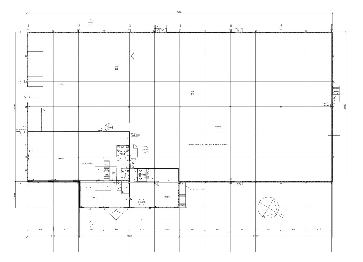
Pohjapiirros
Kiinteistö
Varasto / tuotanto / toimisto / myymälä 3 230 m² (yhdelle käyttäjälle)
Monipuolinen ja tilava varasto- ja tuotantokiinteistö, joka soveltuu erinomaisesti logistiikkaan, varastointiin, tuotantoon, toimistokäyttöön sekä showroom- ja myymälätoimintaan. Tämä kokonainen kiinteistö (yht. 3 230 m²) tarjoaa yhden käyttäjän omaan käyttöön poikkeuksellisen toimivat ja tehokkaat puitteet kasvavalle yritykselle.
Laaja, aidattu piha-alue – paljon tilaa logistiikalle, kääntöalueille ja pysäköinnille
Tavaraliikenne molemmista päädyistä ja rakennuksen ympäri
Varastokorkeus 6 m
Mahdollisuus laiturille ja/tai nostopöydälle
Nykyisen lastauspihan yhteydessä ajoluiska, laituri ja lastaustasku
Erinomainen kohde mm. varastointiin, tuotanto- ja työtilaksi, myyntinäyttelyyn
Lisäksi mahdollista hyödyntää myymälätilaa yrityksen tarpeiden mukaan
Toimistotilat
Ensimmäisessä ja toisessa kerroksessa sijaitsee 638 m² siistiä ja hyväkuntoista toimistotilaa.
Erillisjäähdytys
Nykyaikaiset tietoliikenneyhteydet (valokuitu)
Valoisat ja muunneltavat tilat henkilöstön viihtyisään työskentelyyn
Sijainti ja ympäristö
Kiinteistö sijaitsee Espoon Koskelossa Kehä III:n varrella, mikä takaa nopeat ja sujuvat yhteydet kaikkialle pääkaupunkiseudulle.
Vihdintielle vain n. 4 km
Alueella toimii mm. autoalan yrityksiä, hinauspalvelu ja huonekaluliike, jotka tuovat elinvoimaa ja liikennettä lähialueelle
Rakennuksen edustalla on pysäköintipaikkoja
Tämä kokonainen kiinteistö tarjoaa joustavat ja monipuoliset tilat yritykselle, joka tarvitsee tehokasta varasto- ja tuotantokapasiteettia, hyvät toimistot ja toimivan logistiikkaympäristön. Erinomainen sijainti sekä laaja piha-alue tekevät kohteesta harvinaisen ja houkuttelevan vaihtoehdon Espoossa.
Ota yhteyttä
Kiinnostuitko? Ota yhteyttä ja tule tutustumaan!
Toimitilavälityspalvelumme on tilanhakijalle maksuton.
Monipuolinen ja tilava varasto- ja tuotantokiinteistö, joka soveltuu erinomaisesti logistiikkaan, varastointiin, tuotantoon, toimistokäyttöön sekä showroom- ja myymälätoimintaan. Tämä kokonainen kiinteistö (yht. 3 230 m²) tarjoaa yhden käyttäjän omaan käyttöön poikkeuksellisen toimivat ja tehokkaat puitteet kasvavalle yritykselle.
Laaja, aidattu piha-alue – paljon tilaa logistiikalle, kääntöalueille ja pysäköinnille
Tavaraliikenne molemmista päädyistä ja rakennuksen ympäri
Varastokorkeus 6 m
Mahdollisuus laiturille ja/tai nostopöydälle
Nykyisen lastauspihan yhteydessä ajoluiska, laituri ja lastaustasku
Erinomainen kohde mm. varastointiin, tuotanto- ja työtilaksi, myyntinäyttelyyn
Lisäksi mahdollista hyödyntää myymälätilaa yrityksen tarpeiden mukaan
Toimistotilat
Ensimmäisessä ja toisessa kerroksessa sijaitsee 638 m² siistiä ja hyväkuntoista toimistotilaa.
Erillisjäähdytys
Nykyaikaiset tietoliikenneyhteydet (valokuitu)
Valoisat ja muunneltavat tilat henkilöstön viihtyisään työskentelyyn
Sijainti ja ympäristö
Kiinteistö sijaitsee Espoon Koskelossa Kehä III:n varrella, mikä takaa nopeat ja sujuvat yhteydet kaikkialle pääkaupunkiseudulle.
Vihdintielle vain n. 4 km
Alueella toimii mm. autoalan yrityksiä, hinauspalvelu ja huonekaluliike, jotka tuovat elinvoimaa ja liikennettä lähialueelle
Rakennuksen edustalla on pysäköintipaikkoja
Tämä kokonainen kiinteistö tarjoaa joustavat ja monipuoliset tilat yritykselle, joka tarvitsee tehokasta varasto- ja tuotantokapasiteettia, hyvät toimistot ja toimivan logistiikkaympäristön. Erinomainen sijainti sekä laaja piha-alue tekevät kohteesta harvinaisen ja houkuttelevan vaihtoehdon Espoossa.
Ota yhteyttä
Kiinnostuitko? Ota yhteyttä ja tule tutustumaan!
Toimitilavälityspalvelumme on tilanhakijalle maksuton.
Vapautuu
Kysy
Kerros
1-2
Ota yhteyttä
Logistila Oy
Kylätie 11-13, 00320 HELSINKI
Karoliina Turppo
Näytä puhelinnumero
050 345 3258
Pyydä lisätietoa
