Vuokrataan liiketilat, tuotantotilat, varastotilat - Helsinki
Hyttitie 8, 00700 Helsinki #10859511
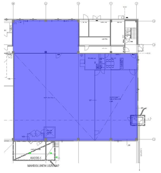
Kesällä 2026 vapautuu vuokrattavaksi katutason 632 m² toimitila, joka soveltuu hyvin myymäläksi, varasto-/tuotantotilaksi. Tilassa toimii tällä hetkellä siivousvälineliikkeen noutovarasto. Tilassa oma keittiö, pienet sos.tilat ja kaksi erillistä toimistohuonetta. Hallin puolella wc/ siivouskomero. Varastolla lastauslaituri.
Kohteelta on sujuvat yhteydet Kehä I:lle, Kehä III:lle ja Lahdenväylälle. Lähialueella on useita lounaspaikkoja.
Ota yhteyttä ja käydään tutustumassa tiloihin!
Hausala Oy
Erkkilänkatu 11, 33100 Tampere
Näytä puhelinnumero
050 472 7077
Matti Pöyhiä
Näytä puhelinnumero
040 722 6650
Mika Savikko
Näytä puhelinnumero
050 472 7077
