Vuokrataan tuotantotilat - Espoo
Koskelonkuja 1, Koskelo, 02920 Espoo #10859502
Vuokrattavana erinomainen tilakokonaisuus, joka soveltuu hyvin varastointiin ja tuotantoon. Toimitila on sisään ajettava. Tuotantotilan yhteydessä on kätevä toisen kerroksen toimistoparvi, jossa sijaitsevat sosiaalitilat ja keittiö.
Osoite
Koskelonkuja 1, 02920 Espoo
Tilatyyppi
Tuotantotilaa
98 m2
Kiinteistö
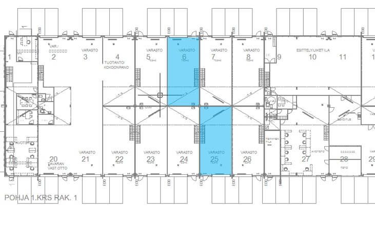
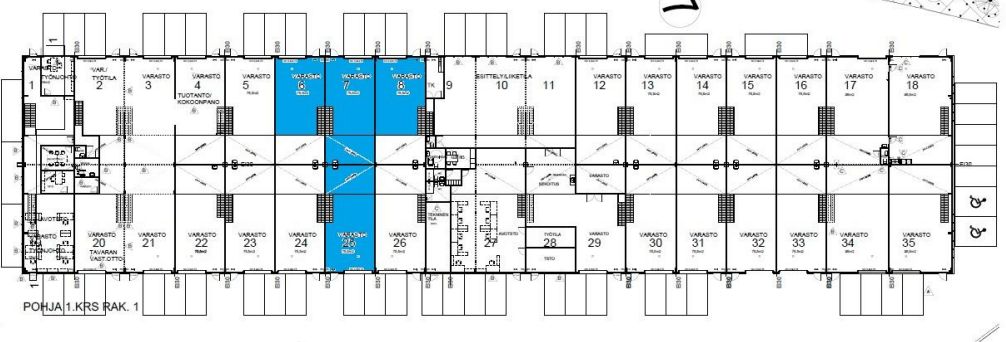
Vuokrattava varasto-/tuotantotila 98 m², Koskelonkuja 1 A, Espoo
Vuokrattavana kaksi erillistä tilakokonaisuutta (tilanumerot: A8 ja A25), jotka soveltuvat hyvin varastointi- ja tuotantokäyttöön. Tilat eivät ole yhdistettävissä, vaan ne vuokrataan erillisinä tiloina. Molemmat toimitilat ovat sisään ajettavia.
Tuotantotilan yhteydessä on kätevä toisen kerroksen toimistoparvi, jossa sijaitsevat myös oma keittiö sekä suihku- ja wc-tila.
Kummassakin tilassa on oma nosto-ovi, öljynerotuskaivo, voimavirtapiste sekä vesipiste.
Vuokrattavana kaksi erillistä tilakokonaisuutta (tilanumerot: A8 ja A25), jotka soveltuvat hyvin varastointi- ja tuotantokäyttöön. Tilat eivät ole yhdistettävissä, vaan ne vuokrataan erillisinä tiloina. Molemmat toimitilat ovat sisään ajettavia.
Tuotantotilan yhteydessä on kätevä toisen kerroksen toimistoparvi, jossa sijaitsevat myös oma keittiö sekä suihku- ja wc-tila.
Kummassakin tilassa on oma nosto-ovi, öljynerotuskaivo, voimavirtapiste sekä vesipiste.
Vapautuu
Kysy
Rakennusvuosi
2017
Ota yhteyttä
Sagax Finland
Aleksanterinkatu
Näytä puhelinnumero
19 00100
HELSINKI
Näytä puhelinnumero
010 3200 320
Pyydä lisätietoa
