Vuokrataan varastotilat - Turku
KOY Tiemestarin Talliosake 2 tila 14, Tiemestarinkatu 8, 20360 Turku #10859490
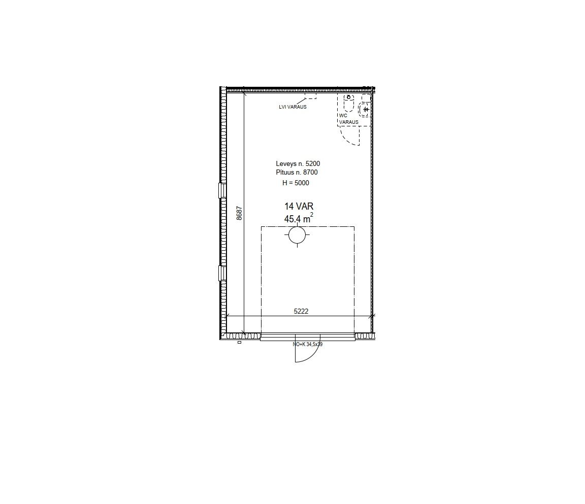
Suositulta Tiemestarin Talliosakkeelta monikäyttöinen, ikkunallinen ja valoisa kulmavarasto, autotalli, harraste-, toimitila 14.
Osoite
Tiemestarinkatu 8, 20360 Turku
Tilatyyppi
Varastotilaa
45 m2
Vuokra
525,00 €/kk
Kiinteistö
KOY Tiemestarin Talliosake 2
Sijainti
Tiemestarin Talliosake 2 sijaitsee Turussa hyvien kulkuyhteyksien varrella lähellä Tampereen tietä. Ohitustielle vain muutama minuutti.
Muuta
Moottoroitu nosto-ovi erillisellä käyntiovella. Autolla sisään ajettava tila. Tilamitat: 8,68 (Pituus) 5,22 (Leveys) 5,00 (Korkeus). Ovimitat: 3,45 (Leveys) 3,90 (Korkeus).
Käyttötarkoitusesimerkkejä: - toimitila - varastotila - yrityksen työtarvikevarasto / kalustovarasto - kimppatalli - harrastetila - bändikämppä - autotalli - moottoripyörätalli - mönkijätalli. Tila ei sovellu autokorjaamoksi eikä autopesulaksi.
Tila on sähkölämmitteinen. Vuokralainen tekee tilaan oman sähkösopimuksen. Vesi- ja sähkömaksu kulutuksen mukaan. Vakuus kahden kuukauden vuokraa vastaava määrä. Haetaan pitkäaikaista vuokralaista. Luottotiedot tarkistetaan.
Talliosake tuottaa joustavasti muunneltavia hallitiloja ympäri Suomen, joita yritykset ja yksityishenkilöt käyttävät tukikohtinaan erilaisille toiminnoille: yritys- ja liiketoimintaan, varastointiin sekä harrastuksiin.
Käyttötarkoitusesimerkkejä: - toimitila - varastotila - yrityksen työtarvikevarasto / kalustovarasto - kimppatalli - harrastetila - bändikämppä - autotalli - moottoripyörätalli - mönkijätalli. Tila ei sovellu autokorjaamoksi eikä autopesulaksi.
Tila on sähkölämmitteinen. Vuokralainen tekee tilaan oman sähkösopimuksen. Vesi- ja sähkömaksu kulutuksen mukaan. Vakuus kahden kuukauden vuokraa vastaava määrä. Haetaan pitkäaikaista vuokralaista. Luottotiedot tarkistetaan.
Talliosake tuottaa joustavasti muunneltavia hallitiloja ympäri Suomen, joita yritykset ja yksityishenkilöt käyttävät tukikohtinaan erilaisille toiminnoille: yritys- ja liiketoimintaan, varastointiin sekä harrastuksiin.
Vapautuu
01.05.2026
Katutasossa
Ota yhteyttä
Talliosake Oy
Jani Sanevuori
Aluemyyntipäällikkö Etelä-Suomi, Vuokrauspalvelu, LVV
Näytä puhelinnumero
050 361 4814
Pyydä lisätietoa
