Vuokrataan toimistotilat - Iisalmi
Kauppakatu 21, Keskusta, 74100 Iisalmi #10859458
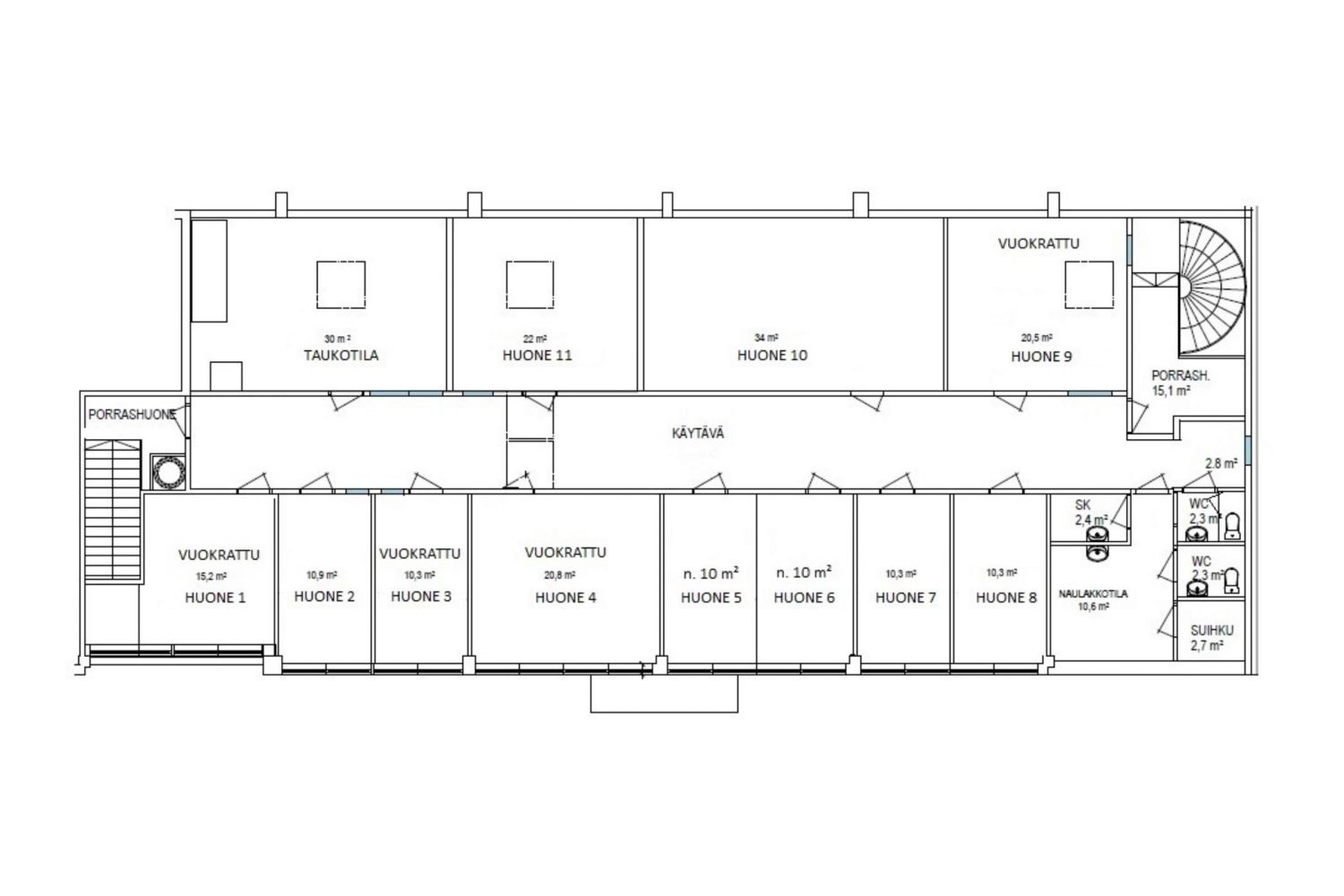
Toimistohuone keskustan sydämessä - Kauppakatu 21, Iisalmi
Tarjoamme vuokralle viihtyisän 22 neliömetrin toimistohuoneen Iisalmen keskustassa, osoitteessa Kauppakatu 21. Sijainti on erinomainen liiketoiminnalle - kaikki keskustan palvelut ja asiakasvirrat ovat käden ulottuvilla.
Toimistohuone sopii erinomaisesti pienyrittäjälle tai freelancerille, joka kaipaa rauhallista ja ammattimaista työympäristöä. Tiloihin kuuluvat yhteiskäytössä olevat taukotila ja sosiaalitilat, jotka tarjoavat mukavia mahdollisuuksia verkostoitumiseen ja työviihtyvyyden parantamiseen.
Kulkuyhteydet ovat erinomaiset - juna-asema sijaitsee vain noin 500 metrin päässä, mikä helpottaa liikematkustamista ja tekee sijainnista houkuttelevan myös asiakkaiden näkökulmasta. Vesi sisältyy vuokraan, ja sähkökorvaus laskutetaan kerran kuukaudessa käytön mukaan.
Toimistohotellitila remontoitu kauttaaltaan 2020, joten työskentelyolosuhteet ovat nykyaikaiset ja viihtyisät. Vuokrasopimus tehdään toistaiseksi voimassa olevana, ja sitoutumisaikaa toivotaan 12 kuukautta alkaen sopimuskauden alusta. Vakuus on kolmen kuukauden vuokran suuruinen.
Varaa esittely jo tänään ja tutustu tähän erinomaiseen liiketilaan Iisalmen parhaalla paikalla!
Huonekalukeidas Oy
Stemma
Kulta Kotipalvelut
Pohjois-Savon Muisti ry
Ravintola Butterfly
Toimistohotelli vuokraus huoneet 10-34m²
Iljan Isännöintikeskus Oy
Savon Juristit Oy
Pohjois-Savon Ely Keskus
Ykköstapahtumat Oy
