Vuokrataan toimistotilat - Jyväskylä
Tikkutehtaantie 1, Vaajakoski, Varassaari, 40800 Jyväskylä #10859448
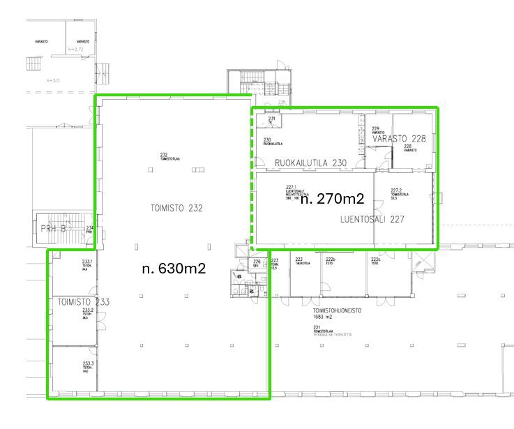
Vuokrataan yhteensä n. 900 m2 tyylikästä ja remontoitua toimistotilaa Vaajakosken Varassaaresta, vanhasta Tikkutehtaan kiinteistöstä. Toisen kerroksen toimistotiloista löytyy sekä avotilaa, erillisiä toimistohuoneita sekä isompia huoneita, joita voi valjastaa esimerkiksi neuvotteluhuoneiksi. Lisäksi kerroksessa on myös n. 100m2-kokoinen luentosali, pukutilat naisille ja miehille sekä useampi WC. Tilat ovat muokattavissa vuokralaisen toiveiden mukaan.
Tiloissa on jäähdyttävä ilmanvaihto, ja ne ovat käytettävissä vuorokauden ympäri. Kiinteistöllä on runsaasti parkkitilaa, ja kesäisin kohde on saavutettavissa myös veneellä. Alueella on myös lounaspaikka sekä kuntosali.
Samasta rakennuksesta on saatavilla myös pienempiä toimistotiloja (n. 50m2 alkaen) kolmannesta kerroksesta, jossa vapaana yhteensä n. 1790 m2 toimitilaa.
Lisätiedot ja näytöt: Henri Kumpulainen, 040 864 3631, henri.kumpulainen@aveon.fi
Jaettavissa
Aveon Real Estate Oy
Kauppakatu 18 C 26, 40100 Jyväskylä
Henri Kumpulainen
Puh.
Näytä puhelinnumero
040 864 3631
henri.kumpulainen@aveon.fi
Olemme kiinteistöliiketoiminnan asiantuntija, joka toimii yrittäjämäisesti neuvonantajana kiinteistökaupoissa, toimitilavälittämisessä sekä kiinteistökehityksessä.
Asiakkaitamme ovat kotimaiset ja ulkomaiset kiinteistönomistajat, -sijoittajat sekä tilojen käyttäjät kaikkialla Suomessa.
