Vuokrataan toimistotilat - Helsinki
Hämeentie 19, Sörnäinen, 00500 Helsinki #10859297
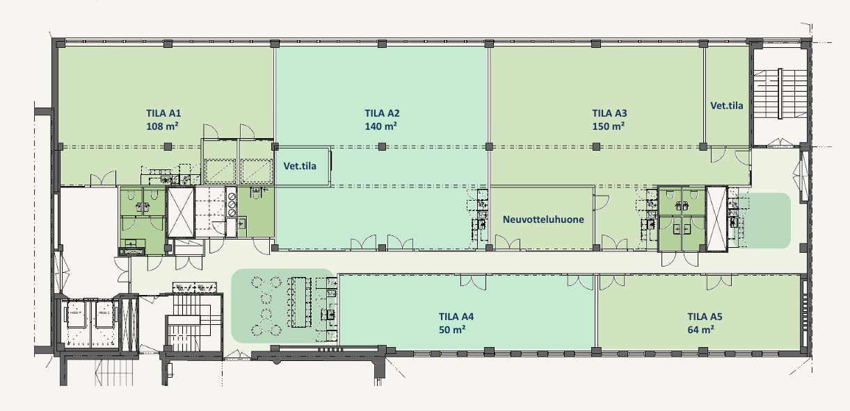
Käenkuja 3 - Pientoimistoja 140 m², 150 m²
Osoite
Hämeentie 19, 00500 Helsinki
Tilatyyppi
Toimistotilaa
140 - 150 m2
Pohjapiirros
Kiinteistö
Nämä valoisat ja joustavat pientoimistot ovat ihanteellinen valinta yrityksille, jotka etsivät omaa rauhaa, mutta haluavat nauttia modernin toimistoympäristön palveluista ja yhteisöllisyydestä.
Vierekkäiset, kalustamattomat pientoimistot 5. kerroksessa tarjoavat joustavan ja kustannustehokkaan ratkaisun yrityksille, jotka kaipaavat valmista palvelukokonaisuutta:
Pientoimisto A2 (140 m²)
sopii erinomaisesti noin 5–15 henkilölle
Pientoimisto A3 (150 m²)
palvelee joustavasti noin 6–20 hengen tiimiä
Tilat sijaitsevat vierekkäin, joten ne voidaan hyödyntää joko erillisinä kokonaisuuksina tai yhdistää saman yrityksen käyttöön esimerkiksi tiimikohtaiseen työskentelyyn.
Molemmat tilat ovat kalustamattomia, jolloin käyttäjä voi itse määritellä työpisteiden määrän ja sijoittelun.
Vuokraan sisältyy kaikki olennaiset palvelut, jotka tekevät arjesta helppoa ja sujuvaa: pääsy tiloihin 24/7, WLAN-yhteys, sähkö, kahvi ja tee, nimetyn neuvottelutilan käyttö sekä keittiötilojen ja yhteiskäyttöisten tilojen siivous.
Hämeentie 19 | Käenkuja 1–3
Nämä kaksi kiinteistöä muodostava yhdessä monipuolisen kokonaisuuden.
Hämeentie 19 – Hurmaava funkkishelmi Hämeentiellä
Menneen ajan hienostuneisuutta, nykypäivän teknologiaa. Hämeentie 19 on vuonna 1933 valmistunut, osittain suojeltu funkkisarkkitehtuurin mestariteos, joka rakennettiin alun perin Keskusosuusliike OTK:n hallintorakennukseksi. Tämä arvokas kiinteistö henkii 20‑luvun funktionalismia, mutta toimii modernin talotekniikan voimalla. Rakennus on uudistettu huolella ja sen alkuperäistä arkkitehtuuria kunnioittaen.
Sijainti
Vilkkaan Hämeentien varrella sijaitseva kiinteistö on keskeisellä paikalla aivan Sörnäisten metroaseman kyljessä. Hämeentiellä kulkevat monet bussi- ja raitiolinjat, ja ympäristö sykkii elämää ravintoloiden, kahviloiden ja erikoisliikkeiden muodossa.
Palvelut
Aulapalvelu
Täysin uudistettu lounasravintola
Moderni talotekniikka ja hyvin suunnitellut toimitilat
Vastuullisuus
Kiinteistölle on myönnetty BREEAM In-Use Excellent -sertifikaatti.
Käenkuja 3 – Teollisuushenkistä toimitilaa puistonäkymillä
Käenkuja 3 tarjoaa huolella uudistettua toimitilaa teollisessa hengessä aivan kaupungin sydämessä. Kiinteistö sijaitsee vilkkaan Hämeentien tuntumassa, mutta oma rauha löytyy vehreän sisäpihan puolelta. Rakennus on käynyt läpi perusteellisen saneerauksen, jossa talotekniikka nostettiin modernille tasolle.
Sijainti
Heti Hämeentien palveluiden ja liikenneyhteyksien tuntumassa
Kauniit näkymät Katri Valan puistoon
Erinomaisten yhteyksien äärellä: metro alle 200 m, raitiovaunu ja bussi 100 m
Palvelut
Aulapalvelut
Kuntosali
Lounasravintola / kahvila
Neuvottelutiloja
Parkkihalli
Pyöräparkki
Saunatilat ja suihkulliset sosiaalitilat
Sähköauton latauspisteet
Vastuullisuus
BREEAM Excellent -sertifikaatti
Kotimainen tuulisähkö
Uusiutuva kiertolämpö
Ota yhteyttä
Kiinnostuitko? Ota yhteyttä ja tule tutustumaan!
Toimitilavälityspalvelumme on tilanhakijalle maksuton.
Vierekkäiset, kalustamattomat pientoimistot 5. kerroksessa tarjoavat joustavan ja kustannustehokkaan ratkaisun yrityksille, jotka kaipaavat valmista palvelukokonaisuutta:
Pientoimisto A2 (140 m²)
sopii erinomaisesti noin 5–15 henkilölle
Pientoimisto A3 (150 m²)
palvelee joustavasti noin 6–20 hengen tiimiä
Tilat sijaitsevat vierekkäin, joten ne voidaan hyödyntää joko erillisinä kokonaisuuksina tai yhdistää saman yrityksen käyttöön esimerkiksi tiimikohtaiseen työskentelyyn.
Molemmat tilat ovat kalustamattomia, jolloin käyttäjä voi itse määritellä työpisteiden määrän ja sijoittelun.
Vuokraan sisältyy kaikki olennaiset palvelut, jotka tekevät arjesta helppoa ja sujuvaa: pääsy tiloihin 24/7, WLAN-yhteys, sähkö, kahvi ja tee, nimetyn neuvottelutilan käyttö sekä keittiötilojen ja yhteiskäyttöisten tilojen siivous.
Hämeentie 19 | Käenkuja 1–3
Nämä kaksi kiinteistöä muodostava yhdessä monipuolisen kokonaisuuden.
Hämeentie 19 – Hurmaava funkkishelmi Hämeentiellä
Menneen ajan hienostuneisuutta, nykypäivän teknologiaa. Hämeentie 19 on vuonna 1933 valmistunut, osittain suojeltu funkkisarkkitehtuurin mestariteos, joka rakennettiin alun perin Keskusosuusliike OTK:n hallintorakennukseksi. Tämä arvokas kiinteistö henkii 20‑luvun funktionalismia, mutta toimii modernin talotekniikan voimalla. Rakennus on uudistettu huolella ja sen alkuperäistä arkkitehtuuria kunnioittaen.
Sijainti
Vilkkaan Hämeentien varrella sijaitseva kiinteistö on keskeisellä paikalla aivan Sörnäisten metroaseman kyljessä. Hämeentiellä kulkevat monet bussi- ja raitiolinjat, ja ympäristö sykkii elämää ravintoloiden, kahviloiden ja erikoisliikkeiden muodossa.
Palvelut
Aulapalvelu
Täysin uudistettu lounasravintola
Moderni talotekniikka ja hyvin suunnitellut toimitilat
Vastuullisuus
Kiinteistölle on myönnetty BREEAM In-Use Excellent -sertifikaatti.
Käenkuja 3 – Teollisuushenkistä toimitilaa puistonäkymillä
Käenkuja 3 tarjoaa huolella uudistettua toimitilaa teollisessa hengessä aivan kaupungin sydämessä. Kiinteistö sijaitsee vilkkaan Hämeentien tuntumassa, mutta oma rauha löytyy vehreän sisäpihan puolelta. Rakennus on käynyt läpi perusteellisen saneerauksen, jossa talotekniikka nostettiin modernille tasolle.
Sijainti
Heti Hämeentien palveluiden ja liikenneyhteyksien tuntumassa
Kauniit näkymät Katri Valan puistoon
Erinomaisten yhteyksien äärellä: metro alle 200 m, raitiovaunu ja bussi 100 m
Palvelut
Aulapalvelut
Kuntosali
Lounasravintola / kahvila
Neuvottelutiloja
Parkkihalli
Pyöräparkki
Saunatilat ja suihkulliset sosiaalitilat
Sähköauton latauspisteet
Vastuullisuus
BREEAM Excellent -sertifikaatti
Kotimainen tuulisähkö
Uusiutuva kiertolämpö
Ota yhteyttä
Kiinnostuitko? Ota yhteyttä ja tule tutustumaan!
Toimitilavälityspalvelumme on tilanhakijalle maksuton.
Vapautuu
Kysy
Kerros
5
Ota yhteyttä
Logistila Oy
Kylätie 11-13, 00320 HELSINKI
Karoliina Turppo
Näytä puhelinnumero
050 345 3258
Pyydä lisätietoa
