Vuokrataan liiketilat, muut tilat - Helsinki
Hämeentie 19, Sörnäinen, 00500 Helsinki #10859294
Hämeentie 19 - Liiketila, ravintola 175 m² + 365 m²
Osoite
Hämeentie 19, 00500 Helsinki
Tilatyyppi
Liiketilaa
175 - 540 m2
Muuta tilaa
175 - 540 m2
Yhteensä
175 - 540 m2
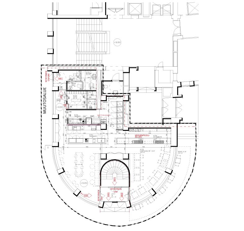
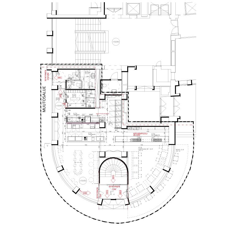
Pohjapiirros
Tila soveltuu
Ravintola
Kiinteistö
Ravintolatila 175 m², katutaso
Näyttävä ravintolatila täysin saneeratussa funkkiskiinteistössä tarjoaa erinomaisen mahdollisuuden luoda laadukas ja persoonallinen ravintolakokonaisuus keskelle Sörnäisten vilkasta kaupunkikuvaa. Ensimmäisen kerroksen tila on helposti muokattavissa erilaisiin konsepteihin, ja sen voi yhdistää sujuvasti K1‑kerroksen laajemman ravintolatilan kanssa.
Ravintolatila 365 m², K1-kerros
K1‑kerroksen laaja 365 m² ravintolatila tarjoaa tilavan, joustavan ja täysin saneeratun ympäristön monenlaiseen ravintolatoimintaan. Tila voidaan yhdistää saumattomasti ensimmäisen kerroksen ravintolatilaan, jolloin kokonaisuudesta muodostuu vaikuttava ja monipuolisesti muunneltava kokonaisuus jopa 80 asiakkaalle.
Kysy lisätietoja!
Hämeentie 19 | Käenkuja 1–3
Nämä kaksi kiinteistöä muodostava yhdessä monipuolisen kokonaisuuden.
Hämeentie 19 – Hurmaava funkkishelmi Hämeentiellä
Menneen ajan hienostuneisuutta, nykypäivän teknologiaa. Hämeentie 19 on vuonna 1933 valmistunut, osittain suojeltu funkkisarkkitehtuurin mestariteos, joka rakennettiin alun perin Keskusosuusliike OTK:n hallintorakennukseksi. Tämä arvokas kiinteistö henkii 20‑luvun funktionalismia, mutta toimii modernin talotekniikan voimalla. Rakennus on uudistettu huolella ja sen alkuperäistä arkkitehtuuria kunnioittaen.
Sijainti
Vilkkaan Hämeentien varrella sijaitseva kiinteistö on keskeisellä paikalla aivan Sörnäisten metroaseman kyljessä. Hämeentiellä kulkevat monet bussi- ja raitiolinjat, ja ympäristö sykkii elämää ravintoloiden, kahviloiden ja erikoisliikkeiden muodossa.
Palvelut
Aulapalvelu
Täysin uudistettu lounasravintola
Moderni talotekniikka ja hyvin suunnitellut toimitilat
Vastuullisuus
Kiinteistölle on myönnetty BREEAM In-Use Excellent -sertifikaatti.
Käenkuja 3 – Teollisuushenkistä toimitilaa puistonäkymillä
Käenkuja 3 tarjoaa huolella uudistettua toimitilaa teollisessa hengessä aivan kaupungin sydämessä. Kiinteistö sijaitsee vilkkaan Hämeentien tuntumassa, mutta oma rauha löytyy vehreän sisäpihan puolelta. Rakennus on käynyt läpi perusteellisen saneerauksen, jossa talotekniikka nostettiin modernille tasolle.
Sijainti
Heti Hämeentien palveluiden ja liikenneyhteyksien tuntumassa
Kauniit näkymät Katri Valan puistoon
Erinomaisten yhteyksien äärellä: metro alle 200 m, raitiovaunu ja bussi 100 m
Palvelut
Aulapalvelut
Kuntosali
Lounasravintola / kahvila
Neuvottelutiloja
Parkkihalli
Pyöräparkki
Saunatilat ja suihkulliset sosiaalitilat
Sähköauton latauspisteet
Vastuullisuus
BREEAM Excellent -sertifikaatti
Kotimainen tuulisähkö
Uusiutuva kiertolämpö
Ota yhteyttä
Kiinnostuitko? Ota yhteyttä ja tule tutustumaan!
Toimitilavälityspalvelumme on tilanhakijalle maksuton.
Näyttävä ravintolatila täysin saneeratussa funkkiskiinteistössä tarjoaa erinomaisen mahdollisuuden luoda laadukas ja persoonallinen ravintolakokonaisuus keskelle Sörnäisten vilkasta kaupunkikuvaa. Ensimmäisen kerroksen tila on helposti muokattavissa erilaisiin konsepteihin, ja sen voi yhdistää sujuvasti K1‑kerroksen laajemman ravintolatilan kanssa.
Ravintolatila 365 m², K1-kerros
K1‑kerroksen laaja 365 m² ravintolatila tarjoaa tilavan, joustavan ja täysin saneeratun ympäristön monenlaiseen ravintolatoimintaan. Tila voidaan yhdistää saumattomasti ensimmäisen kerroksen ravintolatilaan, jolloin kokonaisuudesta muodostuu vaikuttava ja monipuolisesti muunneltava kokonaisuus jopa 80 asiakkaalle.
Kysy lisätietoja!
Hämeentie 19 | Käenkuja 1–3
Nämä kaksi kiinteistöä muodostava yhdessä monipuolisen kokonaisuuden.
Hämeentie 19 – Hurmaava funkkishelmi Hämeentiellä
Menneen ajan hienostuneisuutta, nykypäivän teknologiaa. Hämeentie 19 on vuonna 1933 valmistunut, osittain suojeltu funkkisarkkitehtuurin mestariteos, joka rakennettiin alun perin Keskusosuusliike OTK:n hallintorakennukseksi. Tämä arvokas kiinteistö henkii 20‑luvun funktionalismia, mutta toimii modernin talotekniikan voimalla. Rakennus on uudistettu huolella ja sen alkuperäistä arkkitehtuuria kunnioittaen.
Sijainti
Vilkkaan Hämeentien varrella sijaitseva kiinteistö on keskeisellä paikalla aivan Sörnäisten metroaseman kyljessä. Hämeentiellä kulkevat monet bussi- ja raitiolinjat, ja ympäristö sykkii elämää ravintoloiden, kahviloiden ja erikoisliikkeiden muodossa.
Palvelut
Aulapalvelu
Täysin uudistettu lounasravintola
Moderni talotekniikka ja hyvin suunnitellut toimitilat
Vastuullisuus
Kiinteistölle on myönnetty BREEAM In-Use Excellent -sertifikaatti.
Käenkuja 3 – Teollisuushenkistä toimitilaa puistonäkymillä
Käenkuja 3 tarjoaa huolella uudistettua toimitilaa teollisessa hengessä aivan kaupungin sydämessä. Kiinteistö sijaitsee vilkkaan Hämeentien tuntumassa, mutta oma rauha löytyy vehreän sisäpihan puolelta. Rakennus on käynyt läpi perusteellisen saneerauksen, jossa talotekniikka nostettiin modernille tasolle.
Sijainti
Heti Hämeentien palveluiden ja liikenneyhteyksien tuntumassa
Kauniit näkymät Katri Valan puistoon
Erinomaisten yhteyksien äärellä: metro alle 200 m, raitiovaunu ja bussi 100 m
Palvelut
Aulapalvelut
Kuntosali
Lounasravintola / kahvila
Neuvottelutiloja
Parkkihalli
Pyöräparkki
Saunatilat ja suihkulliset sosiaalitilat
Sähköauton latauspisteet
Vastuullisuus
BREEAM Excellent -sertifikaatti
Kotimainen tuulisähkö
Uusiutuva kiertolämpö
Ota yhteyttä
Kiinnostuitko? Ota yhteyttä ja tule tutustumaan!
Toimitilavälityspalvelumme on tilanhakijalle maksuton.
Vapautuu
Kysy
Kerros
1, K1
Ota yhteyttä
Logistila Oy
Kylätie 11-13, 00320 HELSINKI
Karoliina Turppo
Näytä puhelinnumero
050 345 3258
Pyydä lisätietoa
