Vuokrataan - Helsinki
Sentnerikuja 2, Lassila, 00440 Helsinki #10859264
Osoite
Sentnerikuja 2, 00440 Helsinki
Muuta
Monikäyttöistä ja modernia toimistotilaa keskeisellä sijainnilla.
Helsingin Lassilanlinna on täysin uudistettu kiinteistö jossa tilat, piha-alue ja koko kiinteistö peruskorjattu uutta vastaavaksi. Alueella erinomaiset kulkuyhteydet autolla ja julkisilla. Autopaikkoja tarjolla runsaasti pysäköintihallista.
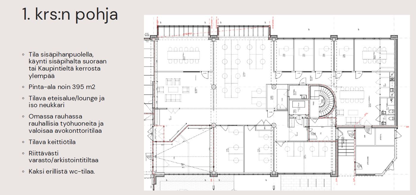
Monikäyttöistä toimistotilaa kahdessa kerroksessa (300m2 - 1000m2). ´
Lisätiedot ja näytöt valtteri.mauno@kiinteistotahkola.fi tai 040 3500 442
Helsingin Lassilanlinna on täysin uudistettu kiinteistö jossa tilat, piha-alue ja koko kiinteistö peruskorjattu uutta vastaavaksi. Alueella erinomaiset kulkuyhteydet autolla ja julkisilla. Autopaikkoja tarjolla runsaasti pysäköintihallista.
Monikäyttöistä toimistotilaa kahdessa kerroksessa (300m2 - 1000m2). ´
Lisätiedot ja näytöt valtteri.mauno@kiinteistotahkola.fi tai 040 3500 442
Vapautuu
Heti vapaa
Energiatehokkuusluokka
B2018
Ota yhteyttä
Kiinteistö-Tahkola Oy
Itälahdenkatu 15-17, 2krs, 00210 Helsinki
Näytä puhelinnumero
0207 480 294
Kiinteistötahkola Helsinki
Näytä puhelinnumero
0401580999
Pyydä lisätietoa
