Vuokrataan toimistotilat - Helsinki
Malminkaari 5, Malmi, 00700 Helsinki #10859224
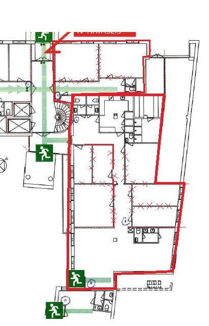
Tämän kokoluokan toimistoja on harvoin tarjolla, joten ole nopeasti yhteydessä meihin! Tässä huhtikuussa vapautuvassa tomitilassa on tällä hetkellä kaksi huonetta, ja pohjakuvaan punaisilla rasteilla merkityt väliseinät on mahdollista purkaa. Tilassa on oma wc. Tila on pohjakuvassa rajatuista tiloista ylempi.
Malminkaari 5 on viisikerroksinen toimitilakiinteistö erinomaisella sijainnilla, kävelyetäisyydellä Malmin juna-asemalta ja bussipysäkkien välittömästä läheisyydestä. Kiinteistön tilat soveltuvat monipuolisesti eri toimintatarkoituksiin. Hyvien liikenneyhteyksien lisäksi Malmin alue tarjoaa kattavat julkiset ja kaupalliset palvelut.
Croisette on uusi ja innovatiivinen toimitilojen välitysyritys Suomessa. Meillä on vahva halu auttaa teitä löytämään paras toimitilaratkaisu mahdollisimman vaivattomasti.
Huomaathan, että kaikki vapaat ja vapautuvat tilat ovat kauttamme saatavilla. Osa tiloista on hiljaisessa markkinoinnissa, mutta ottamalla meihin yhteyttä saat nekin tietoosi.
Palvelumme on tilanhakijoille täysin maksutonta.
Hissi
Croisette Real Estate Partner
Erottajankatu 5 A 6, 00130 Helsinki
Näytä puhelinnumero
+358 400 585 857
Croisette Vuokraus
Näytä puhelinnumero
+358400585857
