Vuokrataan varastotilat - Espoo
Kiilaniityntie 1, Koskelo, Koskelo, 02920 Espoo #10859154
Vuokrataan moderni 3230m2 varasto-/ tuotantokiinteistö laajalla aidatulla piha-alueella. Rakennuksen edustalla on runsaasti pysäköintipaikkoja sähkölatauspisteillä. Varaston tavaraliikenne on mahdollista toteuttaa rakennuksen molemmista päädyistä.
Kiinteistö koostu:
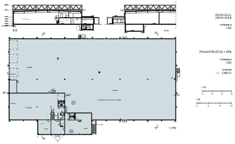
Varasto: 2223 m2, vapaa korkeus n.6m, lattian kantavuus 2500 kg/m², 2 lasktaustaskua ja sisäänajoramppi nosto-ovella. Nosto-oven mitat 3,1 m x 3 m
Toimistotilat, myymälä/showroom, neuvotteluhuoneet ja sosiaalitilat: 638 m² (1.ja 2.krs).
Toimistotiloissa on erillisjäähdytys.
Kellari- ja suihkutilat: 133 m2(kellarikerros).
Autotalli/erillisvarasto: 236 m2 (kellarikerros). Lastauspihan yhteydessä on ajoluiska (nosto-ovi 3,6 m x 4,3m), Nosto-ovien edustalla on kaivot.
Kiinteistössä on valokuitu. Kiinteistö sijaitsee Kehä III:n välittömässä läheisyydessä.
Comreal Oy LKV
Salla Saraniemi
Näytä puhelinnumero
040 138 1081
Läkkisepänkuja 6, 00620 Helsinki
Comreal on valtakunnallinen, asiantunteva ja aktiivinen kiinteistöalan kumppani, joka palvelee sekä kiinteistönomistajia että toimitilojen käyttäjiä. Toimintamme ydin on yksinkertainen: tarjota erinomaista palvelua kaikille.
