Vuokrataan varastotilat - Hämeenlinna
KOY Mäkelän Talliosake 2 tila 5, Tölkkimäenkuja 3, 13300 Hämeenlinna #10859112
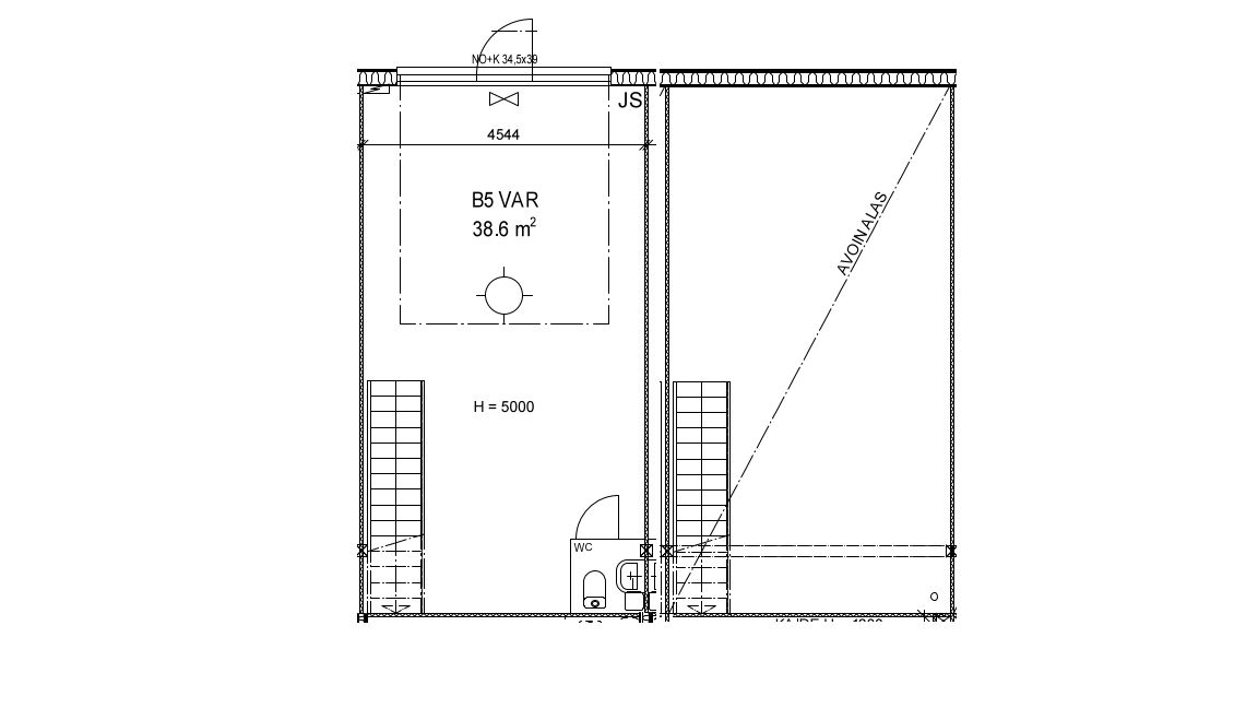
Mäkelän Talliosakkeelta monikäyttöinen varasto, autotalli, harraste-, toimitila 5. Tilassa jo valmiina parvi sekä wc.
Osoite
Tölkkimäenkuja 3, 13300 Hämeenlinna
Tilatyyppi
Varastotilaa
66 m2
Vuokra
620,00 €/kk
Kiinteistö
KOY Mäkelän Talliosake 2
Sijainti
Mäkelän Talliosake 2 sijaitsee Hämeenlinnassa näkyvällä paikalla Helsinki-Tampere -moottoritien varrella Mäkelän teollisuusalueella. Nopeat yhteydet E12 eli Kolmostielle, Parolaan sekä Hämeenlinnan keskustaan palvelevat erinomaisesti sekä kuluttaja- että yritysasiakkaita. Autolla Tampereelle 40 minuutissa sekä Helsinkiin ja Lahteen vain noin tunnissa.
Muuta
Tilan lattiapinta-ala on 39 m² ja parven 27 m². Yhteispinta-ala 66 m².
Moottoroitu nosto-ovi erillisellä käyntiovella. Autolla sisään ajettava tila. Tilamitat: 8,45 (Pituus) 4,50 (Leveys) 5,00 (Korkeus). Ovimitat: 3,45 (Leveys) 3,90 (Korkeus).
Käyttötarkoitusesimerkkejä: - toimitila - varastotila - yrityksen työtarvikevarasto / kalustovarasto - kimppatalli - harrastetila - bändikämppä - autotalli - moottoripyörätalli - mönkijätalli. Tila ei sovellu autokorjaamoksi eikä autopesulaksi.
Tila on sähkölämmitteinen. Vuokralainen tekee tilaan oman sähkösopimuksen. Vesi- ja sähkömaksu kulutuksen mukaan. Vakuus kahden kuukauden vuokraa vastaava määrä. Yritysasiakkaille vuokraan lisätään alv 25,5%. Haetaan pitkäaikaista vuokralaista. Luottotiedot tarkistetaan.
Talliosake tuottaa joustavasti muunneltavia hallitiloja ympäri Suomen, joita yritykset ja yksityishenkilöt käyttävät tukikohtinaan erilaisille toiminnoille: yritys- ja liiketoimintaan, varastointiin sekä harrastuksiin.
Moottoroitu nosto-ovi erillisellä käyntiovella. Autolla sisään ajettava tila. Tilamitat: 8,45 (Pituus) 4,50 (Leveys) 5,00 (Korkeus). Ovimitat: 3,45 (Leveys) 3,90 (Korkeus).
Käyttötarkoitusesimerkkejä: - toimitila - varastotila - yrityksen työtarvikevarasto / kalustovarasto - kimppatalli - harrastetila - bändikämppä - autotalli - moottoripyörätalli - mönkijätalli. Tila ei sovellu autokorjaamoksi eikä autopesulaksi.
Tila on sähkölämmitteinen. Vuokralainen tekee tilaan oman sähkösopimuksen. Vesi- ja sähkömaksu kulutuksen mukaan. Vakuus kahden kuukauden vuokraa vastaava määrä. Yritysasiakkaille vuokraan lisätään alv 25,5%. Haetaan pitkäaikaista vuokralaista. Luottotiedot tarkistetaan.
Talliosake tuottaa joustavasti muunneltavia hallitiloja ympäri Suomen, joita yritykset ja yksityishenkilöt käyttävät tukikohtinaan erilaisille toiminnoille: yritys- ja liiketoimintaan, varastointiin sekä harrastuksiin.
Vapautuu
Heti vapaa
Katutasossa
Ota yhteyttä
Talliosake Oy
Hannu Peltonen
Aluemyyntipäällikkö, Pirkanmaa & Kanta-Häme
Näytä puhelinnumero
040 630 3150
Pyydä lisätietoa
