Vuokrataan toimistotilat, näyttelytilat - Helsinki
Eerikinkatu 4, Kamppi, 00100 Helsinki #10859103
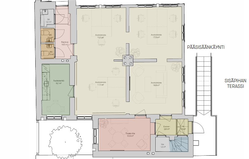
EERINKATU 4 - toimisto-/showroom 106m2
Vuokrattavana toimisto- tai näyttelytilaksi soveltuva, vuonna 1875 rakennettu hirsirunkoinen puutalo Helsingin ydinkeskustassa. Tämä on koko alueen ainoa puutalo.
Sisäpihalla sijaitseva erillistalo tarjoaa ainutlaatuisen ja rauhallisen työympäristön keskellä kaupunkia - yhdistelmän historiallista arvokkuutta ja nykyaikaista toimivuutta.
Tämä kohde on todellakin remontoitu huolella - sisätiloissa on nähtävissä alkuperäisiä hirsiä lasipinnan suojassa muistuttamassa talon pitkästä historiasta.
Tilaa leimaavat vanhaan tyyliin valitut tapetit, puulattiat sekä säilytetyt arkkitehtoniset yksityiskohdat, jotka luovat lämpimän ja kutsuvan tunnelman. Oma sisäänkäynti sekä rauhallinen pihaympäristö tuovat yksityisyyttä ja edustavuutta niin päivittäiseen työskentelyyn kuin asiakaskohtaamisiin.
Kiinteistön viihtyisä viherpiha on vuokralaisten käytettävissä. Sijainti on erinomainen aivan ydinkeskustassa, lähellä Forumia, Kampin keskusta sekä metroasemaa, mikä takaa sujuvat kulkuyhteydet.
Tila soveltuu erinomaisesti luovien alojen toimijoille, palveluntarjoajalle ja aivan kaikille niille, jotka arvostavat persoonallista, historiallisesti arvokasta ja inspiroivaa työympäristöä keskeisellä sijainnilla.
Tilassa valokuituyhteys ja painovoimainen ilmanvaihto.
Myös alv:ton toiminta mahdollista.
Lisätiedot ja kohdenäytöt: p. 040 7070 321 / HeikkiKerros: 1
CRE PREMISES
Puh. Näytä puhelinnumero 020 7290 710
Vantaankoskentie 14
01670 VANTAA
